← Perth and Kinross Council

Status

Awaiting decision Change of use
Received
05 Feb 2026
New homes
1

Full proposal

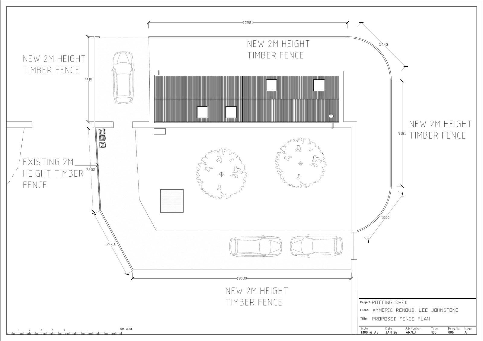
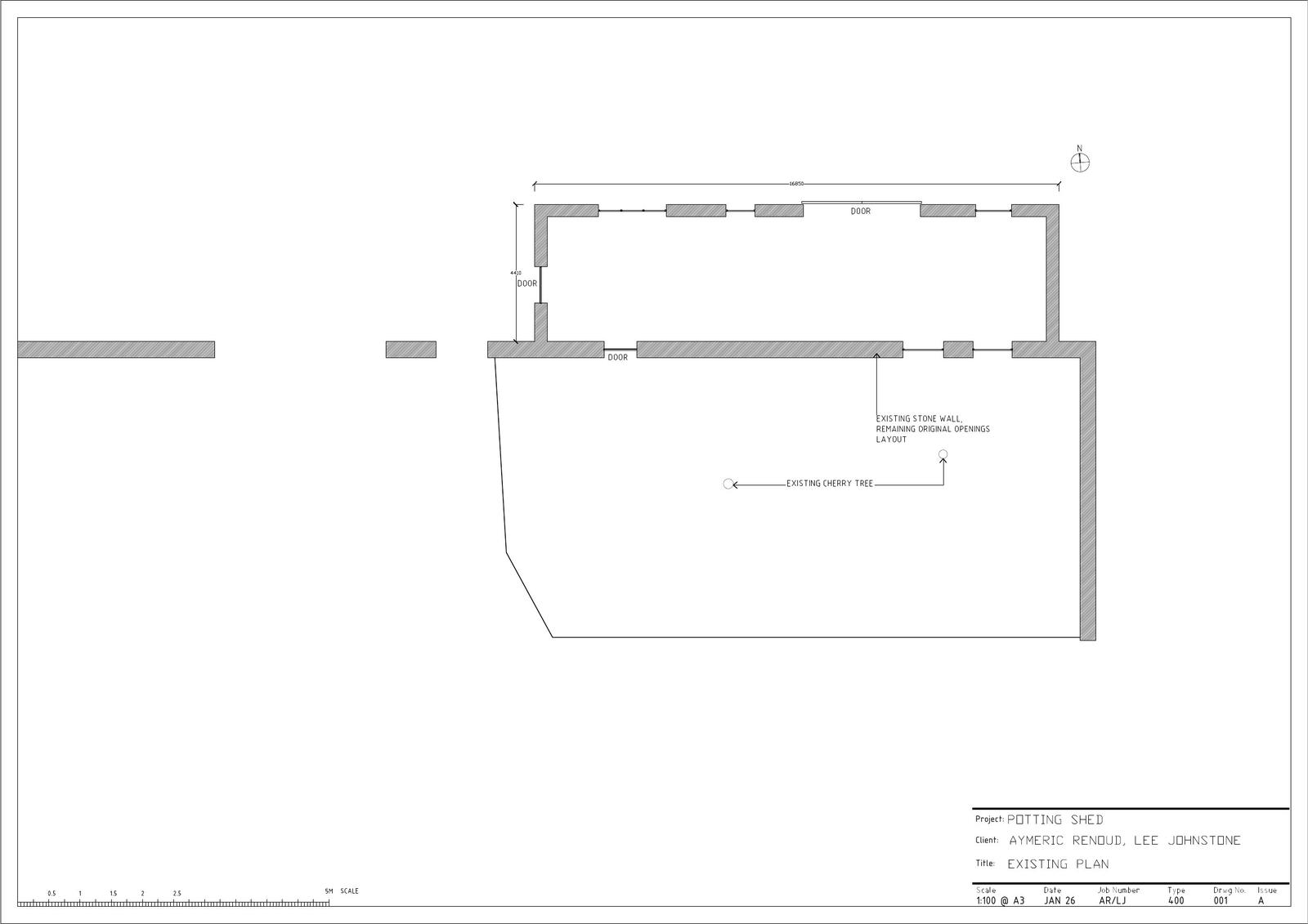
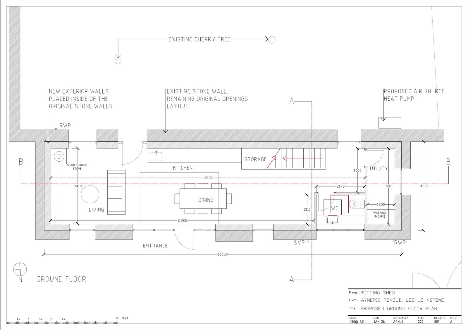
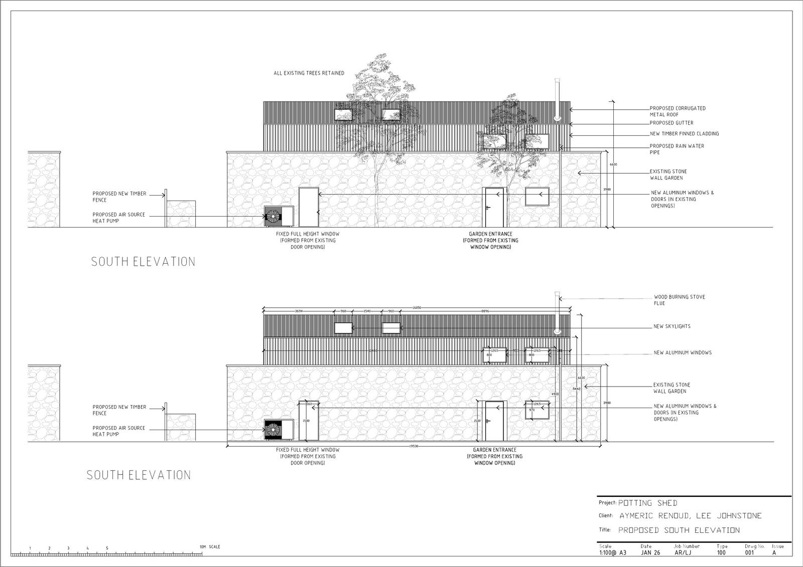
Change of use, alterations and extension to potting shed to form dwellinghouse, erection of fence and installation of flue and air source heat pump

Have your say

Your comment matters. Councils must consider every representation that raises material planning considerations.

Write a comment