← Perth and Kinross Council

Status

Awaiting decision Change of use
Received
Last month
New homes
0

Full proposal

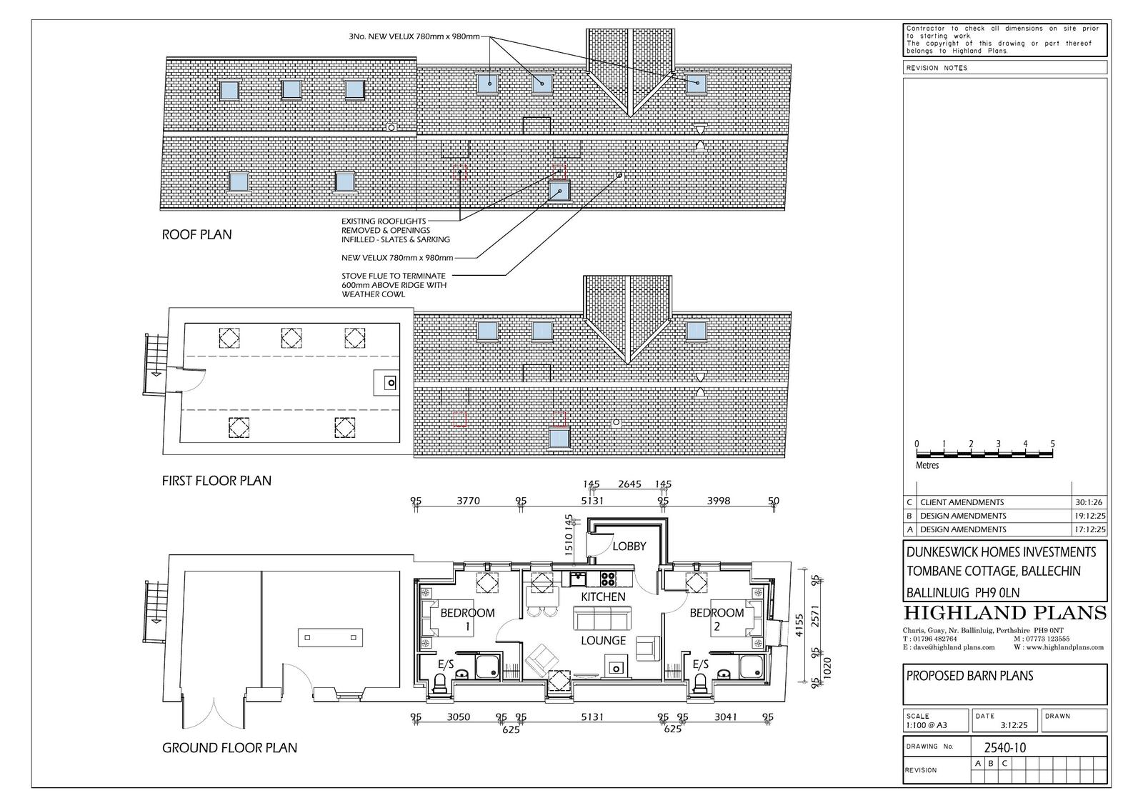
Change of use, alterations and extension to agricultural building to form short-term let accommodation unit

Have your say

Your comment matters. Councils must consider every representation that raises material planning considerations.

Write a comment