← Perth and Kinross Council

Status

Awaiting decision New housing
Received
29 days ago
New homes
1

Full proposal

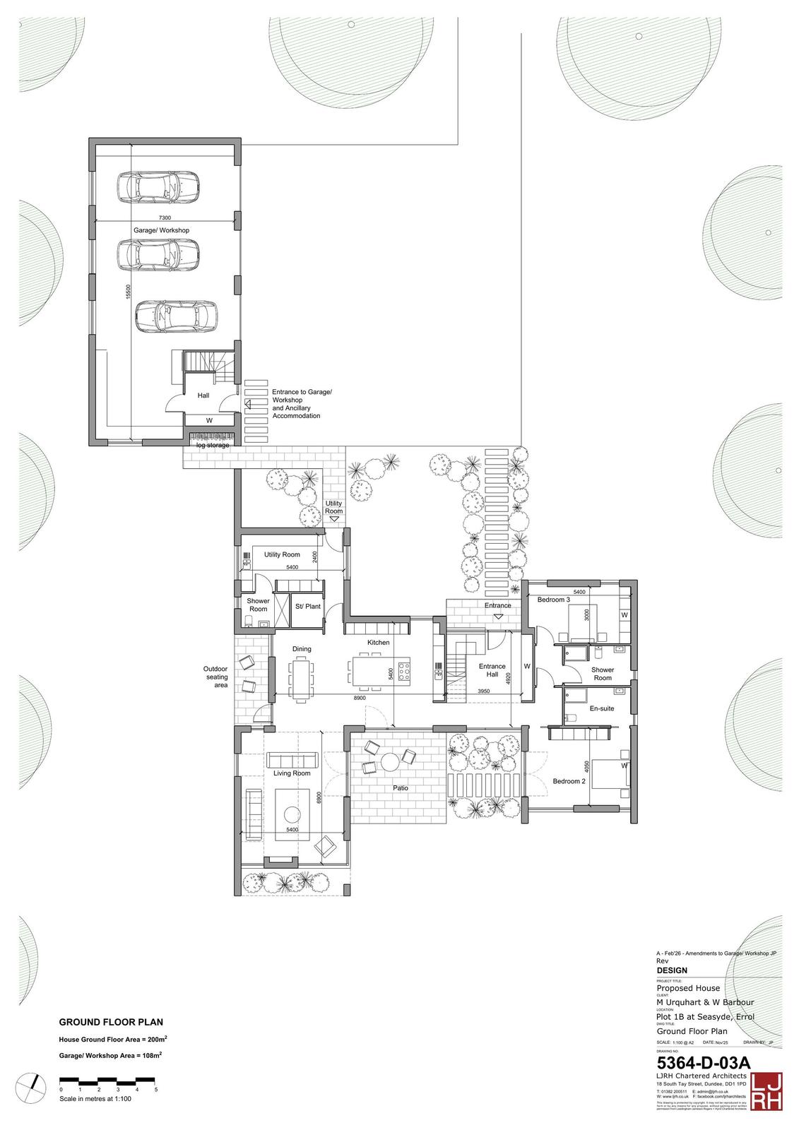
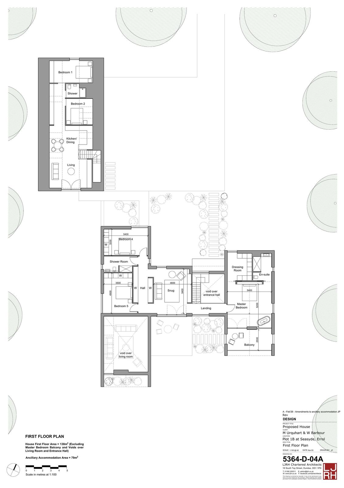
Erection of a dwellinghouse and garage/ancillary accommodation unit

Have your say

Your comment matters. Councils must consider every representation that raises material planning considerations.

Write a comment