← Plymouth City Council

Status

Awaiting decision Change of use
Received
Last month
New homes
0

Full proposal

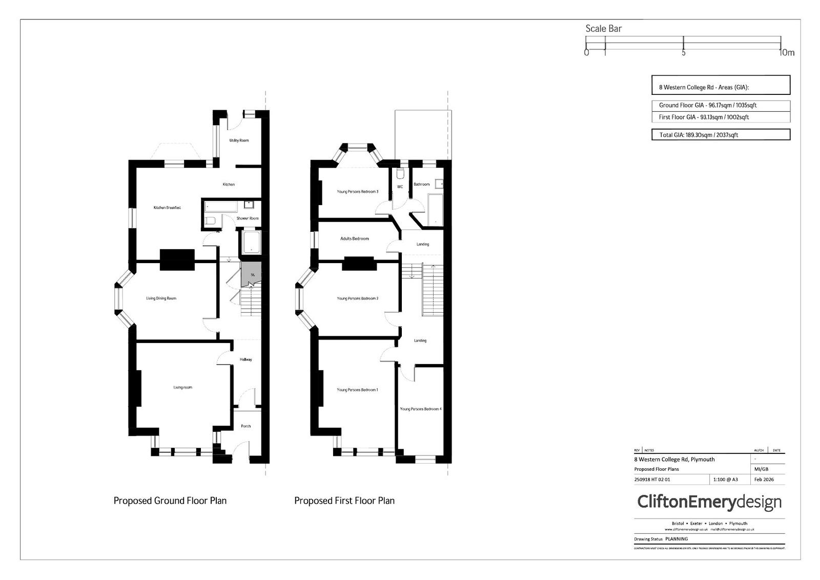
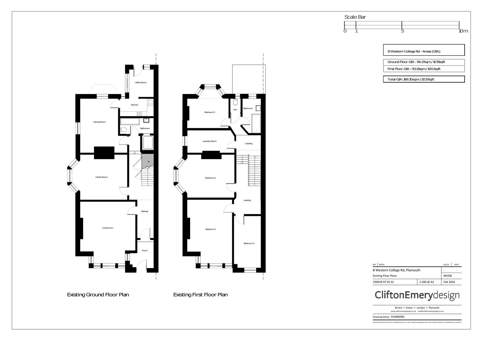
Proposed change of use from dwellinghouse (Class C3) to residential accommodation (Class C2) to provide supported accommodation for young people

Documents

Application
Archived · Original link
Application
Archived · Original link
Drawings and Images
Archived · Original link
Drawings and Images
Archived · Original link
Drawings and Images
Archived · Original link
Drawings and Images
Archived · Original link
Drawings and Images
Archived · Original link

Have your say

Your comment matters. Councils must consider every representation that raises material planning considerations.

Write a comment