← Plymouth City Council

Status

Awaiting decision Change of use
Received
Last month
New homes
7

Full proposal

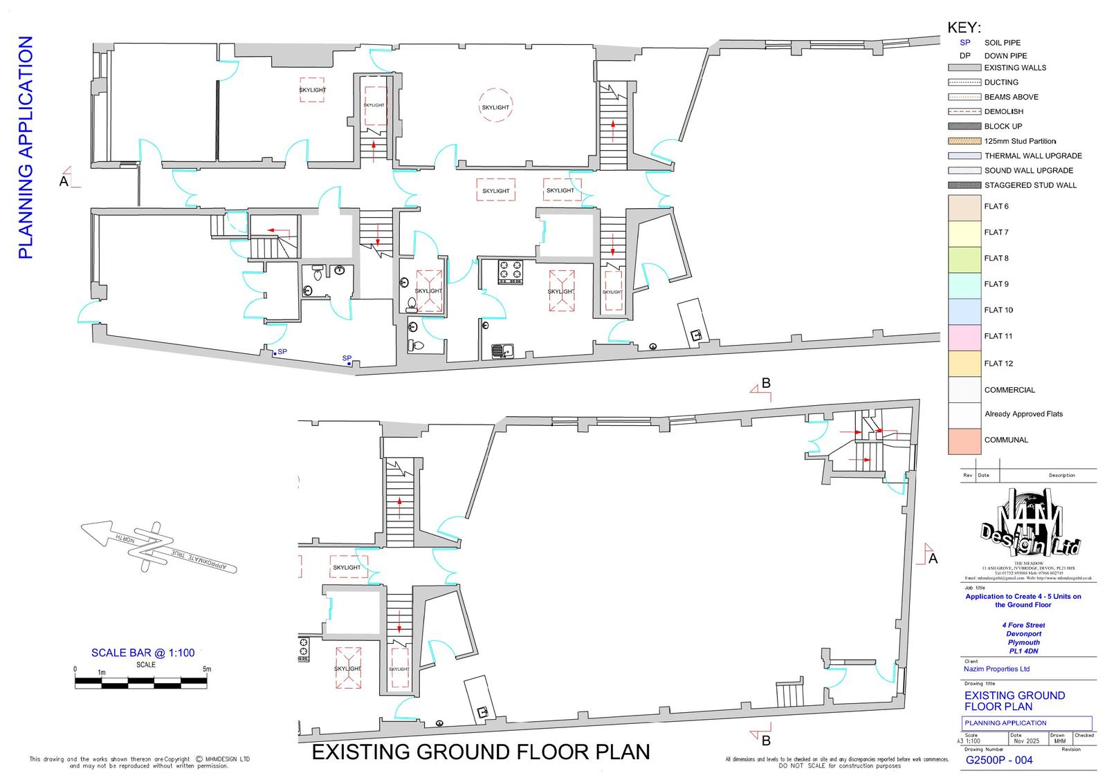
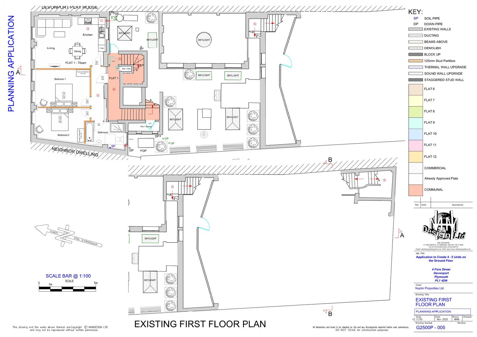
Change of use of part of ground and first floors to 5 one bed flats and 2 studio flats, and use of basement to enlarge existing commercial unit with storage, bin/cycle store and rear access.

Documents

Application
Archived · Original link
Application
Archived · Original link
Consultee Comment
Archived · Original link
Drawings and Images
Archived · Original link
Drawings and Images
Archived · Original link
Drawings and Images
Archived · Original link
Drawings and Images
Archived · Original link
Drawings and Images
Archived · Original link
Drawings and Images
Archived · Original link
Drawings and Images
Archived · Original link
Drawings and Images
Archived · Original link
Consultee Comment
Archived · Original link
Drawings and Images
Archived · Original link
Drawings and Images
Archived · Original link
Drawings and Images
Archived · Original link
Drawings and Images
Archived · Original link
Drawings and Images
Archived · Original link
Drawings and Images
Archived · Original link
Drawings and Images
Archived · Original link
Drawings and Images
Archived · Original link
Drawings and Images
Archived · Original link
Decision Outcome
Archived · Original link
Supporting Information
Archived · Original link

Have your say

Your comment matters. Councils must consider every representation that raises material planning considerations.

Write a comment