← Plymouth City Council

Status

Awaiting decision House extension
Received
Last month
New homes
0

Full proposal

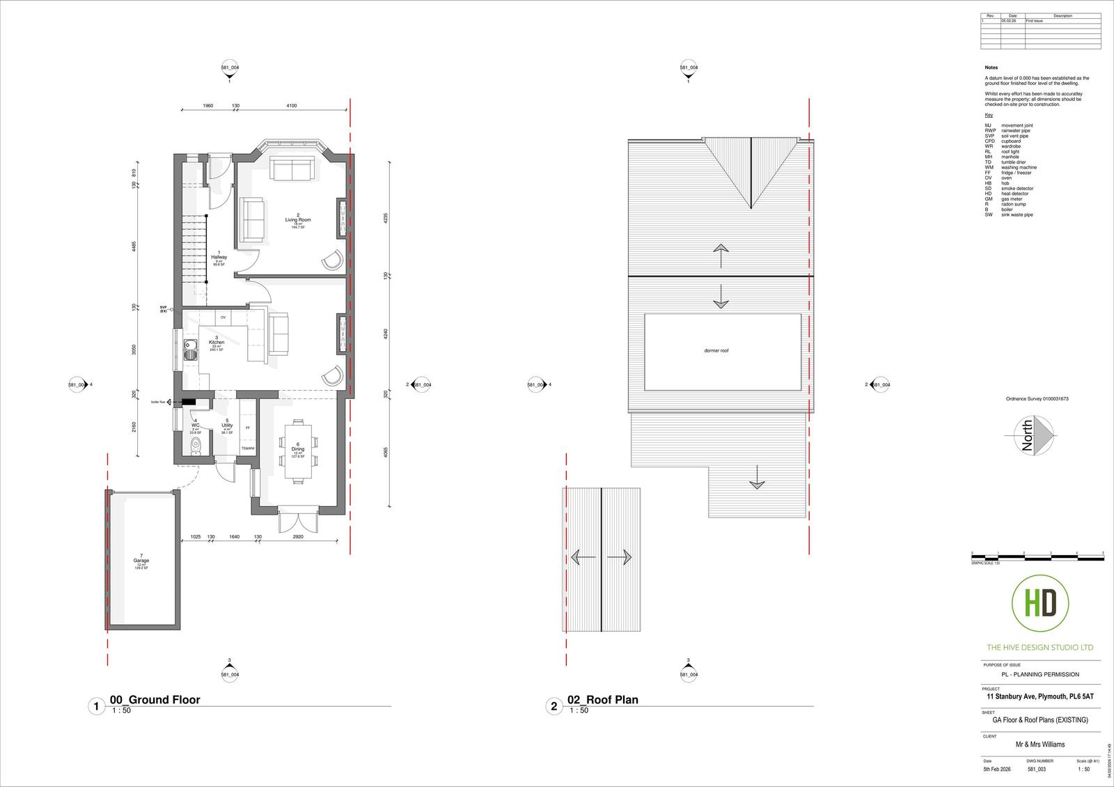
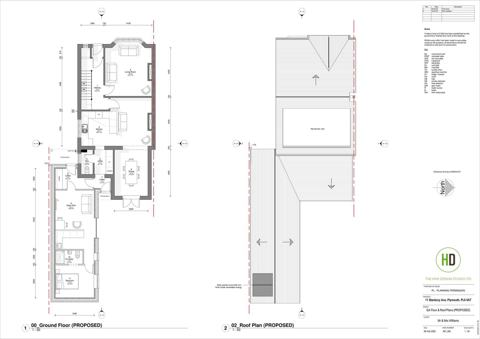
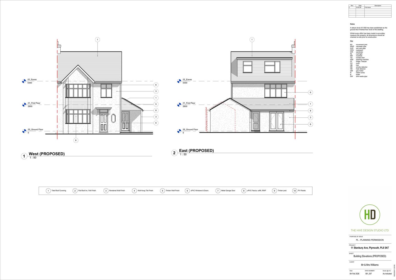
Demolition of garage, Construction of single storey side/rear annexe extension with associated works

Documents

Drawings and Images
Archived · Original link
Drawings and Images
Archived · Original link
Drawings and Images
Archived · Original link
Supporting Information
Archived · Original link
Drawings and Images
Archived · Original link
Drawings and Images
Archived · Original link
Drawings and Images
Archived · Original link
Drawings and Images
Archived · Original link
Drawings and Images
Archived · Original link

Have your say

Your comment matters. Councils must consider every representation that raises material planning considerations.

Write a comment