← Plymouth City Council

Status

Awaiting decision House extension
Received
Last month
New homes
0

Full proposal

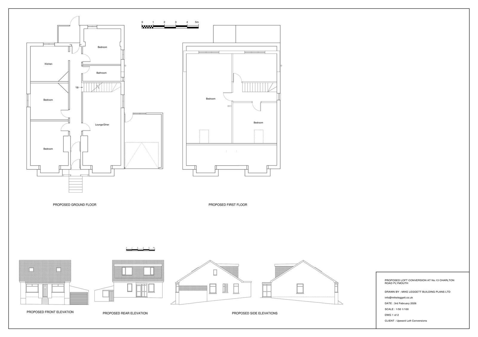
Loft conversion with rear dormer, hipped to gable roof alteration and increased ridge height

Documents

Application
Archived · Original link
Application
Archived · Original link
Drawings and Images
Archived · Original link
Drawings and Images
Archived · Original link
Consultee Comment
Archived · Original link
Supporting Information
Archived · Original link
Drawings and Images
Archived · Original link
Decision Outcome
Archived · Original link
Drawings and Images
Archived · Original link
Supporting Information
Archived · Original link

Have your say

Your comment matters. Councils must consider every representation that raises material planning considerations.

Write a comment