← Portsmouth City Council

Status

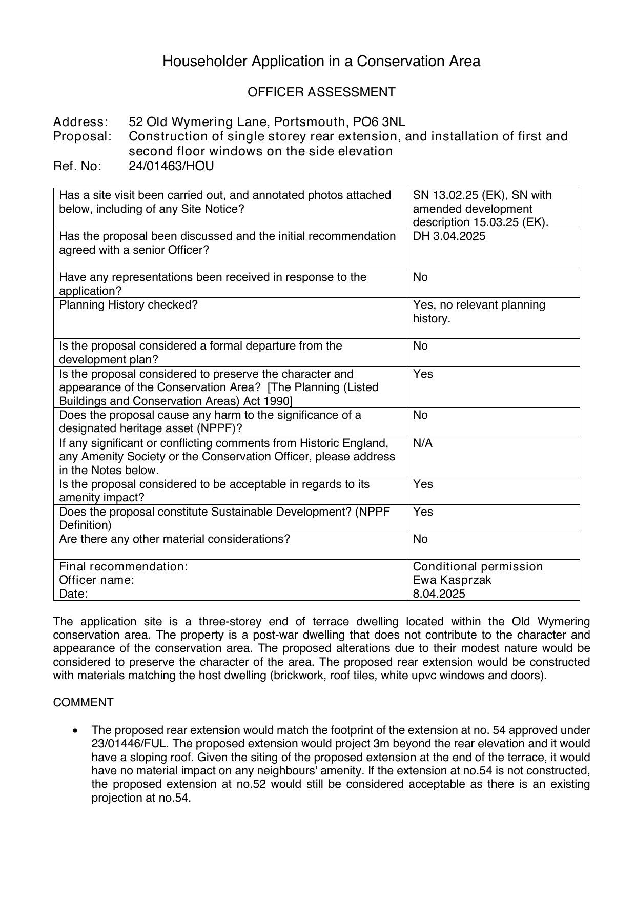
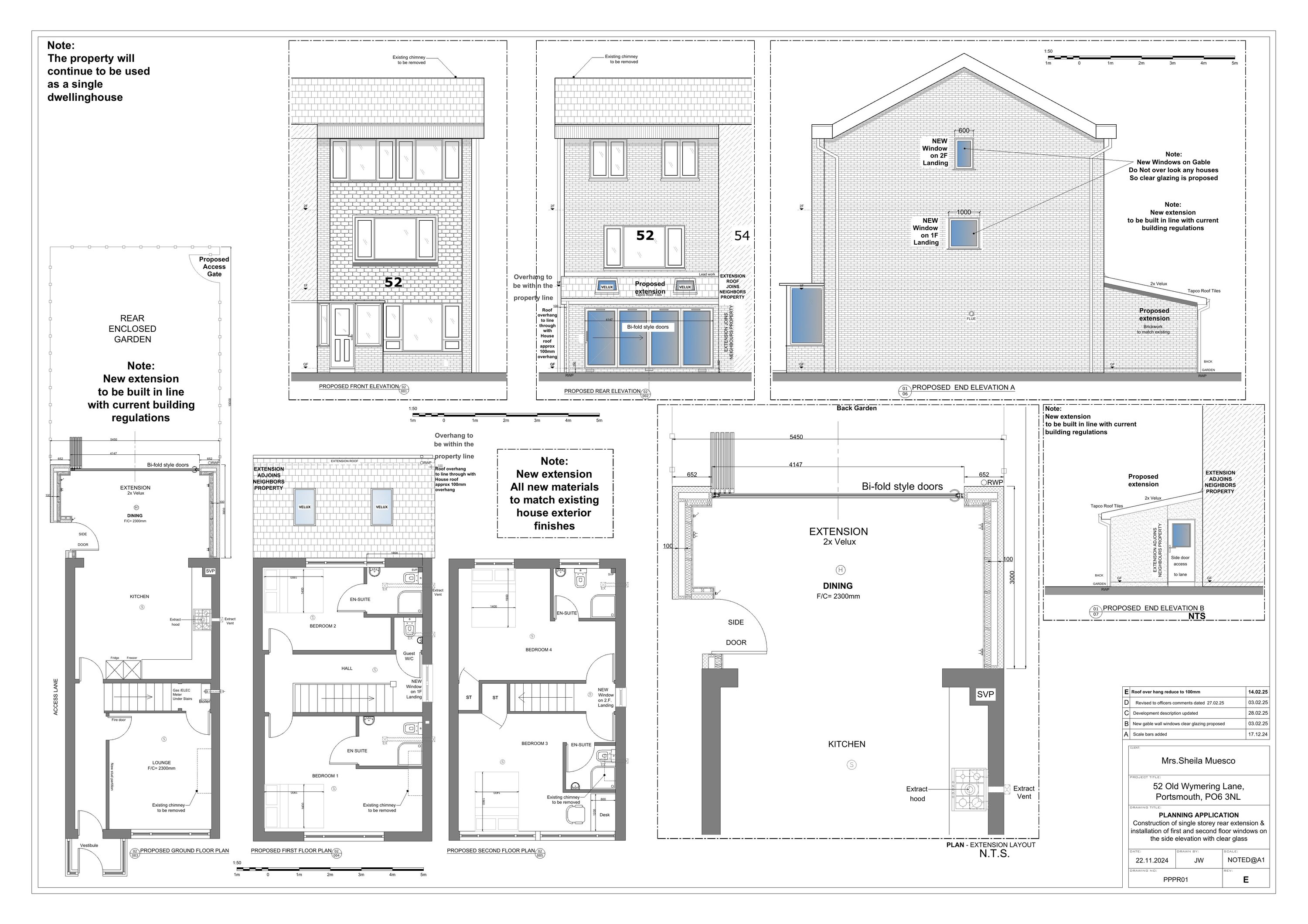
Unknown House extension
Received
04 Dec 2024
New homes
0

Full proposal

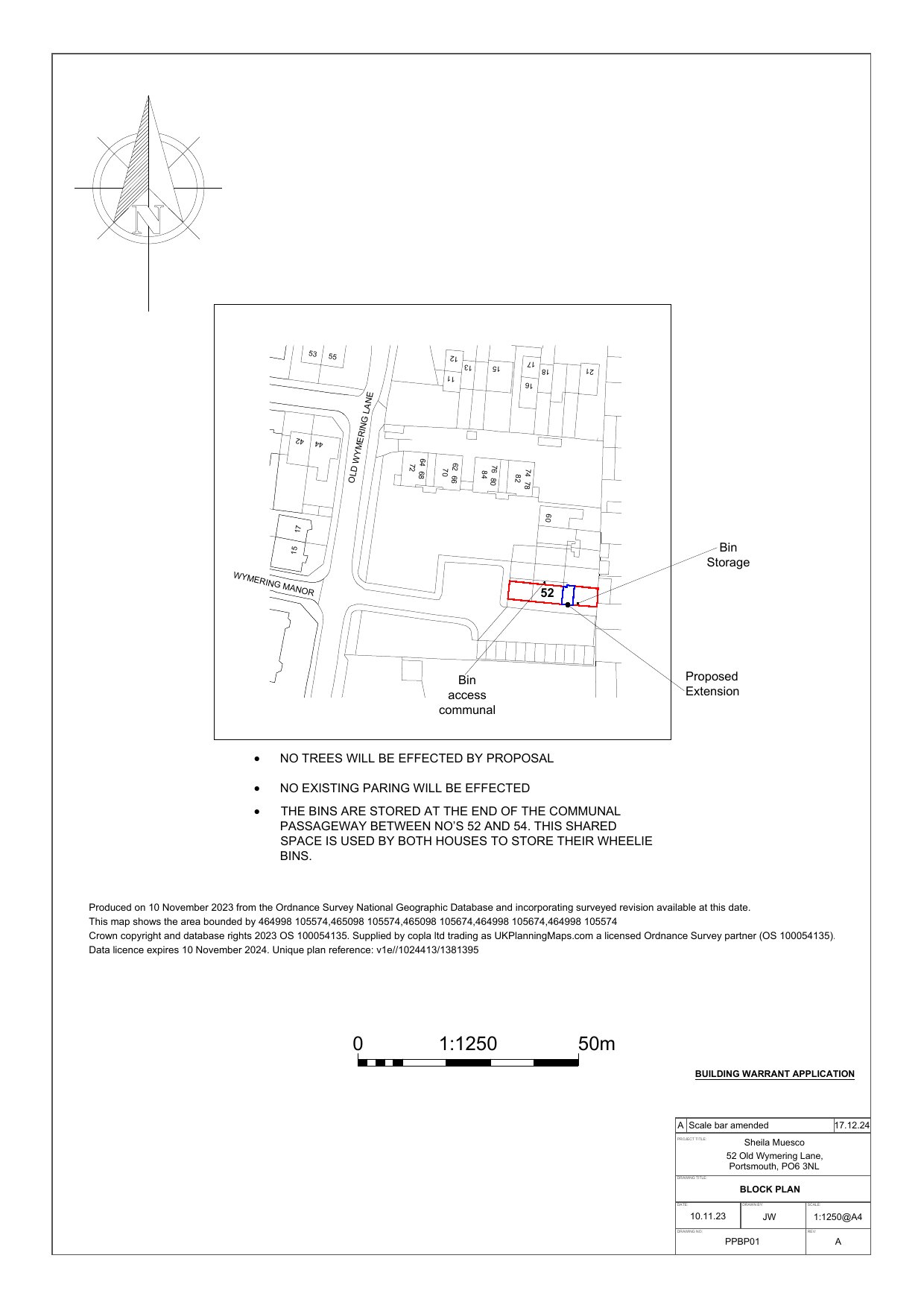
Construction of single storey rear extension, and installation of first and second floor windows on the side elevation

Documents

Block Plan
Archived · Original link
Decision
Archived · Original link
OS Extract
Archived · Original link
Decision
Archived · Original link

Have your say

Your comment matters. Councils must consider every representation that raises material planning considerations.

Write a comment