← Back to Portsmouth City Council

Status

Unknown Change of use
Received 13 May 2025
New dwellings 175

What you can do

Take Action

Make your voice heard. Authorities need to hear from people who support new homes.

Summary

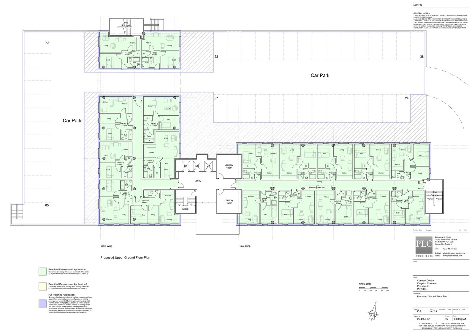
Façade alterations to facilitate conversion of offices to 175 residential apartments.

Full Proposal

Replacement of existing facade with cladding and glazing panels, including reconfiguration of existing single storey entrance lobby to provide this with a flat roof. The proposals are to facilitate the proposed redevelopment of the site as described: "Conversion of existing offices and undercrofts (Use Class E) to provide 175 residential apartments (Use Class C3) under Prior Approval under Part 3, Schedule 2, Class MA of the Town and Country Planning (General Permitted Development etc.) (England) (Amendment) Order 2021."

Detail pages

Documents

CONNECT CENTRE - VIEW01 DOC FINAL
Drawing
Not downloaded · Council link
CONNECT CENTRE - VIEW02 DOC FINAL
Drawing
Not downloaded · Council link
DECISION NOTICE
Decision
Not downloaded · Council link
LOCATIONPLAN
OS Extract
Not downloaded · Council link
OFFICER ASSESSMENT
Decision
Not downloaded · Council link
PROPOSED EIGHTH - NINTH FLOOR PLAN
Revised Drawing
Not downloaded · Council link
PROPOSED ELEVATION TREATMENT
Revised Drawing
Not downloaded · Council link
PROPOSED GROUND FLOOR PLAN
Revised Drawing
Not downloaded · Council link
PROPOSED SITE / LOWER GROUND FLOOR PLAN
Revised Drawing
Not downloaded · Council link