← Portsmouth City Council

Status

Unknown Change of use
Received
07 Jan 2025
New homes
0

Summary

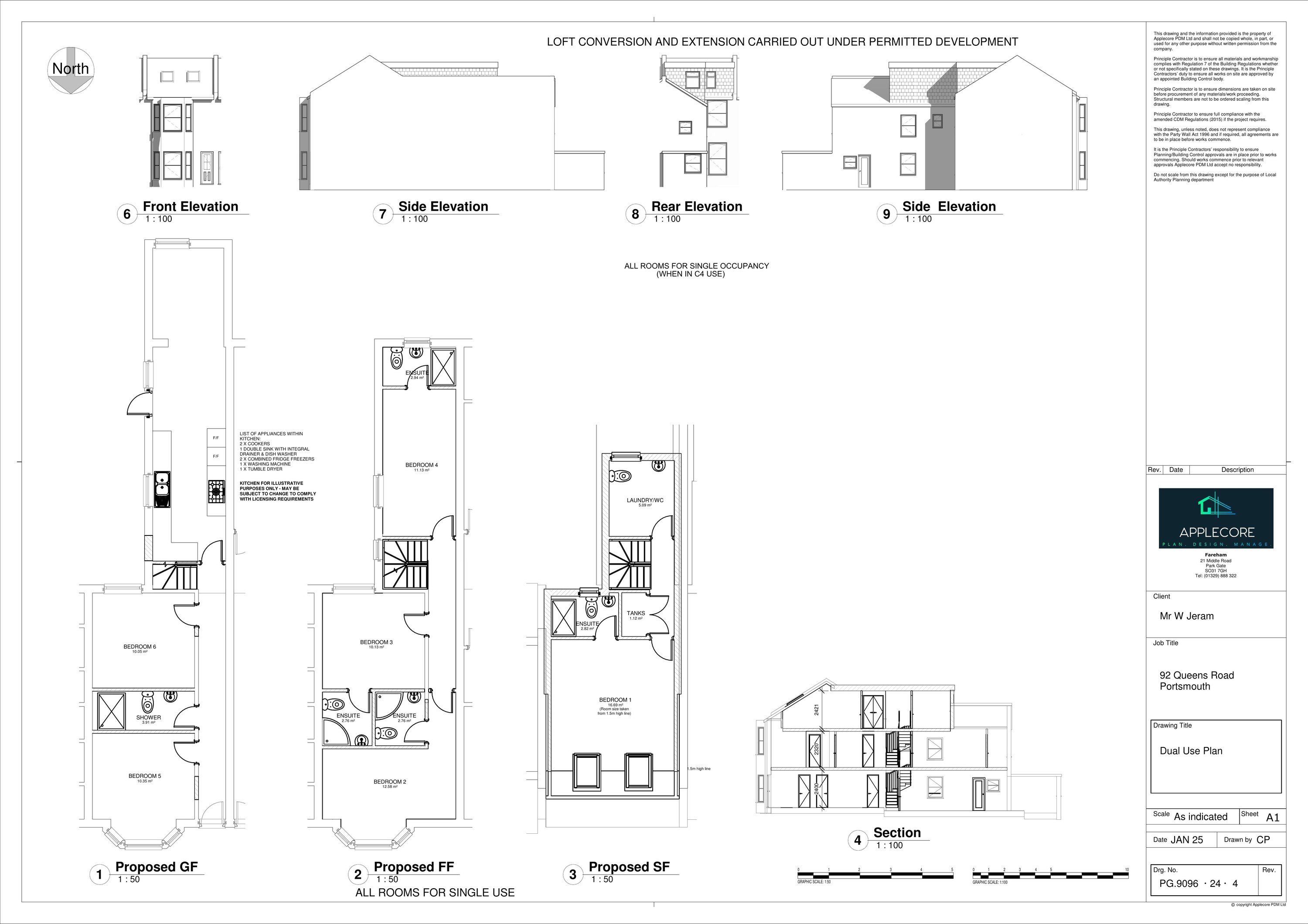
Change of use to allow dwelling to be C4 HMO or remain C3 dwellinghouse.

Full proposal

Change of use from dwellinghouse (Class C3) to purposes falling within Class C4 (House in Multiple Occupation) or Class C3 (dwellinghouse)

Documents

OS Extract
Archived · Original link
Block Plan
Archived · Original link
Decision
Archived · Original link
Drawing
Archived · Original link

Have your say

Your comment matters. Councils must consider every representation that raises material planning considerations.

Write a comment