← Portsmouth City Council

Status

Unknown House extension
Received
25 Apr 2025
New homes
0

Full proposal

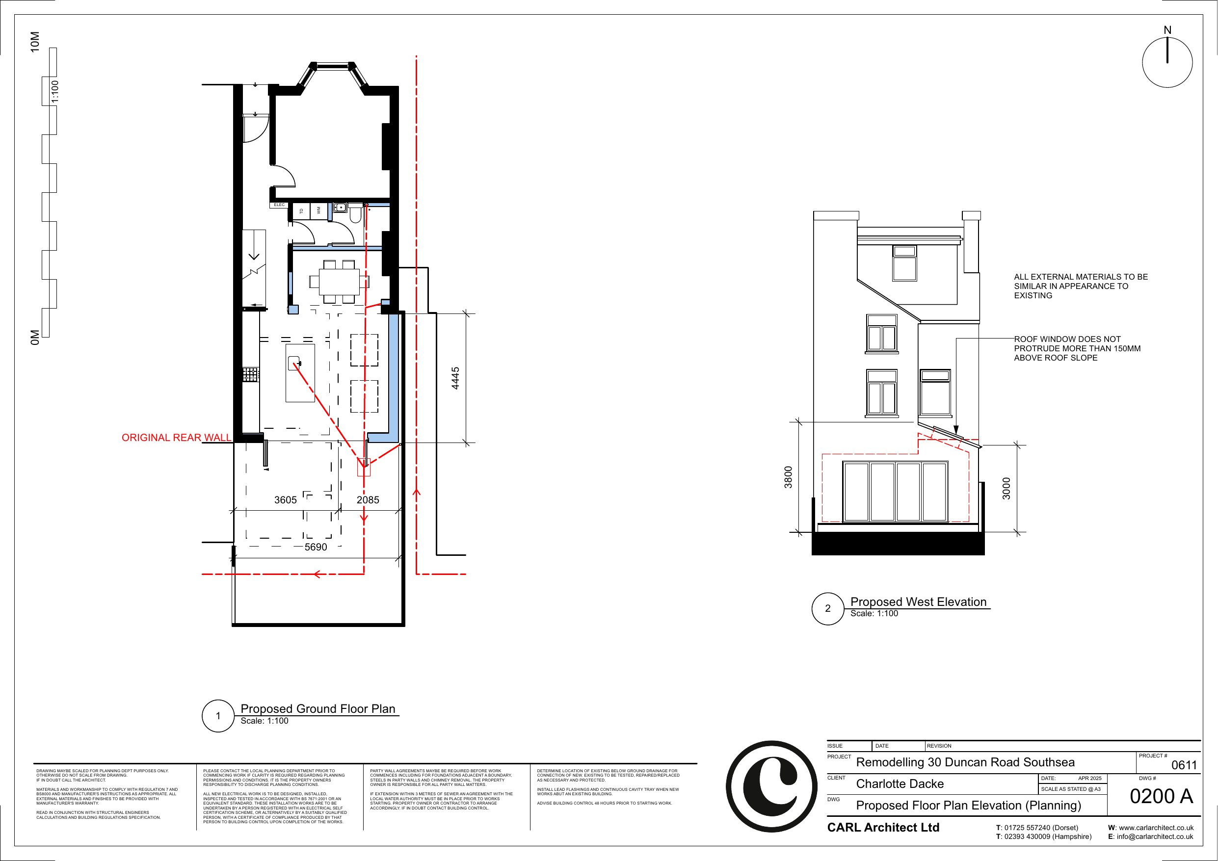
Construction of single storey rear extension; extending 4.45m from the rear wall, with a maximum height of 3.8m and measuring 3m to the eaves

Have your say

Your comment matters. Councils must consider every representation that raises material planning considerations.

Write a comment