← Portsmouth City Council

Status

Unknown House extension
Received
30 May 2025
New homes
0

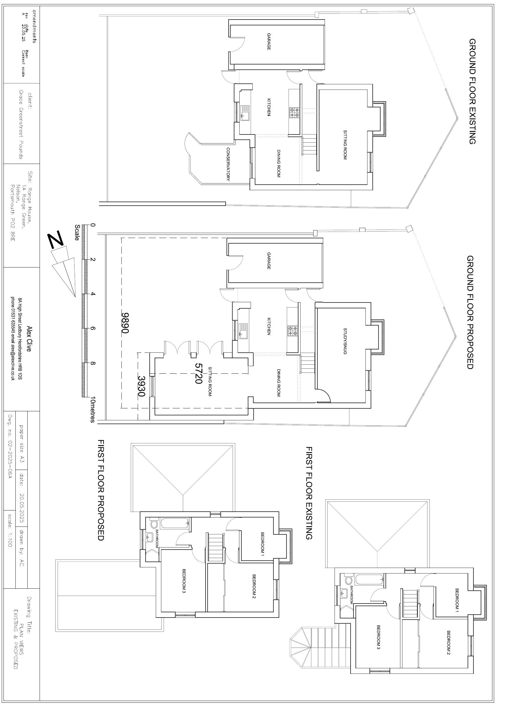
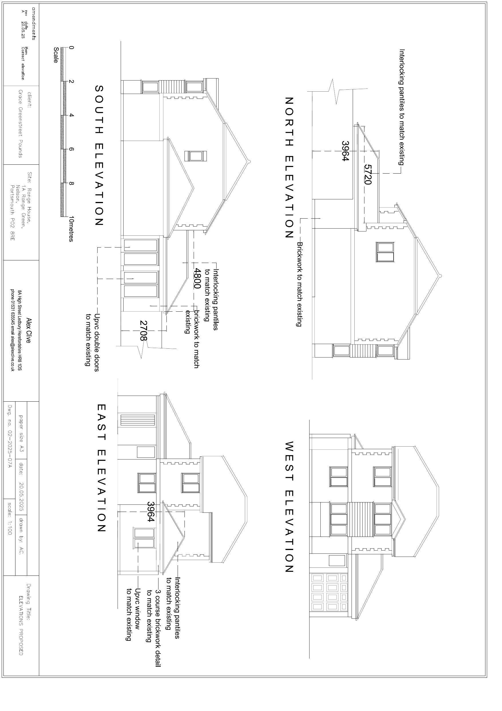
Full proposal

Construction of single storey rear extension; extending 5.72m from the rear wall, with a maximum height of 3.93m and measuring 2.7m to the eaves

Documents

Drawing
Archived · Original link
Drawing
Archived · Original link
Drawing
Archived · Original link
Block Plan
Archived · Original link
Block Plan
Archived · Original link
Application Form
Archived · Original link
Decision
Archived · Original link

Have your say

Your comment matters. Councils must consider every representation that raises material planning considerations.

Write a comment