← Portsmouth City Council

Status

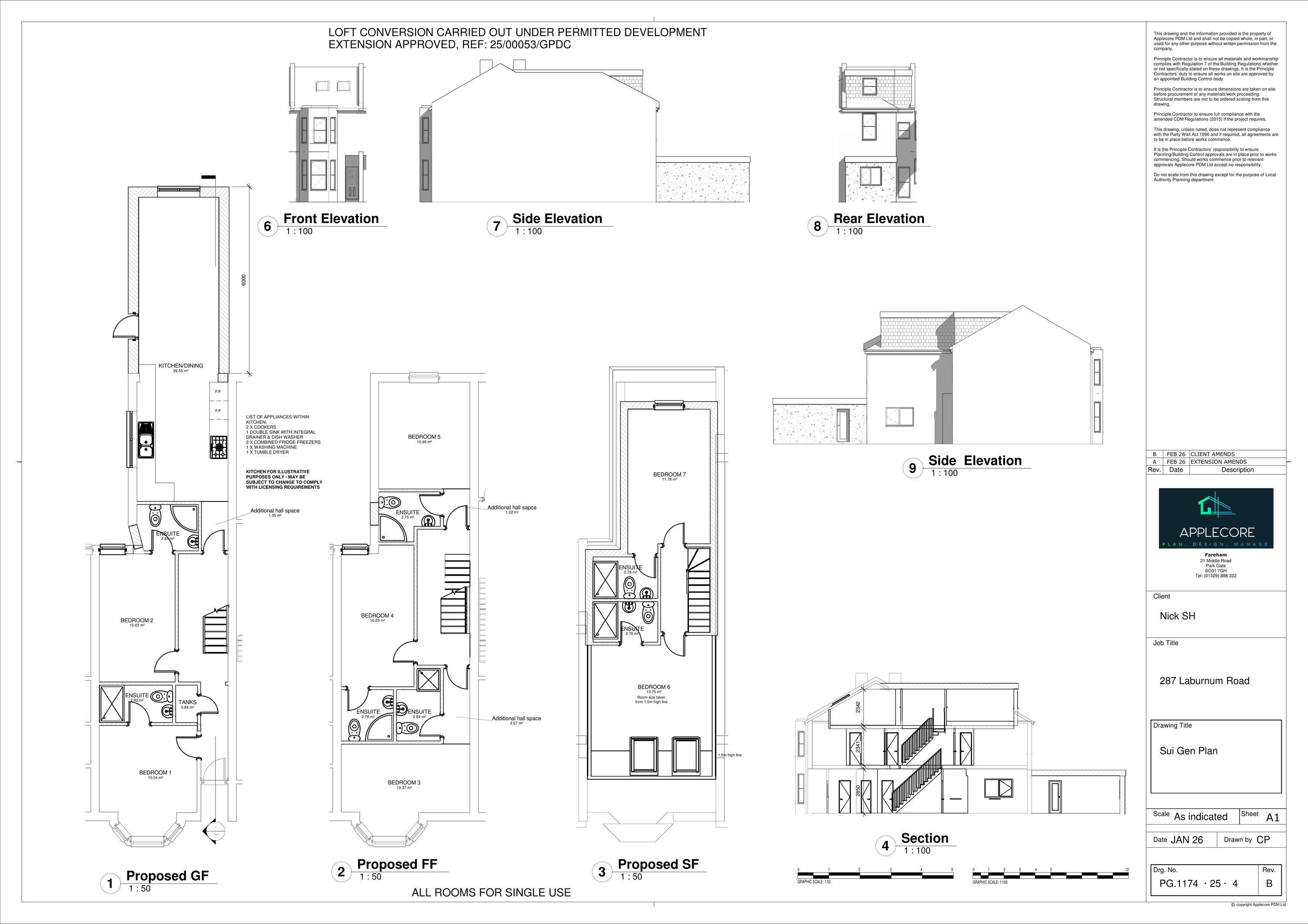
Unknown House extension
Received
23 Dec 2025
New homes
0

Full proposal

Construction of single storey rear extension, extending 6m beyond the rear wall, with a height of 3m to the eaves and maximum height of 3m

Documents

OS Extract
Archived · Original link
OS Extract
Archived · Original link
Drawing
Archived · Original link

Have your say

Your comment matters. Councils must consider every representation that raises material planning considerations.

Write a comment