← Portsmouth City Council

Status

Unknown Change of use
Received
09 Apr 2025
New homes
1

Summary

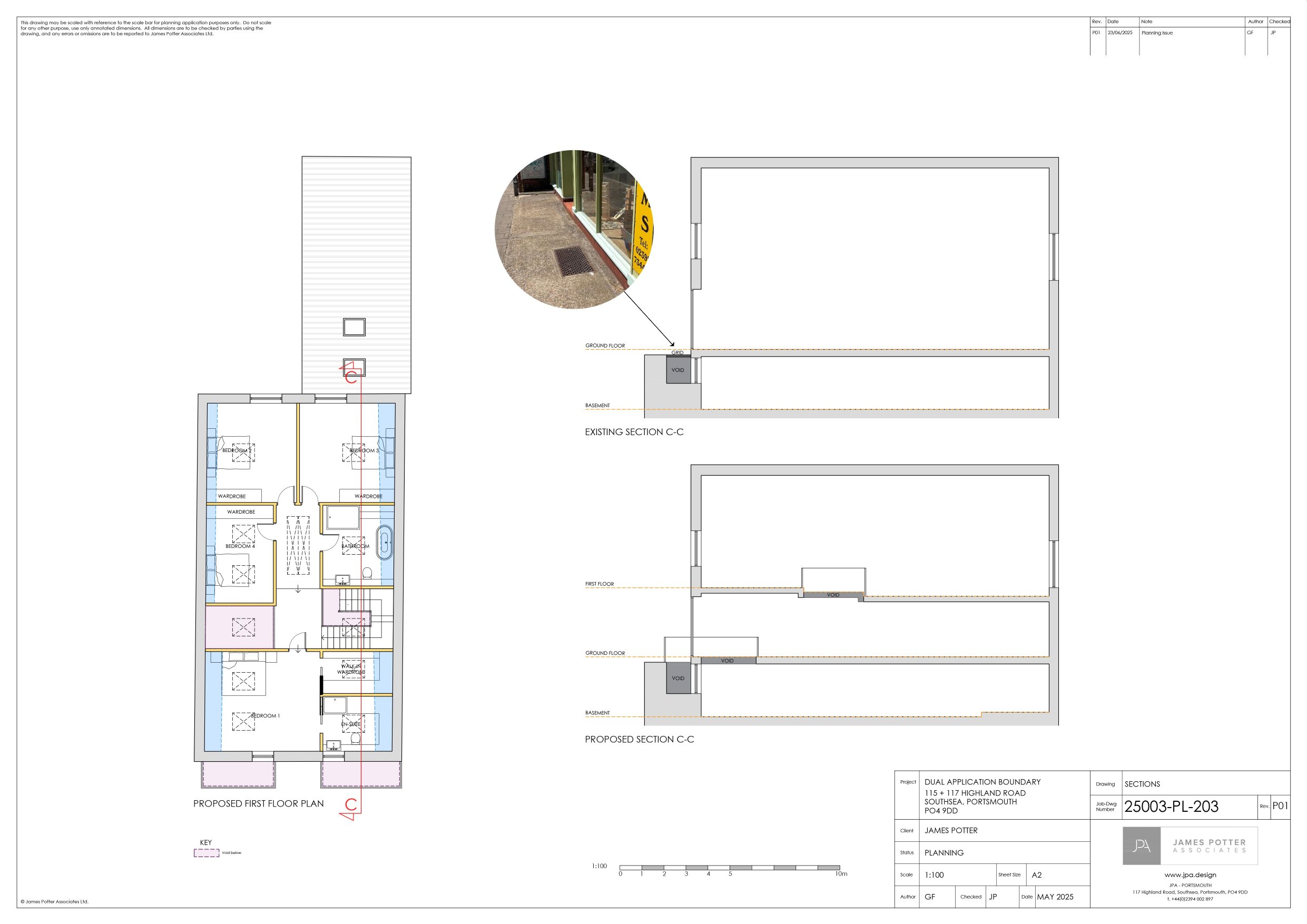
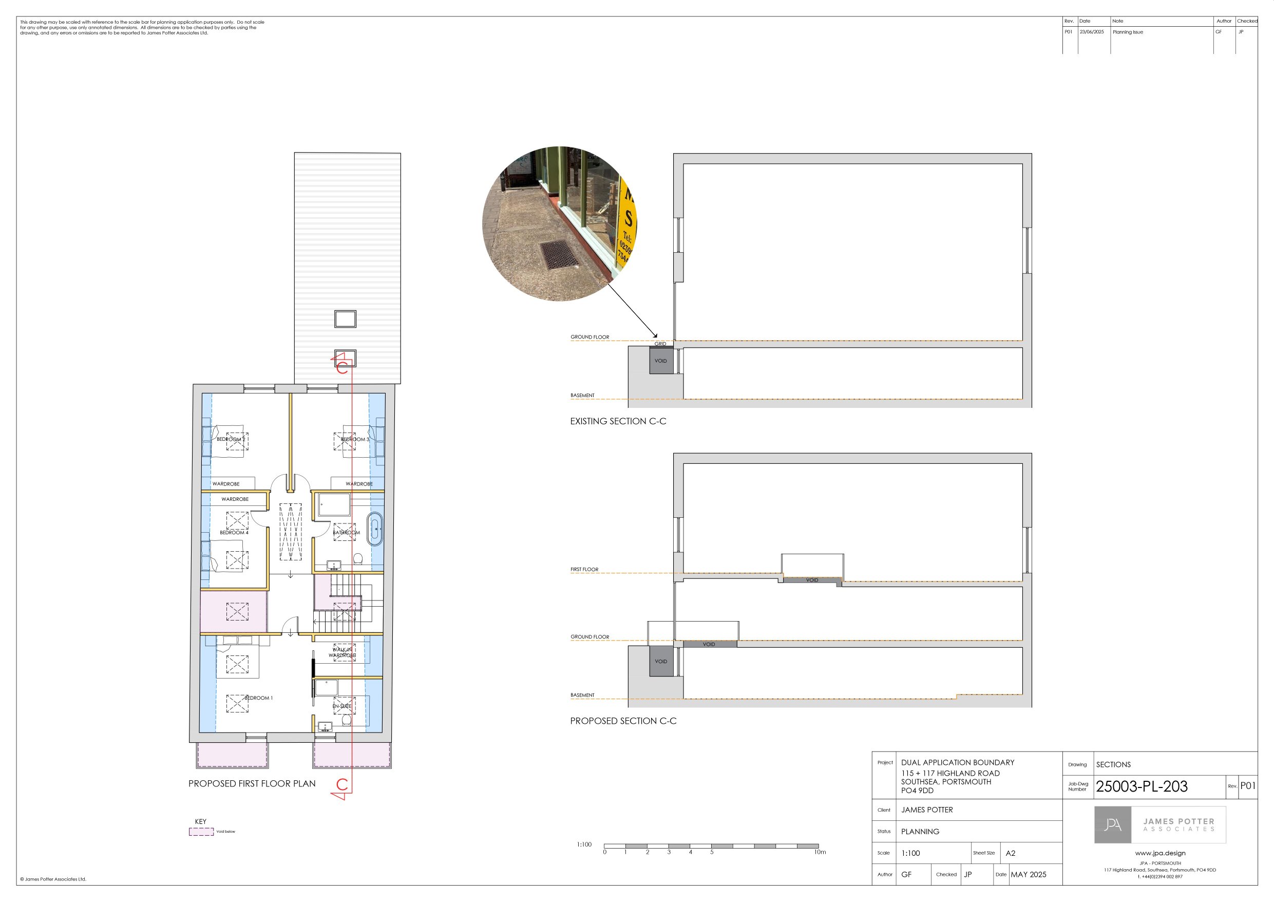
Convert retail unit to one four-bedroom dwelling with external alterations.

Full proposal

Conversion from retail (Class E) to 1no. 4-bed dwellinghouse (Class C3) including associated external alterations

Documents

Revised Drawing
Archived · Original link
Application Form
Archived · Original link
APPROPRIATE ASSESSMENT
Report
Not yet archived · Original link
Consultee Comment
Archived · Original link
Consultee Comment
Archived · Original link
Decision
Archived · Original link
Site Notice
Archived · Original link
Consultee Comment
Archived · Original link
NUTRIENT BUDGET
Report
Not yet archived · Original link
Decision
Archived · Original link
Design & Access Statement
Archived · Original link
Revised Drawing
Archived · Original link
Consultee Comment
Archived · Original link
Drawing
Archived · Original link
Revised Drawing
Archived · Original link
Drawing
Archived · Original link

Have your say

Your comment matters. Councils must consider every representation that raises material planning considerations.

Write a comment