← Portsmouth City Council

Status

Unknown House extension
Received
16 Apr 2025
New homes
0

Full proposal

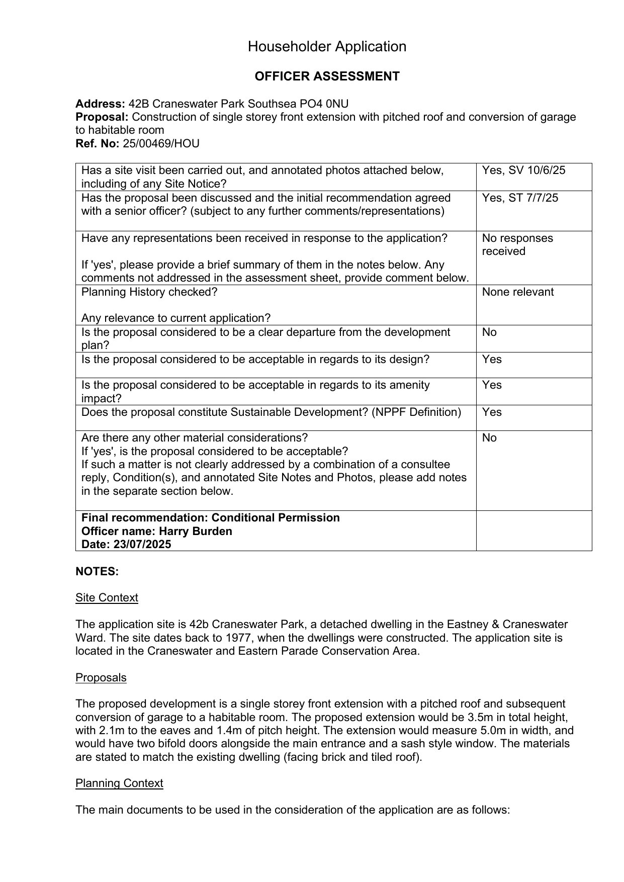
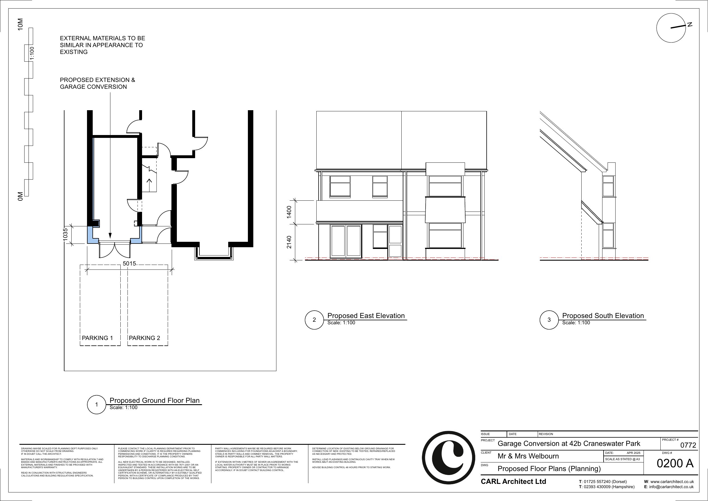
Construction of single storey front extension with pitched roof and conversion of garage to habitable room

Documents

42B CRANESWATER PARK HERITAGE AND FRA STATEMENTS V1.DOCX
Heritage Statement
Not yet archived · Original link
Application Form
Archived · Original link
Decision
Archived · Original link
Decision
Archived · Original link

Have your say

Your comment matters. Councils must consider every representation that raises material planning considerations.

Write a comment