← Portsmouth City Council

Status

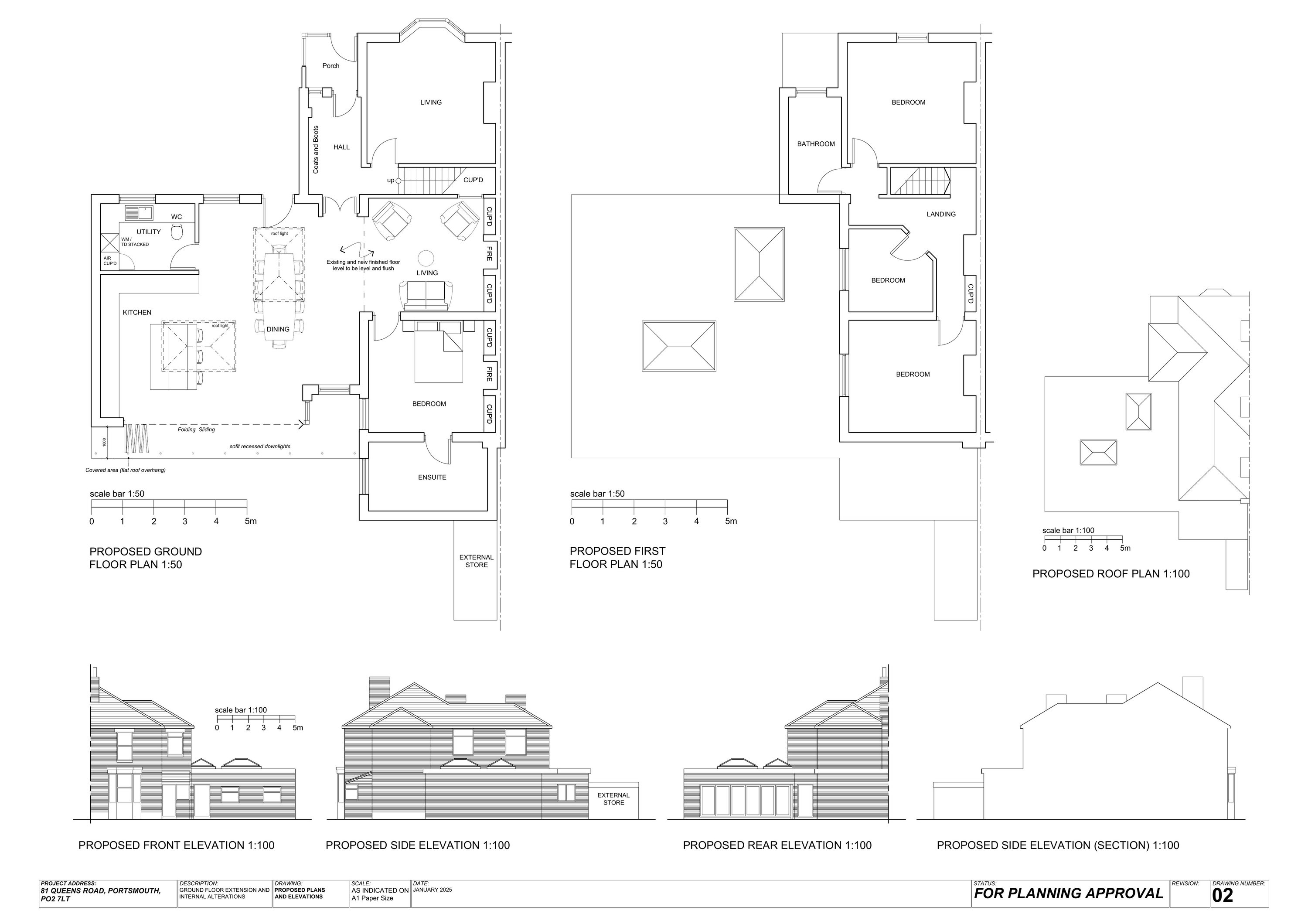
Unknown House extension
Received
17 Apr 2025
New homes
0

Full proposal

Remodelling of, and extension to, the existing single storey side/rear extensions (including raising of roof height and the incorporation of roof lanterns)

Have your say

Your comment matters. Councils must consider every representation that raises material planning considerations.

Write a comment