← Back to Portsmouth City Council
Application
25/00518/FUL
Portsmouth City Council · IDOX
Status
Unknown
Change of use
Received
30 Apr 2025
New dwellings
0
What you can do
Take Action
Make your voice heard. Authorities need to hear from people who support new homes.
Summary
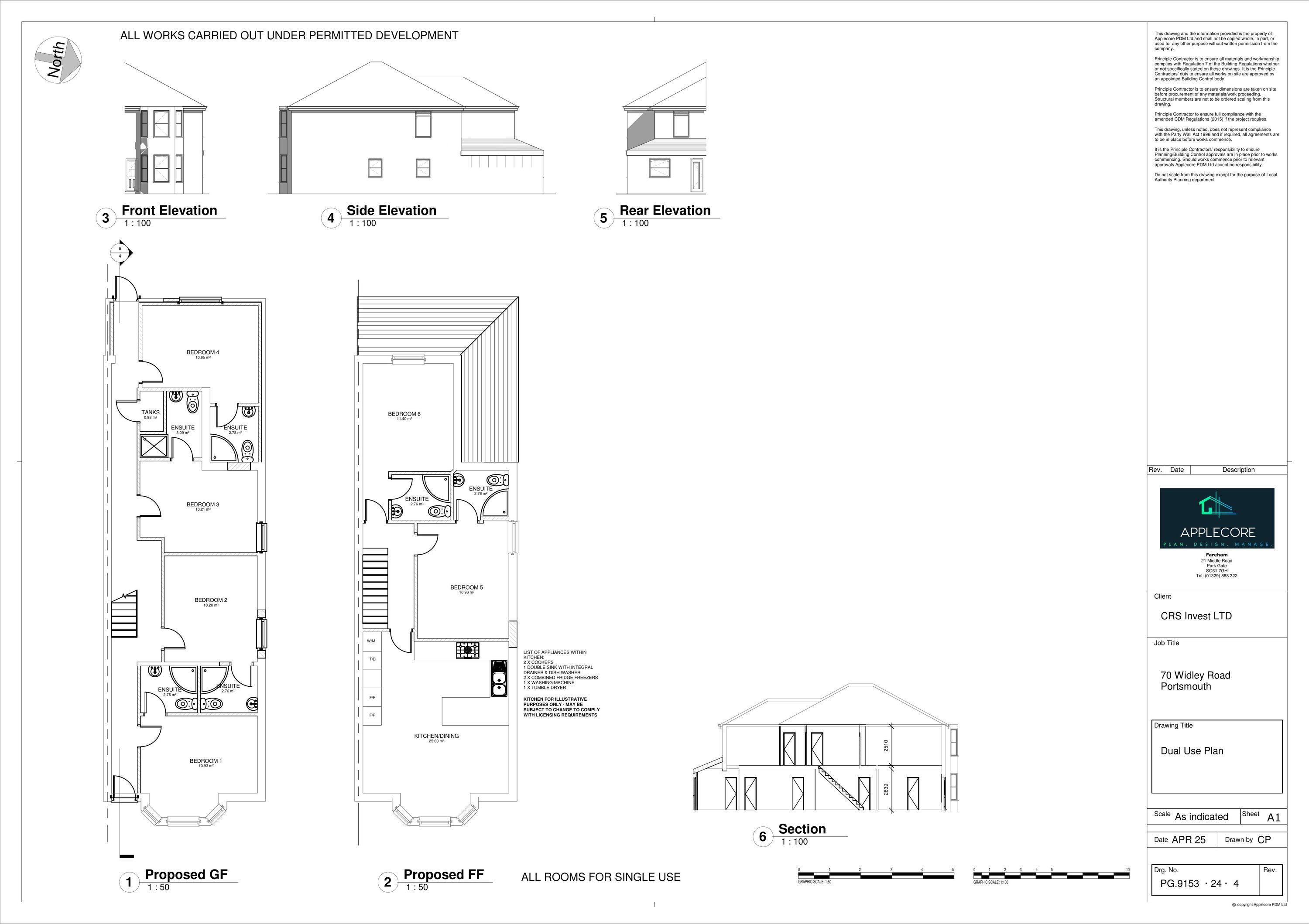
Change of use between dwellinghouse (C3) and house in multiple occupation (C4).
Full Proposal
Change of use from dwellinghouse (Class C3) to purposes falling within dwellinghouse (Class C3) or house in multiple occupation (Class C4)
Detail pages
- View live detail on council site
- No archived detail page available.
Documents
70 WIDLEY ROAD 1250
OS Extract
Not downloaded
· Council link
70 WIDLEY ROAD 1500 WITH BIKES
Drawing
Not downloaded
· Council link
COMMITTEE REPORT
Committee Report
Not downloaded
· Council link
DECISION
Decision
Not downloaded
· Council link
DUAL USE PLAN
Drawing
Not downloaded
· Council link
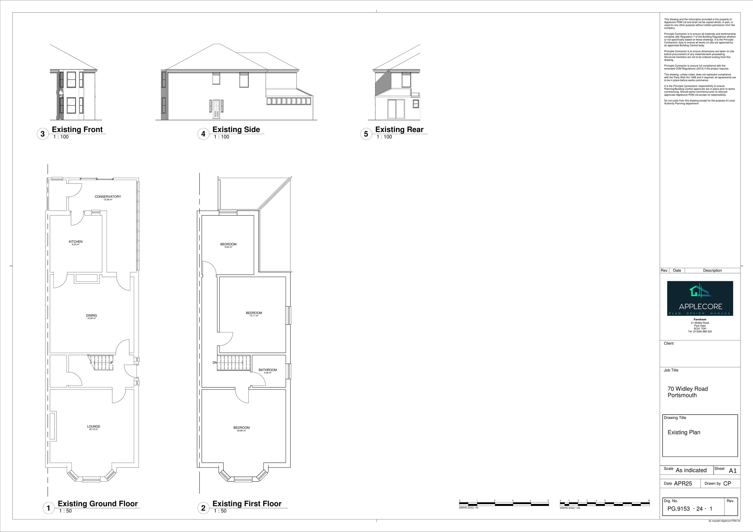
EXISTING PLAN
Drawing
Not downloaded
· Council link
SUPPLEMENTARY MATTERS LIST
Committee Report
Not downloaded
· Council link