← Back to Portsmouth City Council
Application
25/00568/FUL
Portsmouth City Council · IDOX
Status
What you can do
Take Action
Make your voice heard. Authorities need to hear from people who support new homes.
Summary
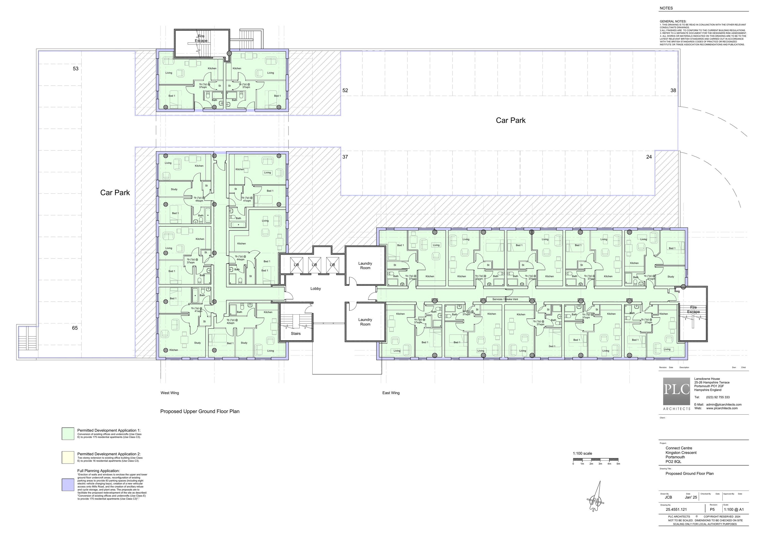
Façade alterations to facilitate conversion of offices to 175 residential apartments.
Full Proposal
Replacement of existing facade with cladding and glazing panels, including reconfiguration of existing single storey entrance lobby to provide this with a flat roof. The proposals are to facilitate the proposed redevelopment of the site as described: "Conversion of existing offices and undercrofts (Use Class E) to provide 175 residential apartments (Use Class C3) under Prior Approval under Part 3, Schedule 2, Class MA of the Town and Country Planning (General Permitted Development etc.) (England) (Amendment) Order 2021."
Detail pages
- View live detail on council site
- No archived detail page available.