← Portsmouth City Council

Status

Unknown House extension
Received
07 May 2025
New homes
0

Full proposal

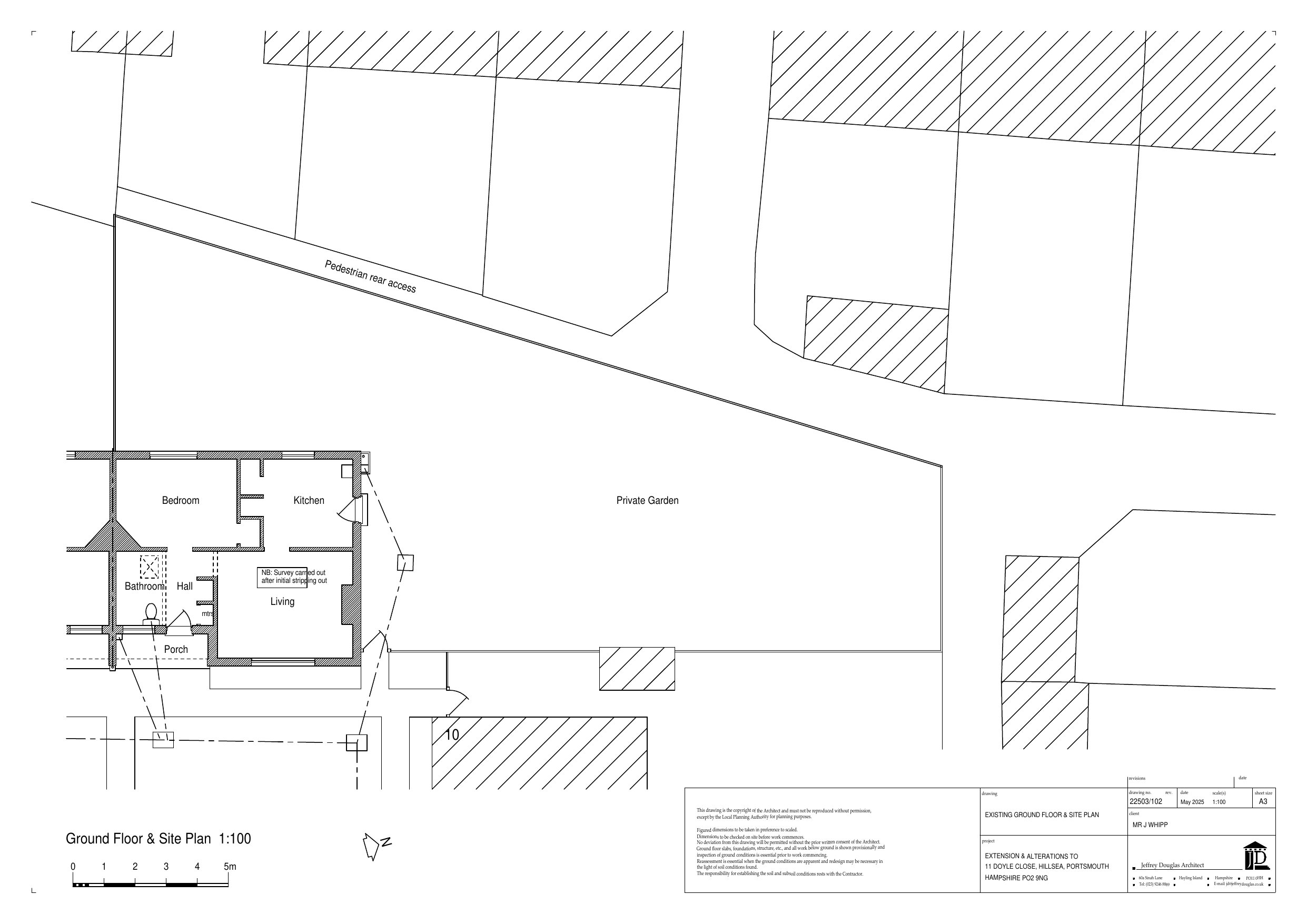
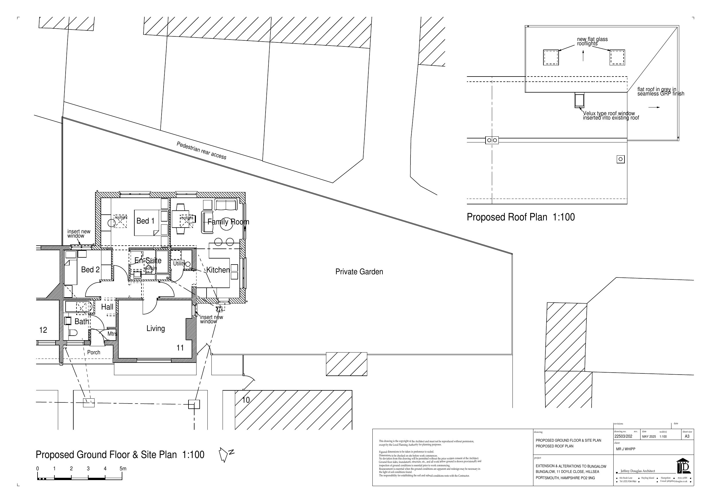
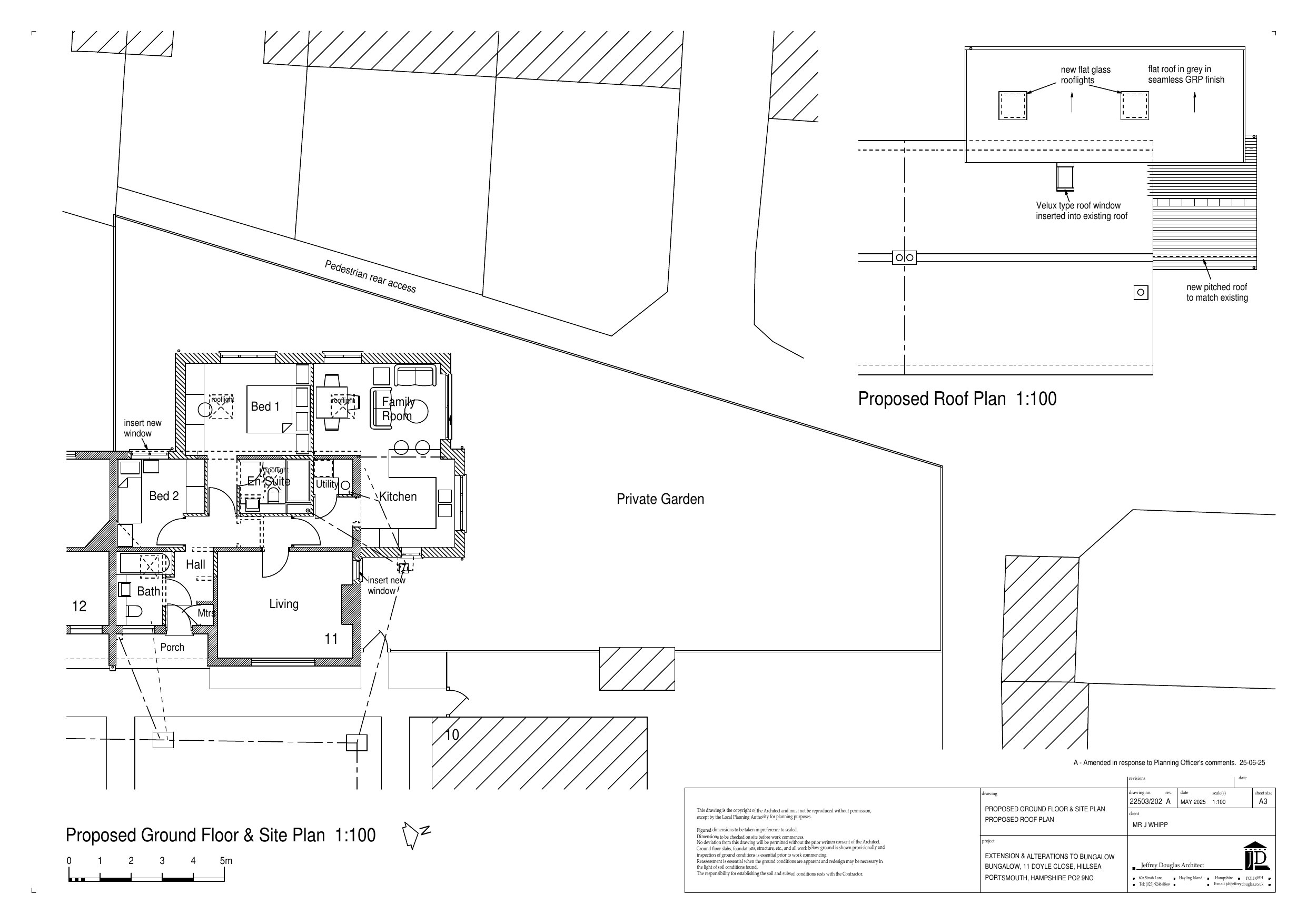
Construction of single storey rear and side extension and installation of 2 no. windows into existing north-east and north-west elevations

Documents

Revised Drawing
Archived · Original link
Revised Drawing
Archived · Original link
Application Form
Archived · Original link
Consultee Comment
Archived · Original link
Decision
Archived · Original link
Drawing
Archived · Original link
Decision
Archived · Original link
Planning Statement
Archived · Original link
Drawing
Archived · Original link

Have your say

Your comment matters. Councils must consider every representation that raises material planning considerations.

Write a comment