← Portsmouth City Council

Status

Unknown Listed building
Received
26 May 2025
New homes
0

Full proposal

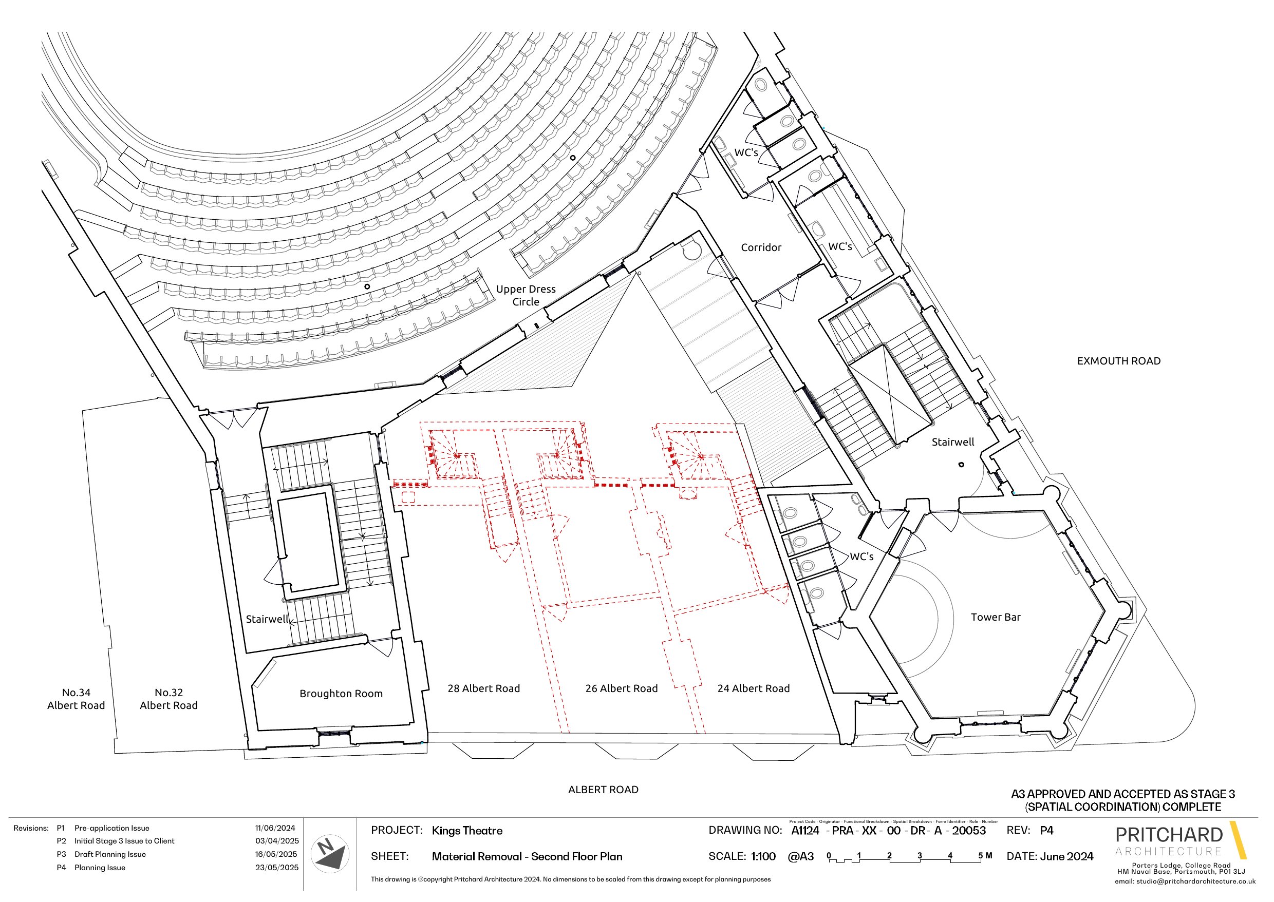
Partial demolition of 24-28 Albert road with facade retention, construction of new foyer, bar, toilets, studio and circulation spaces. Alterations and repair works to the Grade II* listed building, including investigation works to the Portico

Documents

Decision
Archived · Original link
OS Extract
Archived · Original link
OFFICER ASSESSMENT SHEET
Decision
Not yet archived · Original link

Have your say

Your comment matters. Councils must consider every representation that raises material planning considerations.

Write a comment