← Portsmouth City Council

Status

Unknown Listed building
Received
17 Sep 2025
New homes
2

Summary

Listed building alterations to create two flats from existing commercial unit, with external door/window works.

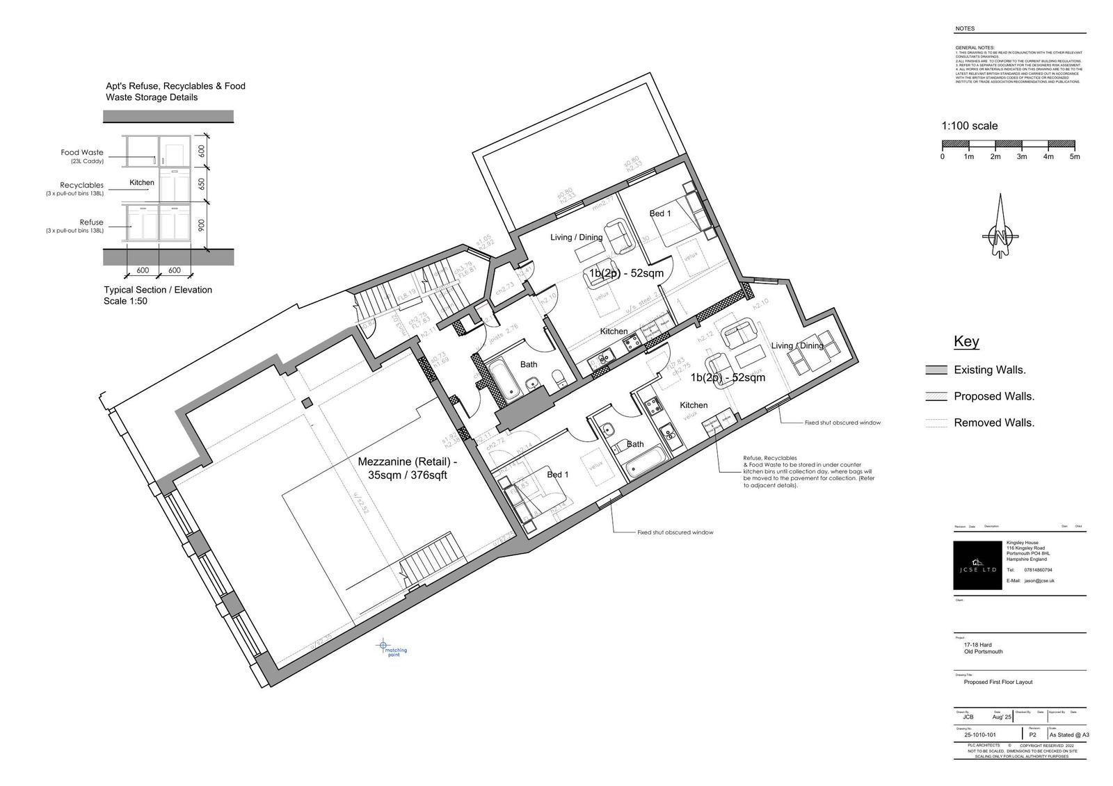
Full proposal

Internal alterations including reconfiguration of mezzanine floor to existing commercial unit and new walls to facilitate creation of 2no. flats to first floor External alterations including replacement doors and windows and relocation of rooflights and installation of two new side (north) first floor windows

Documents

25.1010.050_P1_EXISTING GROUND FLOOR
Drawing
Not yet archived · Original link
25.1010.051_P1_EXISTING FIRST FLOOR
Drawing
Not yet archived · Original link
25.1010.052_P1_EXISTING SECOND FLOOR
Drawing
Not yet archived · Original link
25.1010.053_P1_EXISTING THRD FLOOR
Drawing
Not yet archived · Original link
25.1010.054_P1_EXISTING SITE
Drawing
Not yet archived · Original link
25.1010.055_P1_EXISTING ELEVATIONS
Drawing
Not yet archived · Original link
25.1010.100_P1_PROPOSED GROUND FLOOR
Drawing
Not yet archived · Original link
25.1010.101_P1_PROPOSED FIRST FLOOR
Drawing
Not yet archived · Original link
25.1010.102_P1_PROPOSED SECOND FLOOR
Drawing
Not yet archived · Original link
25.1010.103_P1_PROPOSED THIRD FLOOR
Drawing
Not yet archived · Original link
25.1010.104_P2_PROPOSED SITE
Drawing
Not yet archived · Original link
25.1010.105_P1_PROPOSED ELEVATIONS
Drawing
Not yet archived · Original link
APPLICATIONFORMREDACTED
Other
Not yet archived · Original link
CIL FORM 1
CIL Questions
Not yet archived · Original link
DECISION NOTICE
Decision
Not yet archived · Original link
LOCATION PLAN
OS Extract
Not yet archived · Original link
OFFICER ASSESSMENT
Decision
Not yet archived · Original link
PROPOSED ELEVATIONS
Revised Drawing
Not yet archived · Original link
PROPOSED GROUND FLOOR PLAN
Revised Drawing
Not yet archived · Original link
PROPOSED SECOND FLOOR PLAN
Revised Drawing
Not yet archived · Original link
Revised Drawing
Archived · Original link
Revised Drawing
Archived · Original link

Have your say

Your comment matters. Councils must consider every representation that raises material planning considerations.

Write a comment