← Portsmouth City Council

Status

Awaiting decision House extension
Received
19 Dec 2025
New homes
0

Full proposal

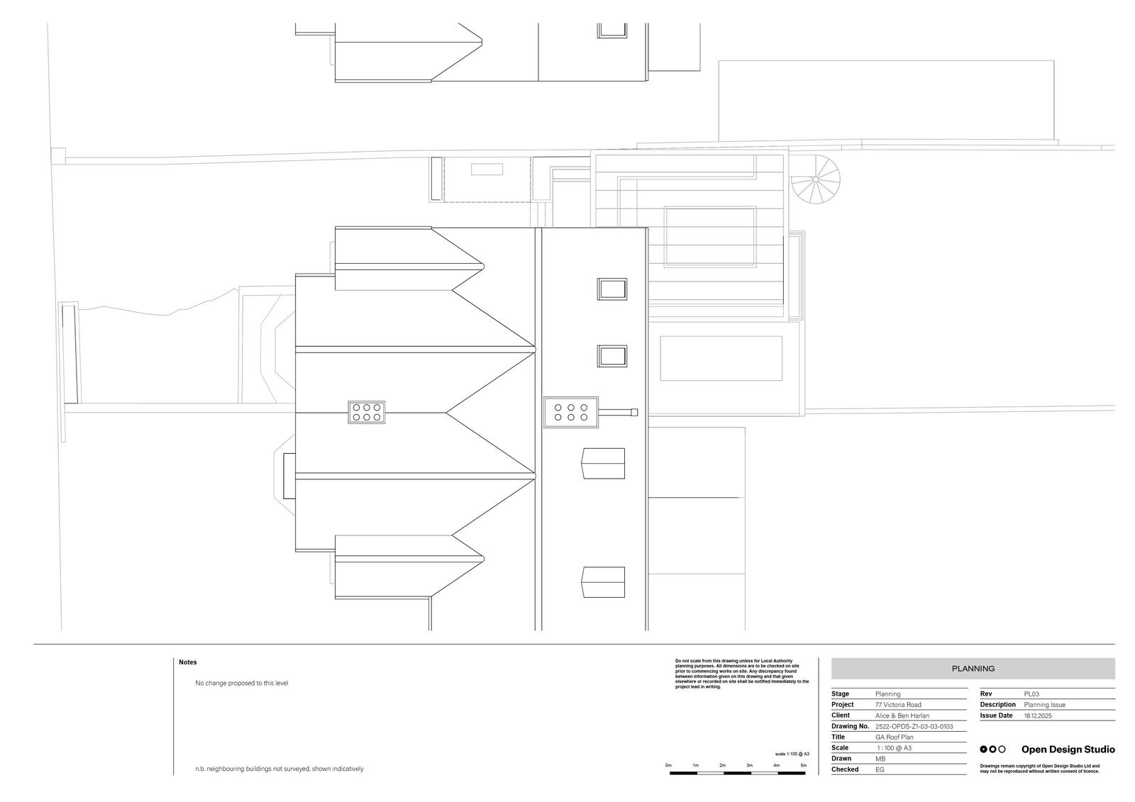
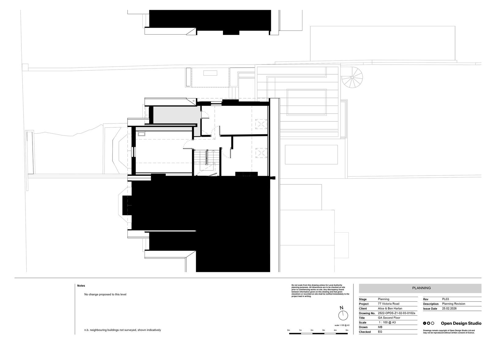
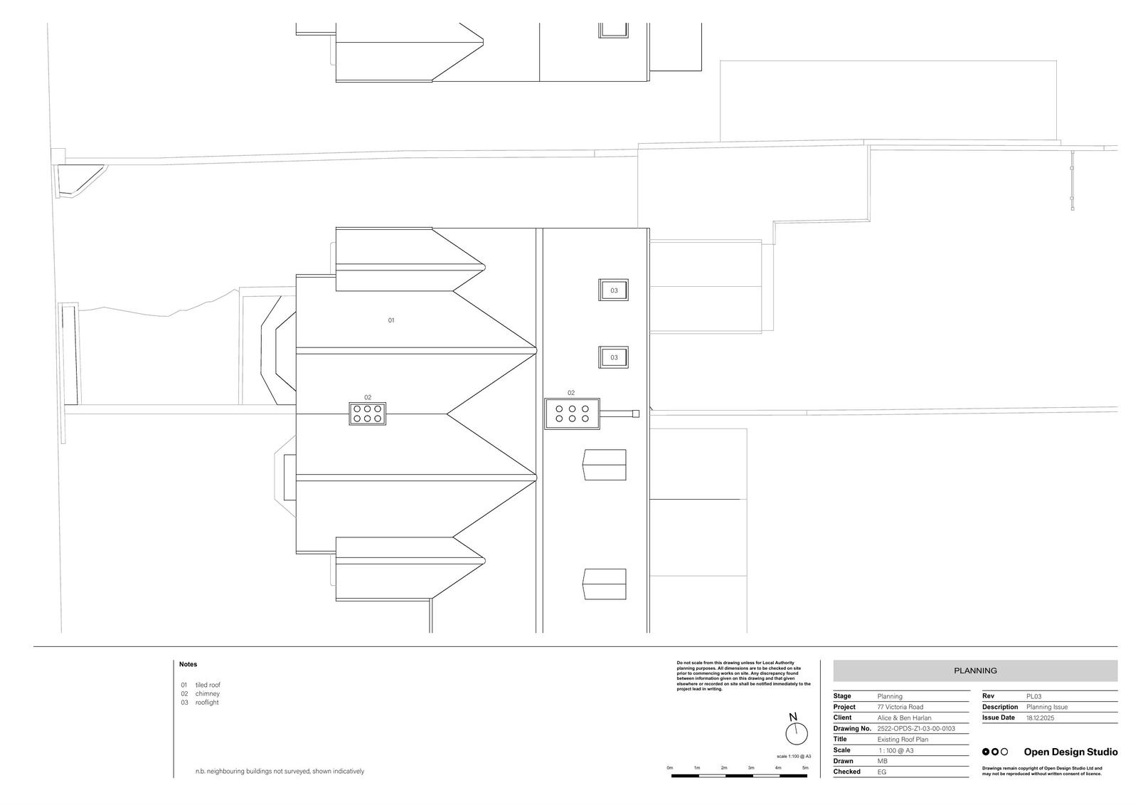
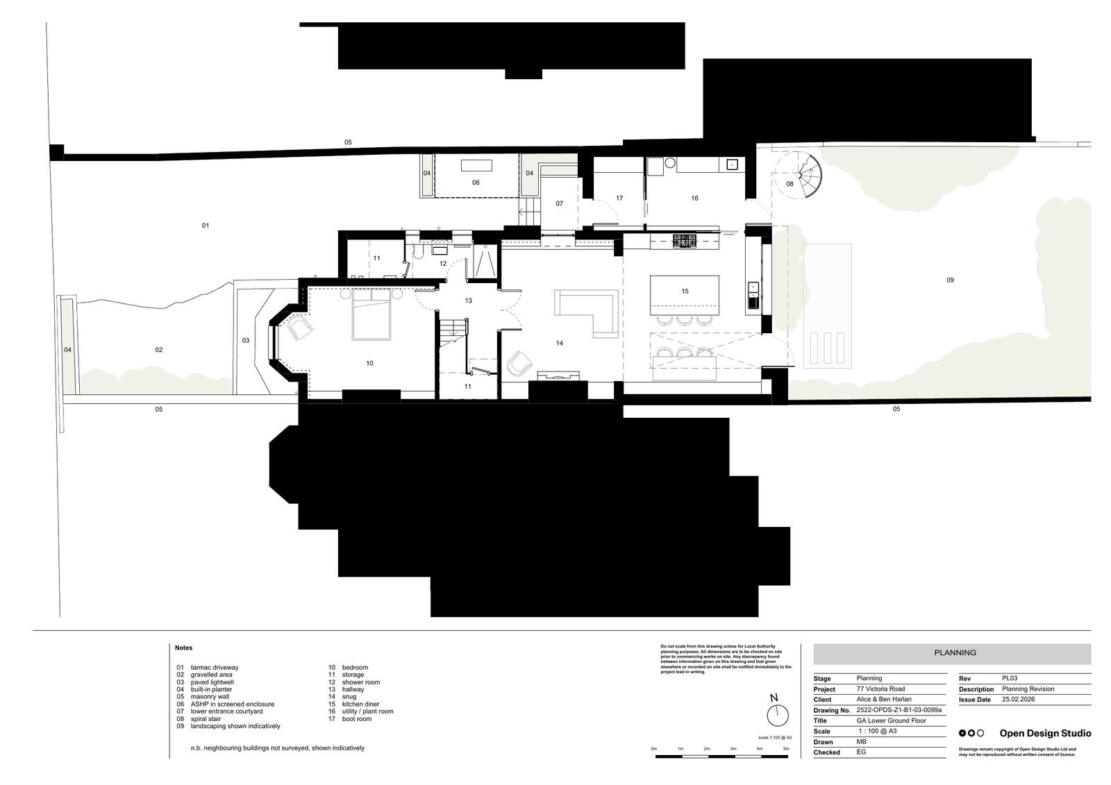
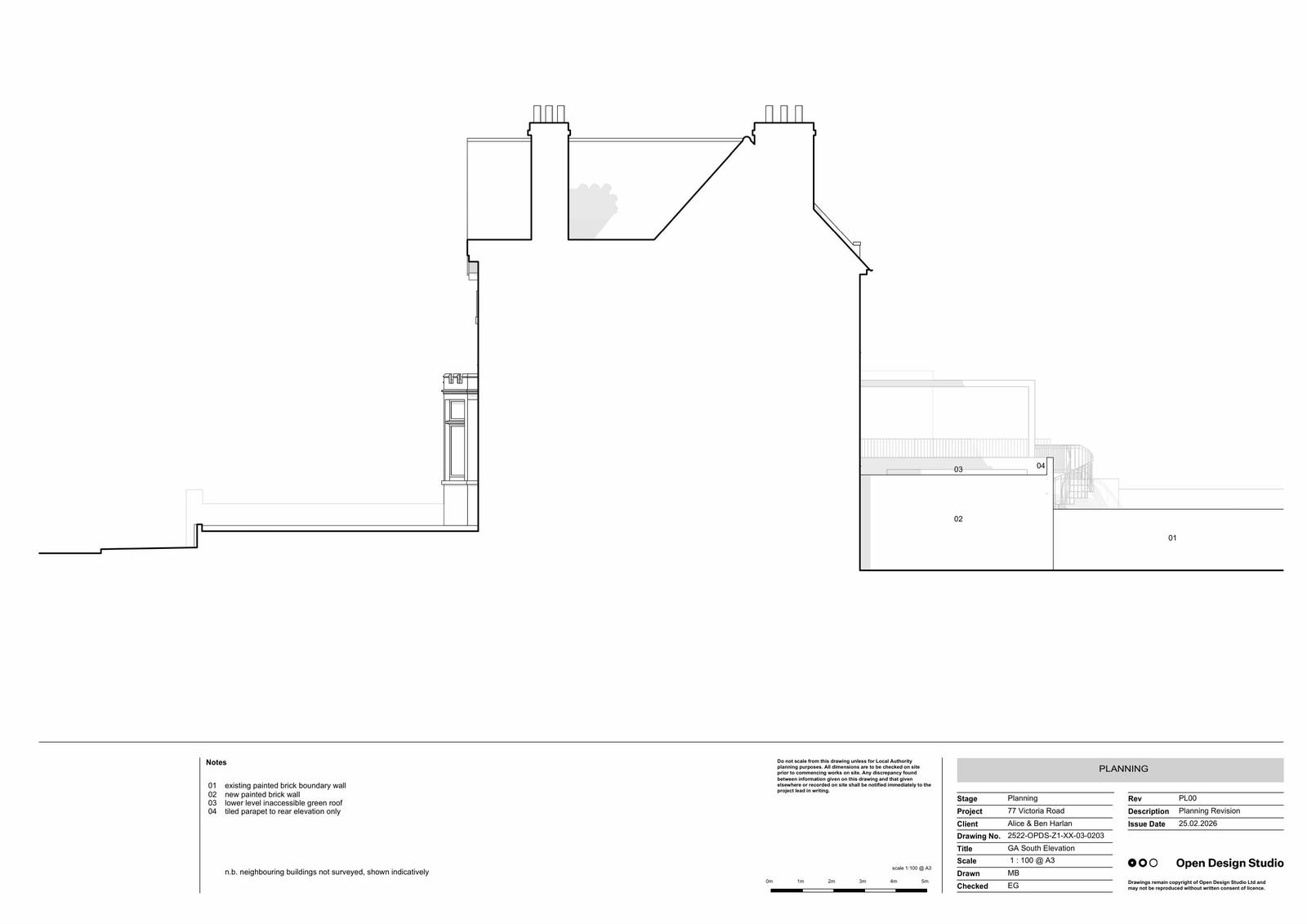
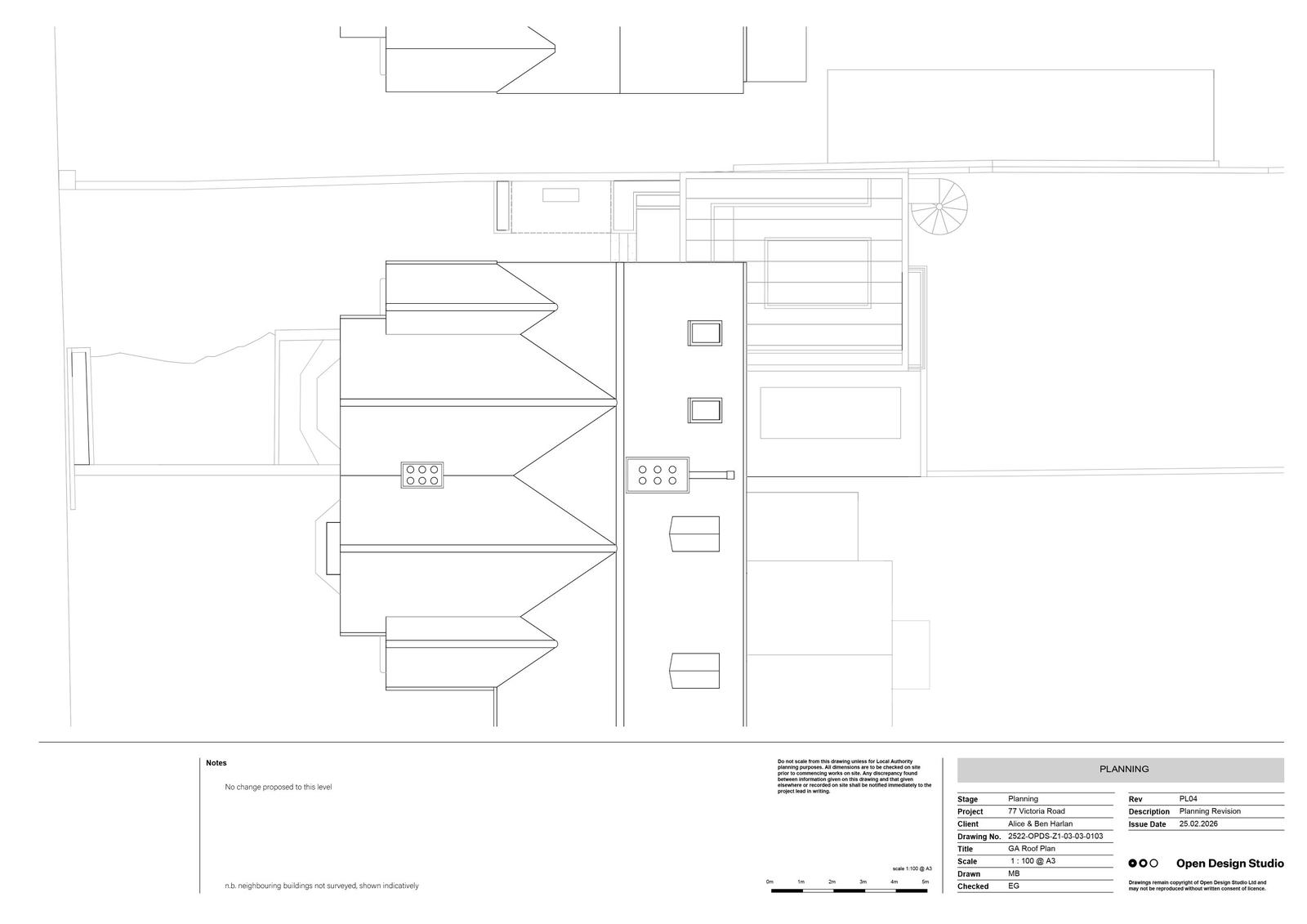
Construction of single storey rear and side extension with terrace at first floor (following removal of existing extension and garage), alterations to fenestration and installation of heat pump

Documents

Block Plan
Archived · Original link
Drawing
Archived · Original link
Block Plan
Archived · Original link
Revised Drawing
Archived · Original link
Revised Drawing
Archived · Original link
Revised Drawing
Archived · Original link
Revised Drawing
Archived · Original link
Revised Drawing
Archived · Original link
Drawing
Archived · Original link
Revised Drawing
Archived · Original link
Additional Plans
Archived · Original link
Additional Plans
Archived · Original link
Revised Drawing
Archived · Original link
OS Extract
Archived · Original link

Have your say

Your comment matters. Councils must consider every representation that raises material planning considerations.

Write a comment