← Portsmouth City Council

Status

Awaiting decision Change of use
Received
20 Jan 2026
New homes
0

Full proposal

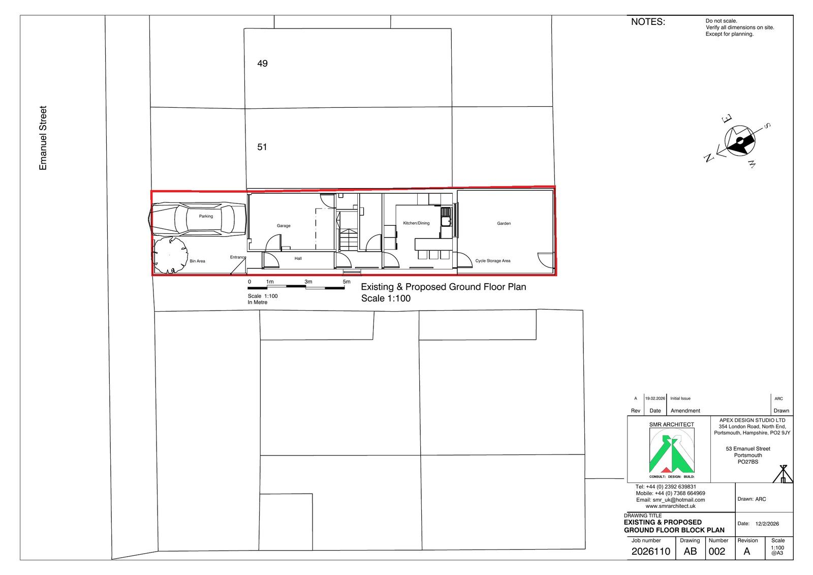
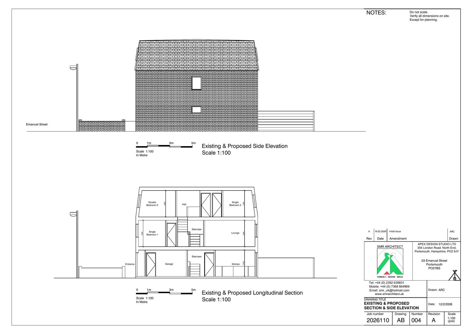
Retrospective application for change of use from dwellinghouse (Class C3) to house in multiple occupation (Class C4)

Documents

Application Form
Archived · Original link
APPLICATIONFORMREDACTED
Application Form
Not yet archived · Original link
Consultee Comment
Archived · Original link
OS Extract
Archived · Original link
LOCATIONPLAN
OS Extract
Not yet archived · Original link

Have your say

Your comment matters. Councils must consider every representation that raises material planning considerations.

Write a comment