← Portsmouth City Council

Status

Awaiting decision Change of use
Received
02 Feb 2026
New homes
0

Full proposal

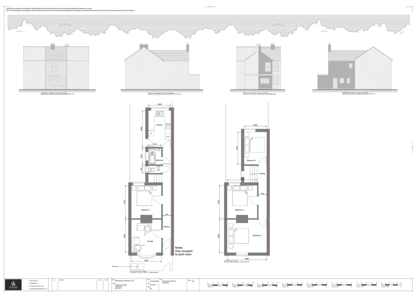
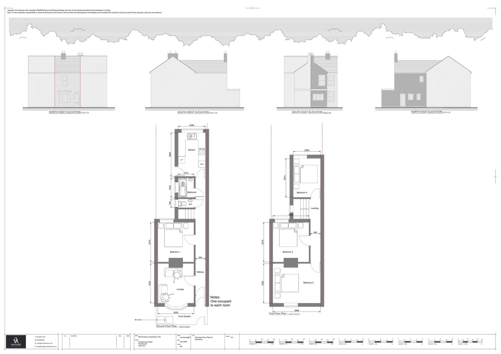
Change of use from dwellinghouse (Class C3) to purposes falling within dwellinghouse (Class C3) or house in multiple occupation (Class C4)

Documents

Additional Plans
Archived · Original link
Additional Plans
Archived · Original link
Application Form
Archived · Original link
Consultees
Archived · Original link
Consultees
Archived · Original link
Consultees
Archived · Original link
Site Notice
Archived · Original link

Have your say

Your comment matters. Councils must consider every representation that raises material planning considerations.

Write a comment