← Portsmouth City Council

Status

Awaiting decision Other
Received
Last month
New homes
0

Full proposal

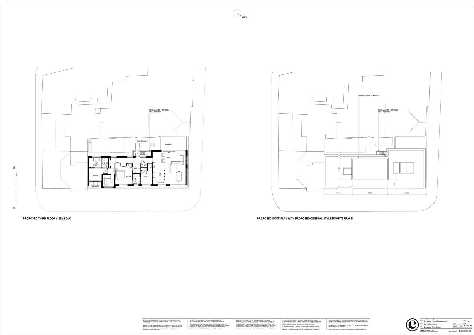
Construction of additional floor to create 3-bed flat; raising of parapet wall; installation of balustrading, extension to existing fire escape and a roof terrace with a glass balustrade with rear external staircase

Documents

Additional Plans
Archived · Original link
Additional Plans
Archived · Original link
Additional Plans
Archived · Original link
Additional Plans
Archived · Original link
Additional Plans
Archived · Original link
Design & Access Statement
Archived · Original link
Application Form
Archived · Original link
Objection Comment
Archived · Original link

Have your say

Your comment matters. Councils must consider every representation that raises material planning considerations.

Write a comment