← Portsmouth City Council

Status

Awaiting decision Change of use
Received
Last month
New homes
0

Full proposal

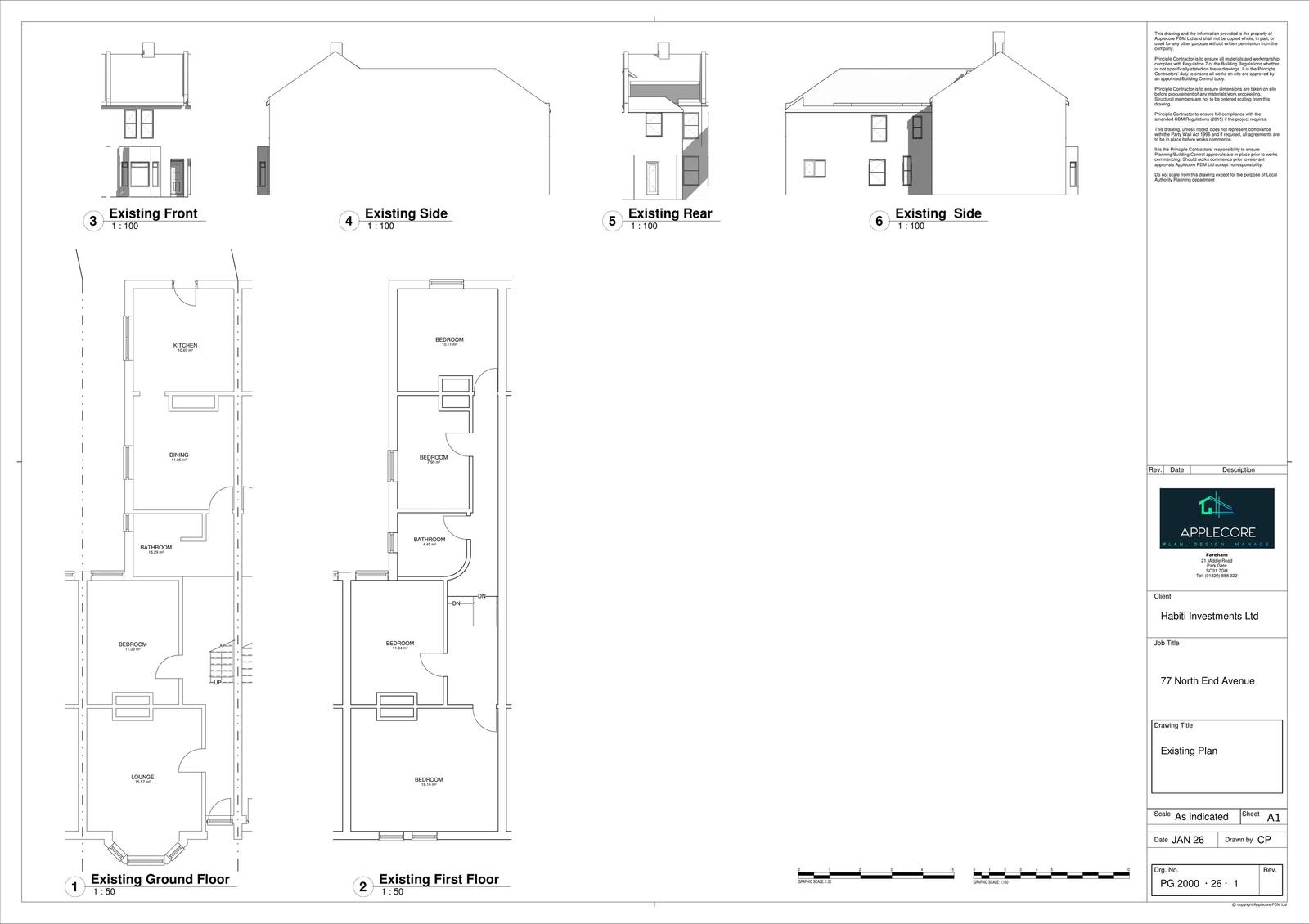
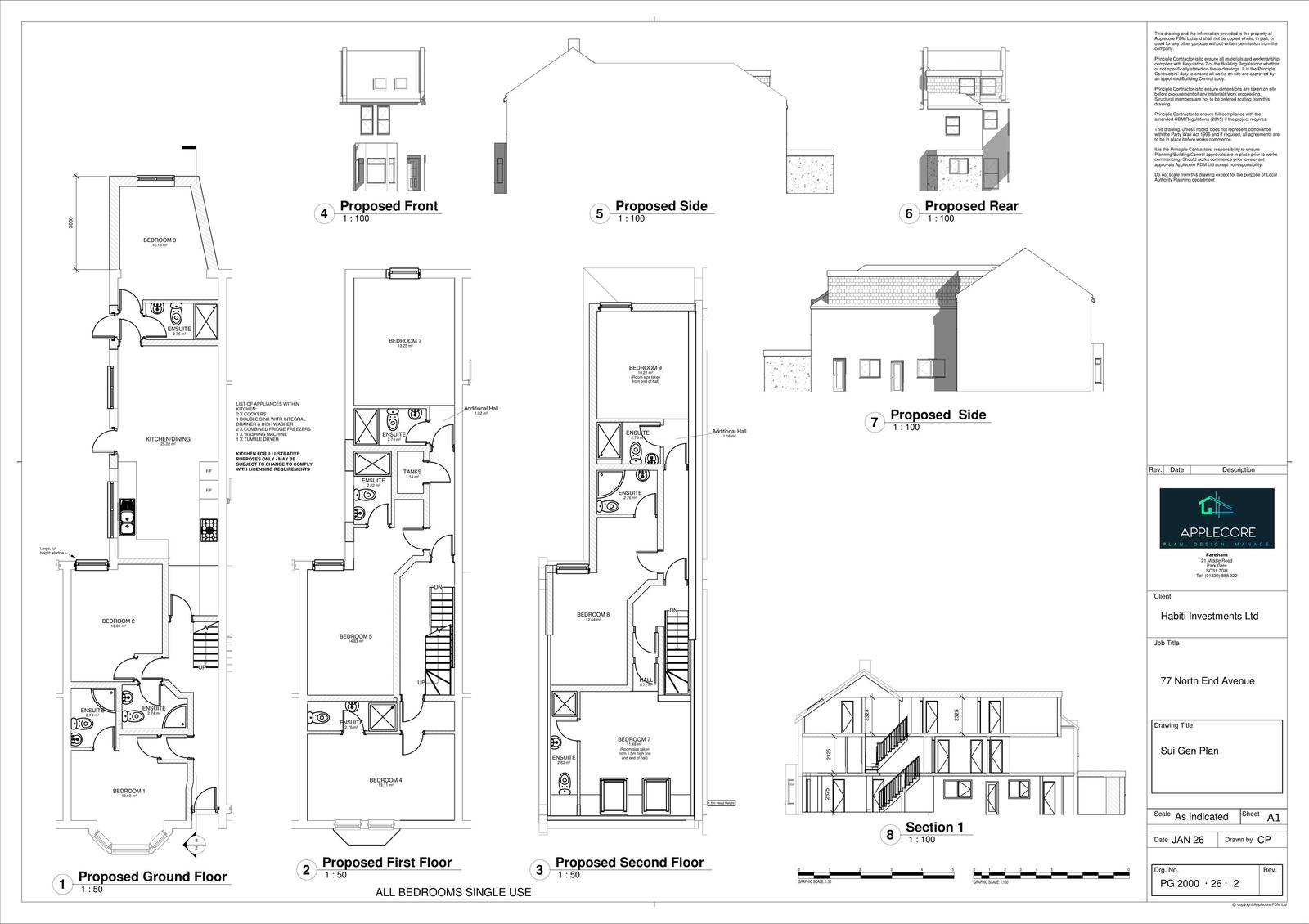
Change of use from dwellinghouse (Class C3) to 9 person/9 bedroom house in multiple occupation (Sui Generis)

Documents

OS Extract
Archived · Original link
OS Extract
Archived · Original link
Application Form
Archived · Original link
APPLICATIONFORMREDACTED
Application Form
Not yet archived · Original link
Drawing
Archived · Original link
Consultees
Archived · Original link
Consultees
Archived · Original link
Consultees
Archived · Original link
Site Notice
Archived · Original link
Site Notice
Archived · Original link
Drawing
Archived · Original link
Consultee Comment
Archived · Original link

Have your say

Your comment matters. Councils must consider every representation that raises material planning considerations.

Write a comment