← Portsmouth City Council

Status

Awaiting decision House extension
Received
Last month
New homes
0

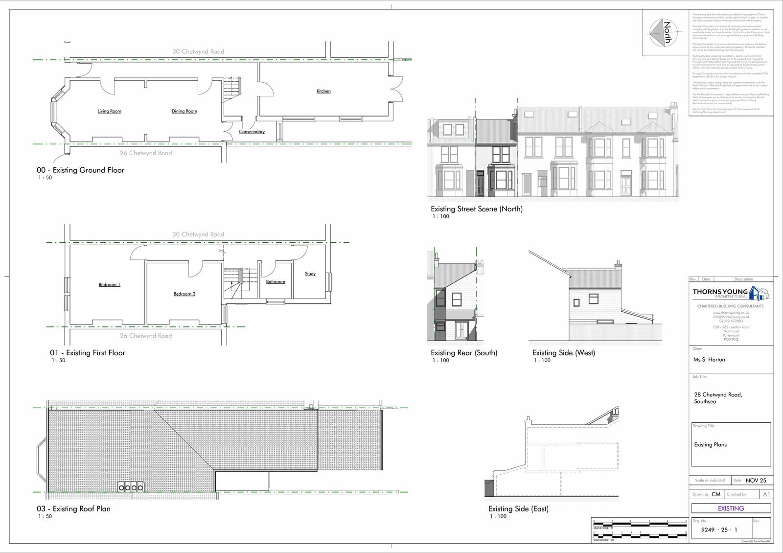
Full proposal

Construction of a single-storey flat-roofed rear extension and side pitched-roof extension, loft conversion with front dormer

Documents

Other
Archived · Original link
Other
Archived · Original link
Other
Archived · Original link
Other
Archived · Original link
Other
Archived · Original link

Have your say

Your comment matters. Councils must consider every representation that raises material planning considerations.

Write a comment