← Portsmouth City Council

Status

Awaiting decision House extension
Received
Last month
New homes
0

Full proposal

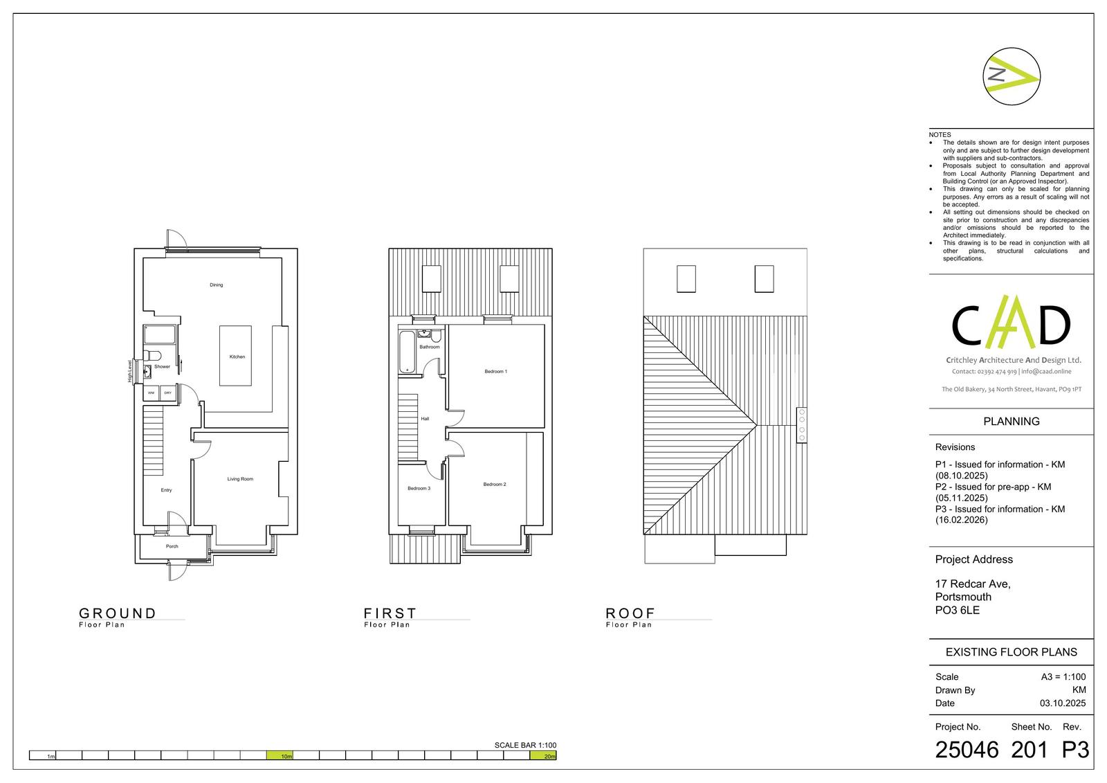
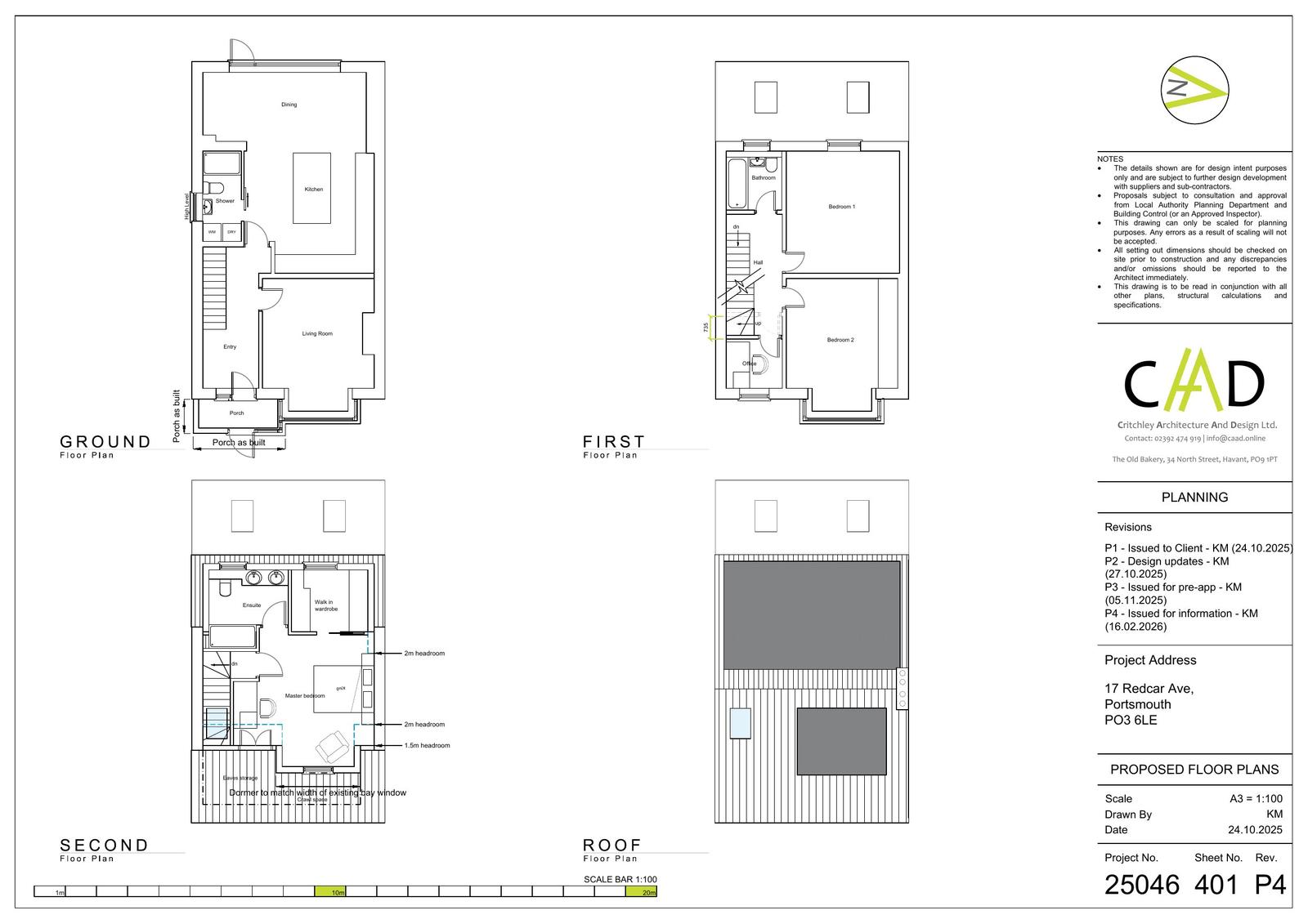
Alterations to roof to include hip to gable buildup with construction of dormer windows to front and rear roofslopes and retention of front porch

Have your say

Your comment matters. Councils must consider every representation that raises material planning considerations.

Write a comment