← Portsmouth City Council

Status

Awaiting decision House extension
Received
Last month
New homes
0

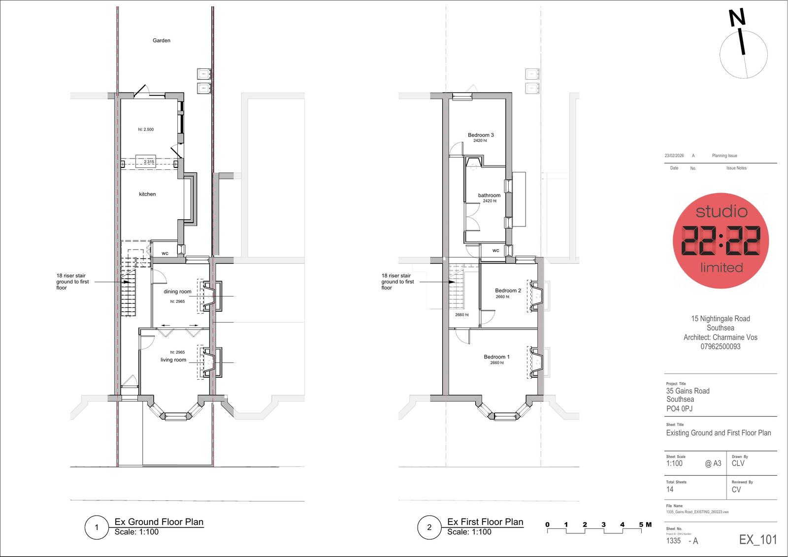
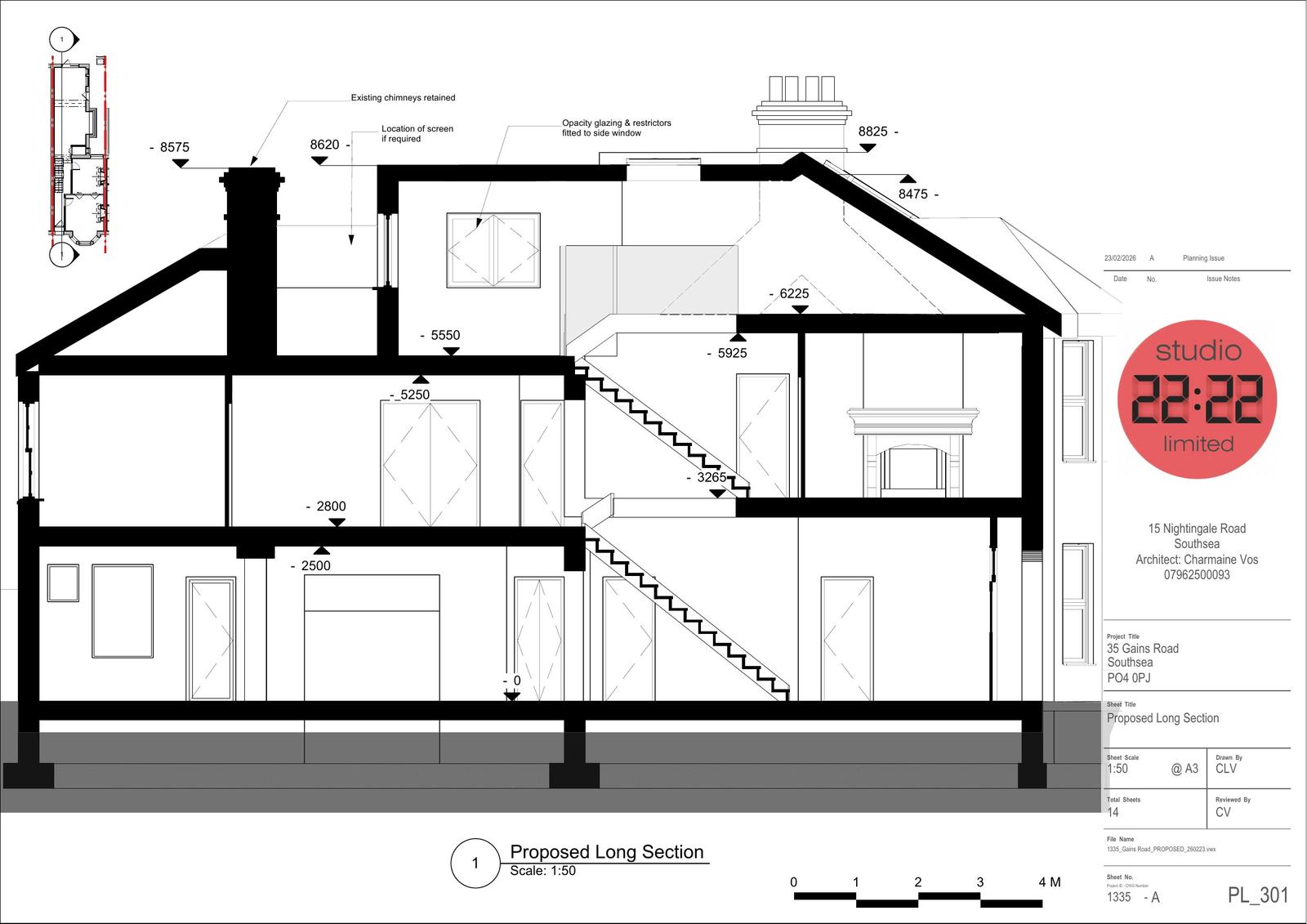
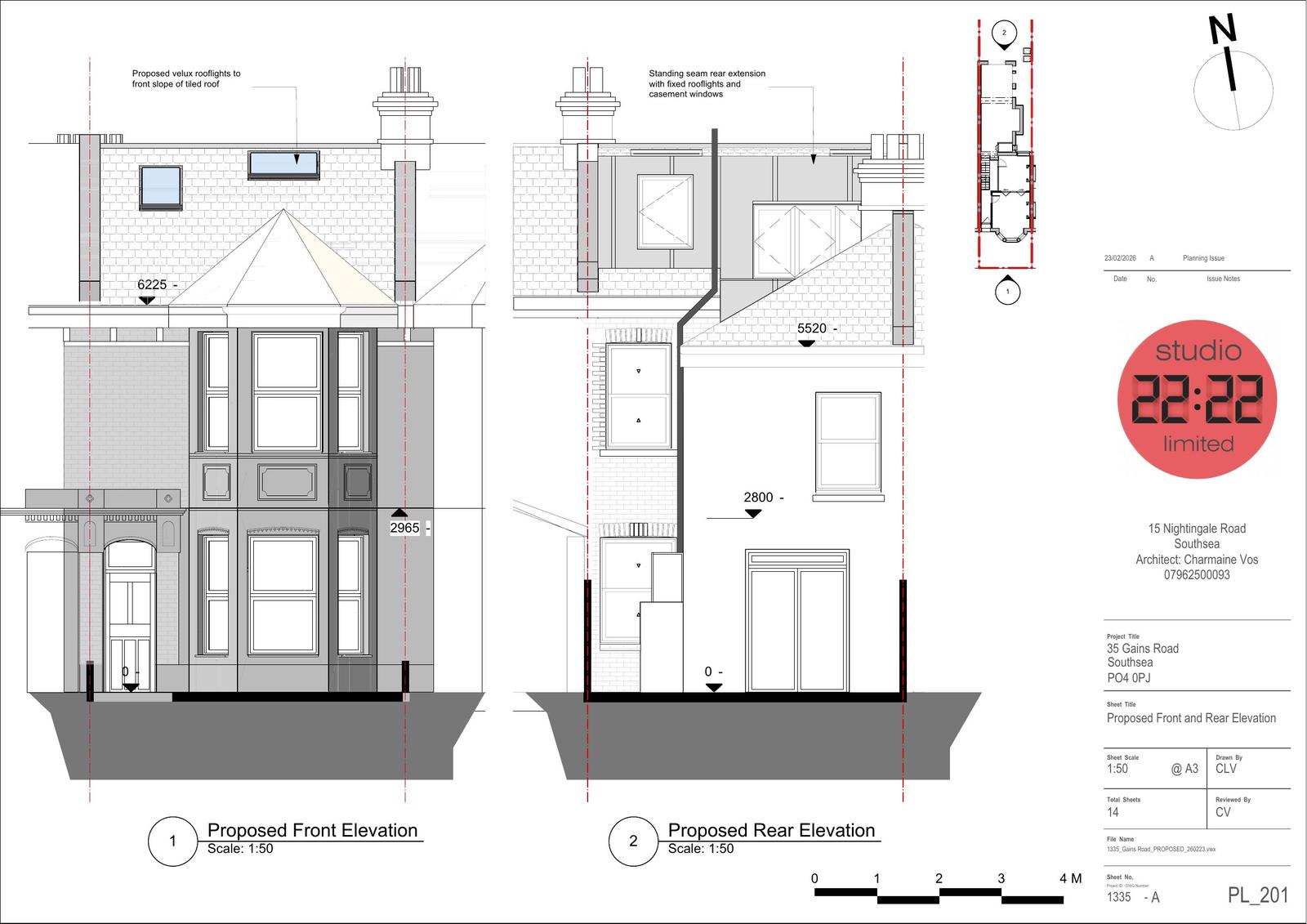
Full proposal

Construction of L shaped dormer windows to rear roofslopes

Have your say

Your comment matters. Councils must consider every representation that raises material planning considerations.

Write a comment