← Portsmouth City Council

Status

Awaiting decision House extension
Received
Last month
New homes
0

Full proposal

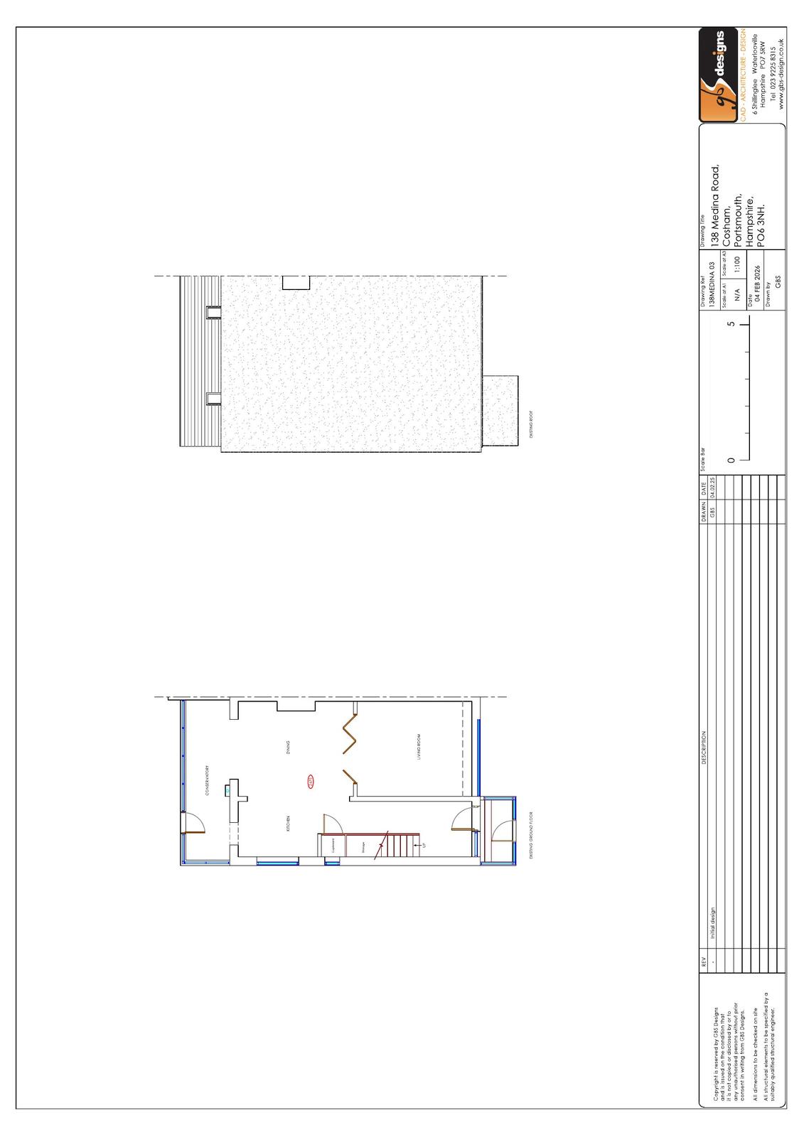
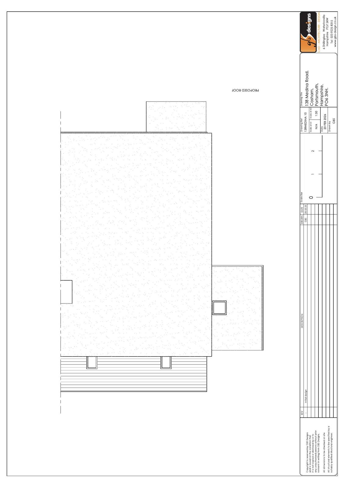
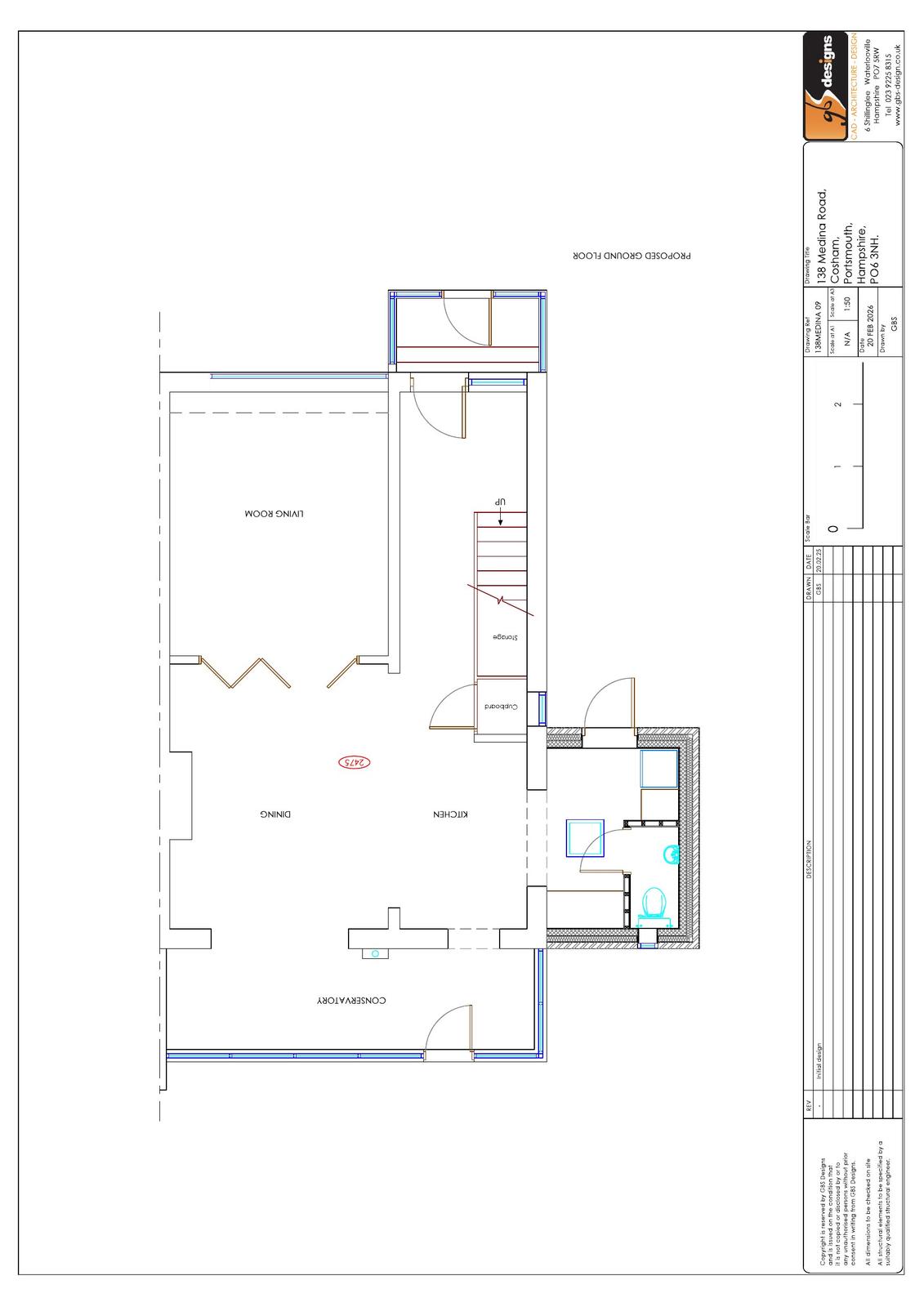
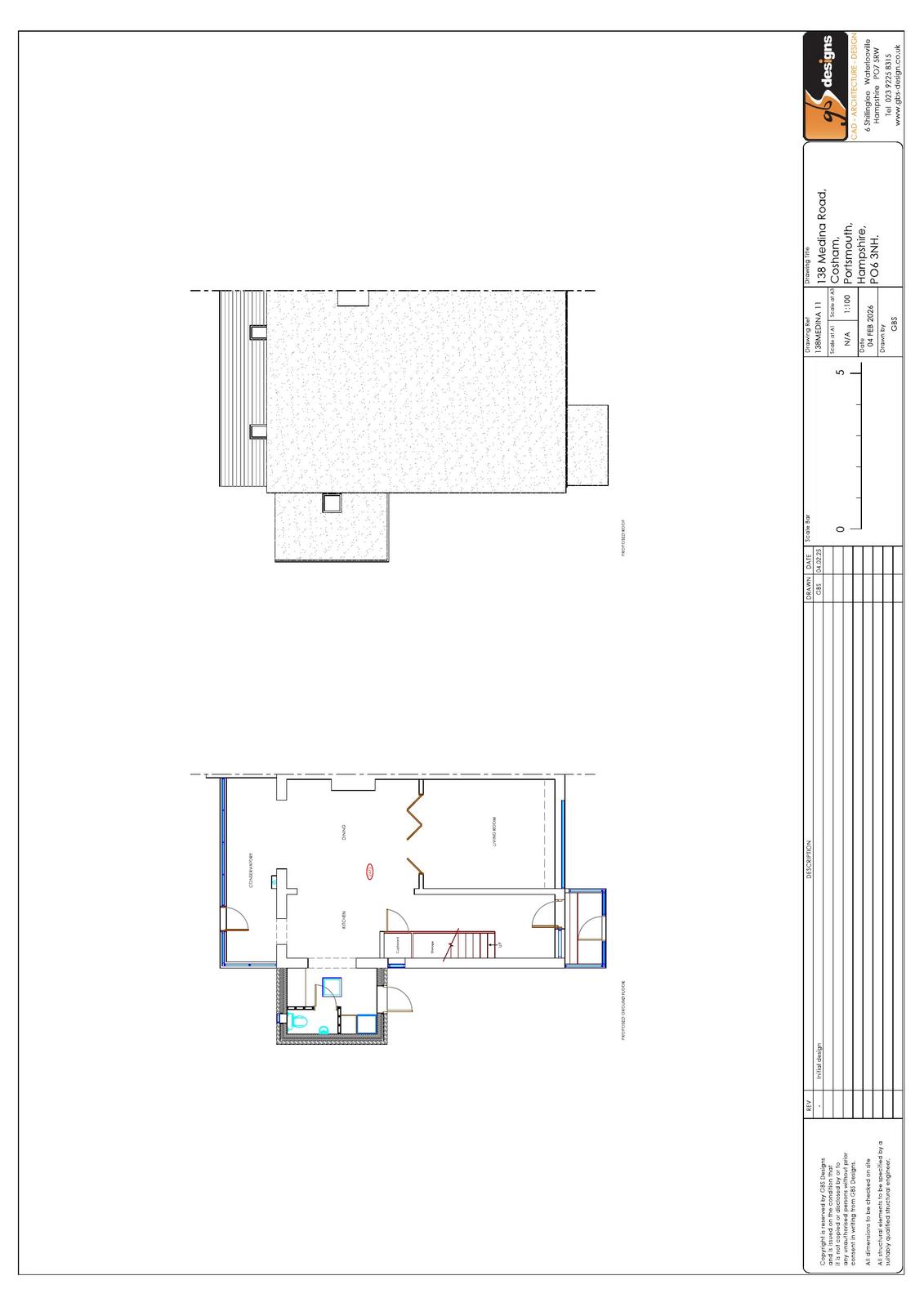
Construction of single storey side extension with flat roof

Have your say

Your comment matters. Councils must consider every representation that raises material planning considerations.

Write a comment