← Powys County Council

Status

Approve New housing
Received
03 Dec 2024
New homes
1

Full proposal

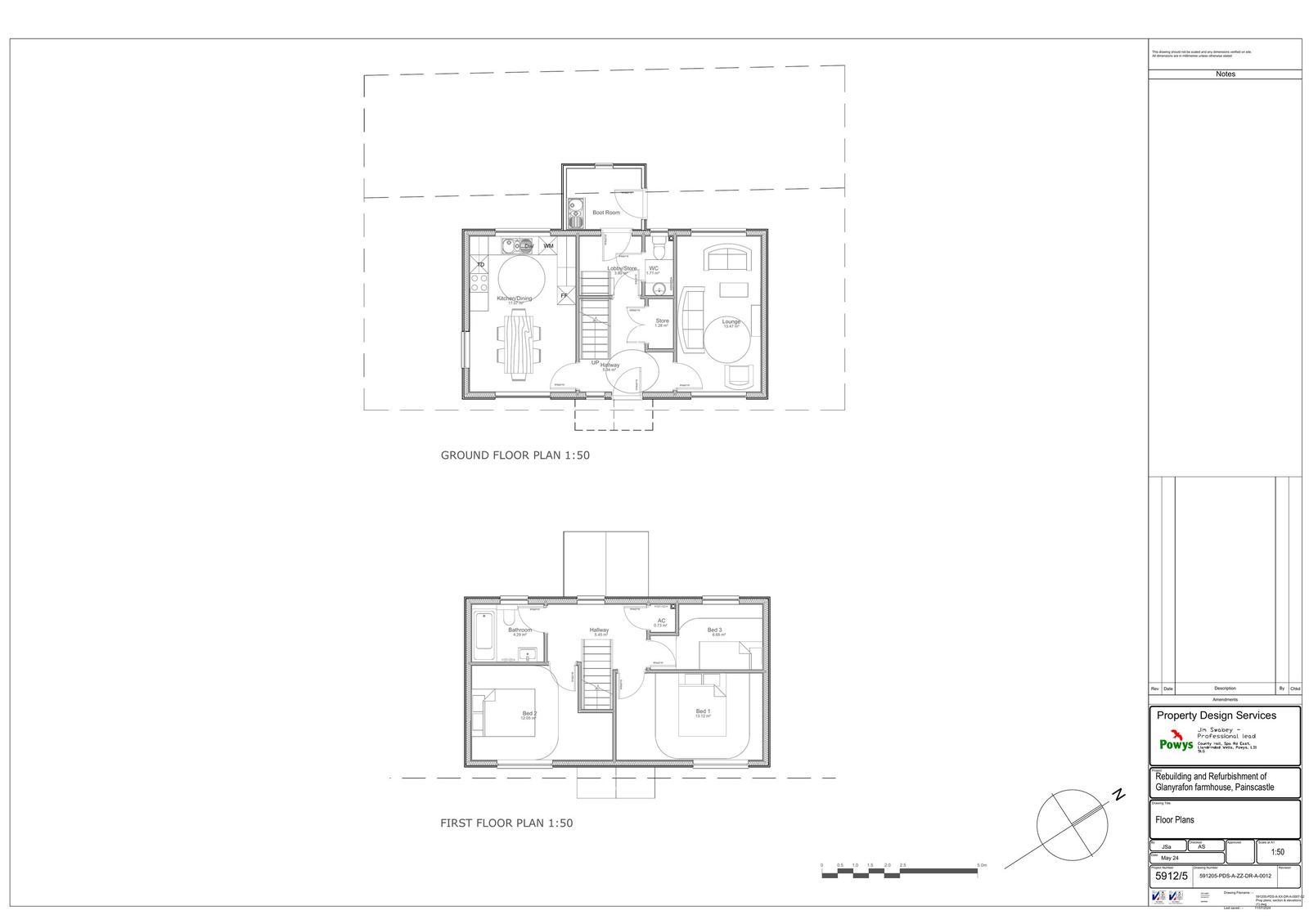
Demolition of fire damaged farmhouse and erection of a new dwelling and all associated works

Documents

ACCESS STATEMENT - GLANYRAFON FARM
Supporting Documents
Not yet archived · Original link
Application Form
Archived · Original link
Consultee Comment
Archived · Original link
Delegated Report
Delegated Report
Not yet archived · Original link
Supporting Documents
Archived · Original link
Consultee Comment
Archived · Original link
Consultee Comment
Archived · Original link
Supporting Documents
Archived · Original link
EIA Screening form
Archived · Original link
Additional information
Archived · Original link
Consultee Comment
Archived · Original link
Consultee Comment
Archived · Original link
Plans
Archived · Original link
Plans
Archived · Original link
Decision
Archived · Original link
GREEN INFASTRUCTURE STATEMENT - GLANYRAFON FARM
Supporting Documents
Not yet archived · Original link
HRA Screening Form
HRA Screening Form
Not yet archived · Original link
Consultee Comment
Archived · Original link
Plans
Archived · Original link
Consultee Comment
Archived · Original link
Supporting Documents
Archived · Original link
Plans
Archived · Original link
PROW
Consultee Comment
Not yet archived · Original link
Plans
Archived · Original link
Plans
Archived · Original link
Plans
Archived · Original link
Plans
Archived · Original link

Have your say

Your comment matters. Councils must consider every representation that raises material planning considerations.

Write a comment