← Powys County Council

Status

Approve Change of use
Received
21 Jan 2025
New homes
1

Full proposal

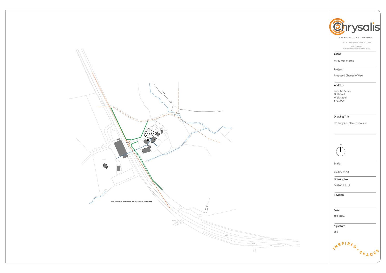
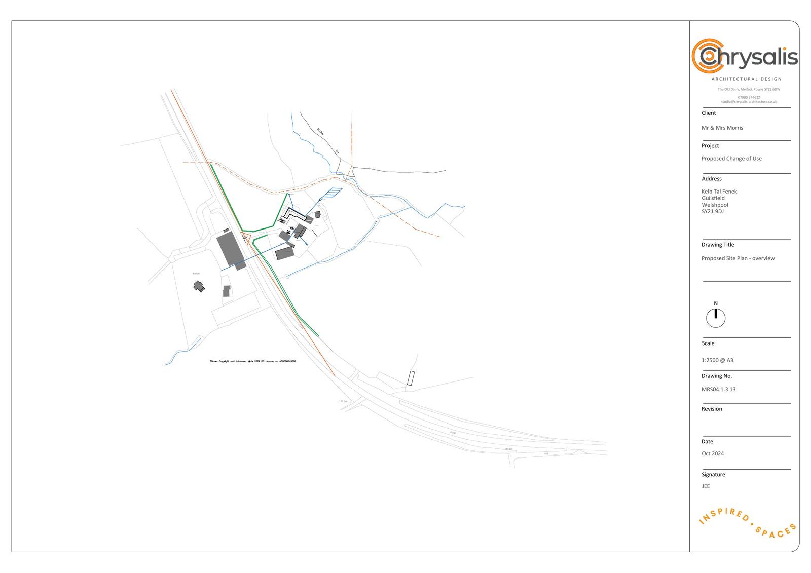
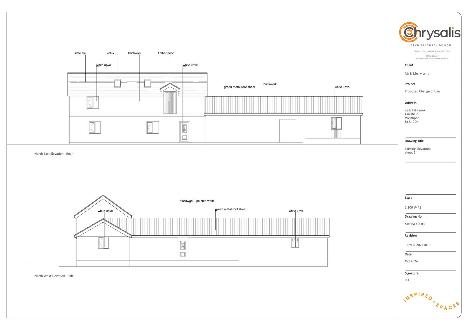
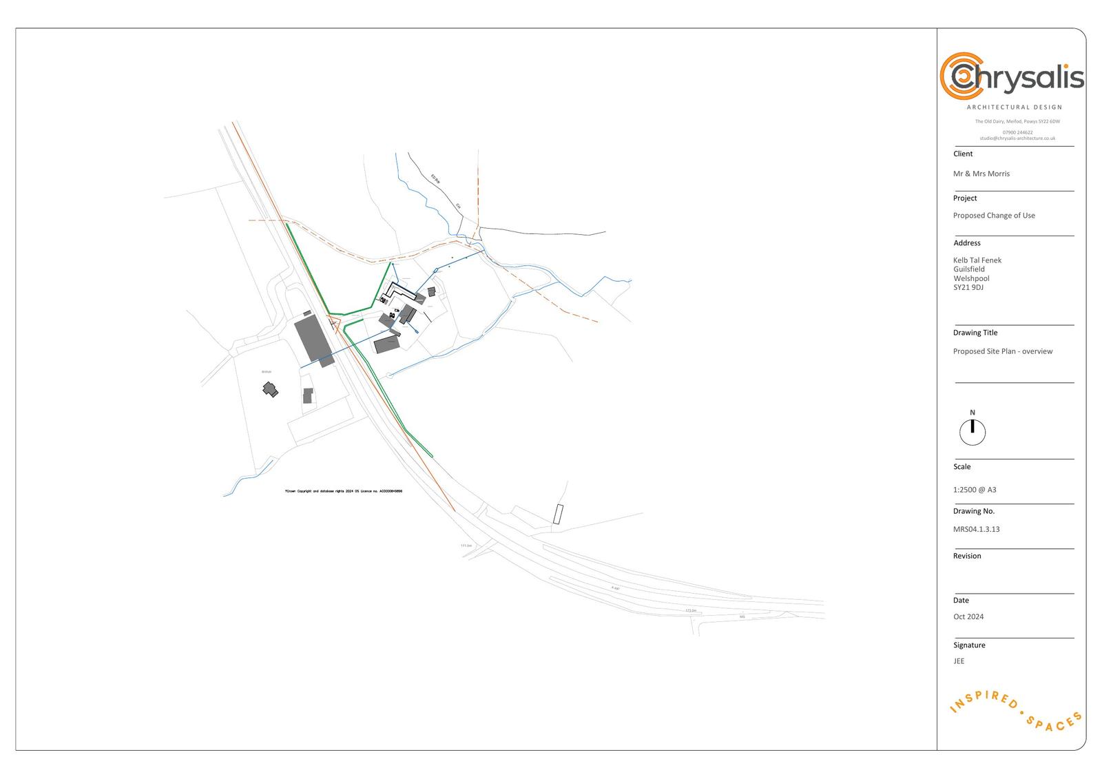
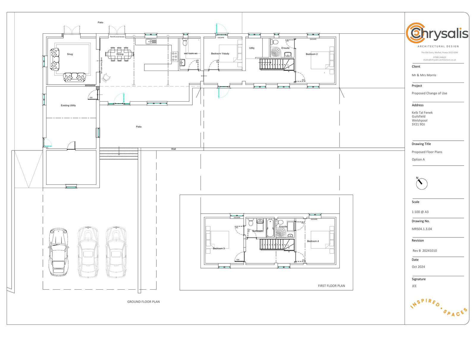
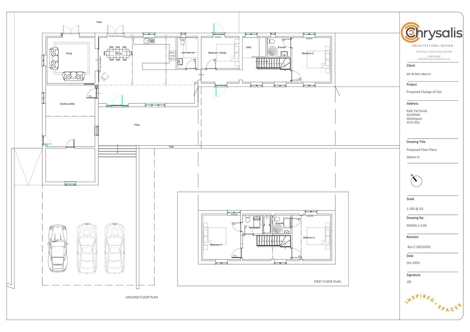
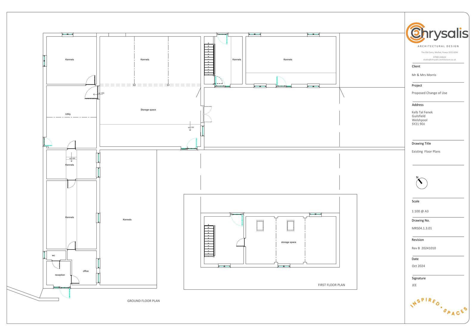
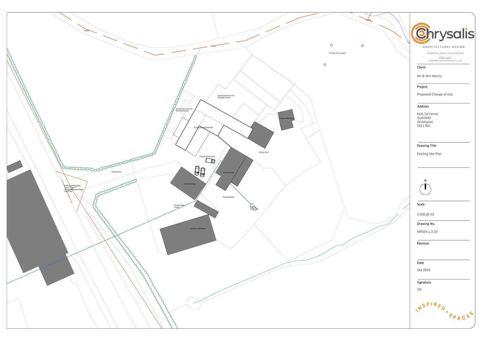
Proposed change of use of existing boarding kennels to residential dwelling, change to access, installation of treatment plant and all associated works

Documents

Additional information
Archived · Original link
Additional information
Archived · Original link
Application Form
Archived · Original link
Consultee Comment
Archived · Original link
Delegated Report
Delegated Report
Not yet archived · Original link
Consultee Comment
Archived · Original link
EIA Screening form
EIA Screening form
Not yet archived · Original link
Consultee Comment
Archived · Original link
Consultee Comment
Archived · Original link
Decision
Archived · Original link
Supporting Documents
Archived · Original link
Consultation response
Archived · Original link
Consultee Comment
Archived · Original link
NRW
Consultee Comment
Archived · Original link
NRW
Consultee Comment
Archived · Original link
Supporting Documents
Archived · Original link
Plans
Archived · Original link

Have your say

Your comment matters. Councils must consider every representation that raises material planning considerations.

Write a comment