← Powys County Council

Status

Pending Consideration Change of use
Received
30 Apr 2025
New homes
1

Full proposal

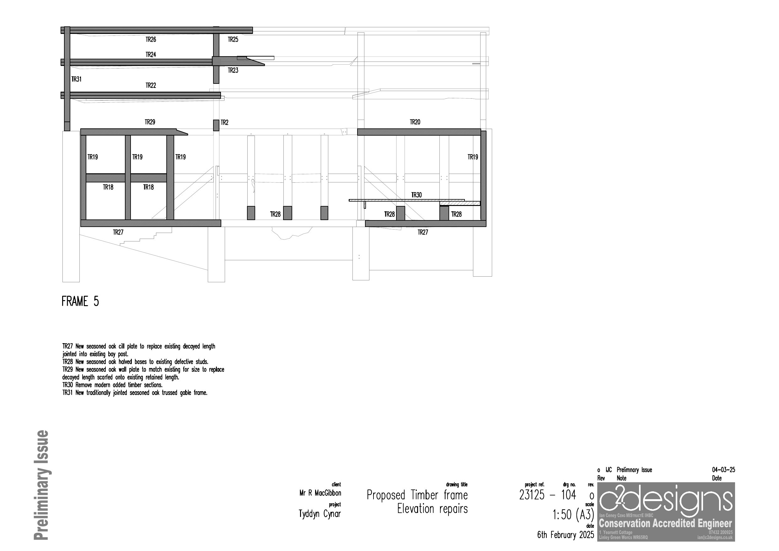
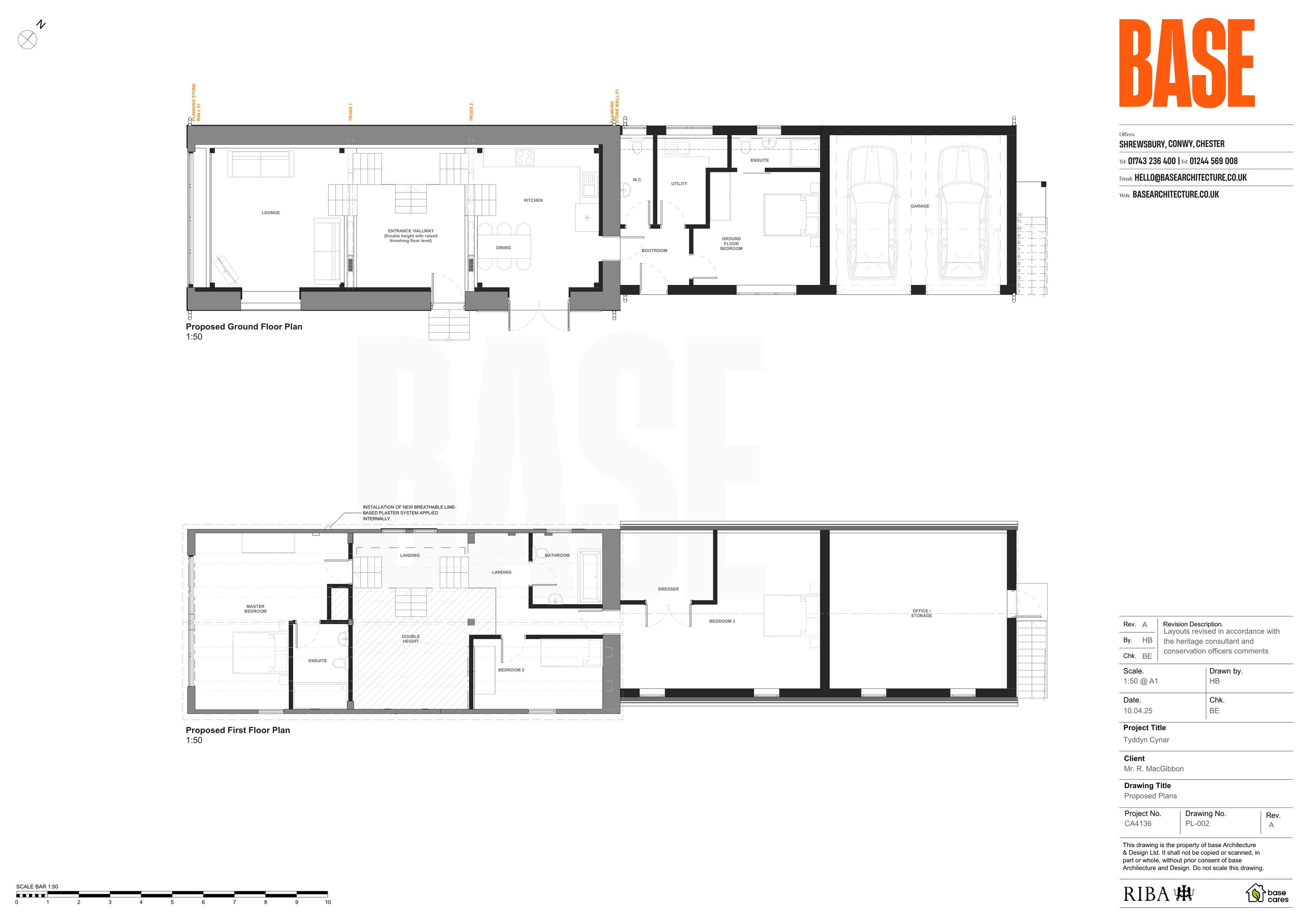
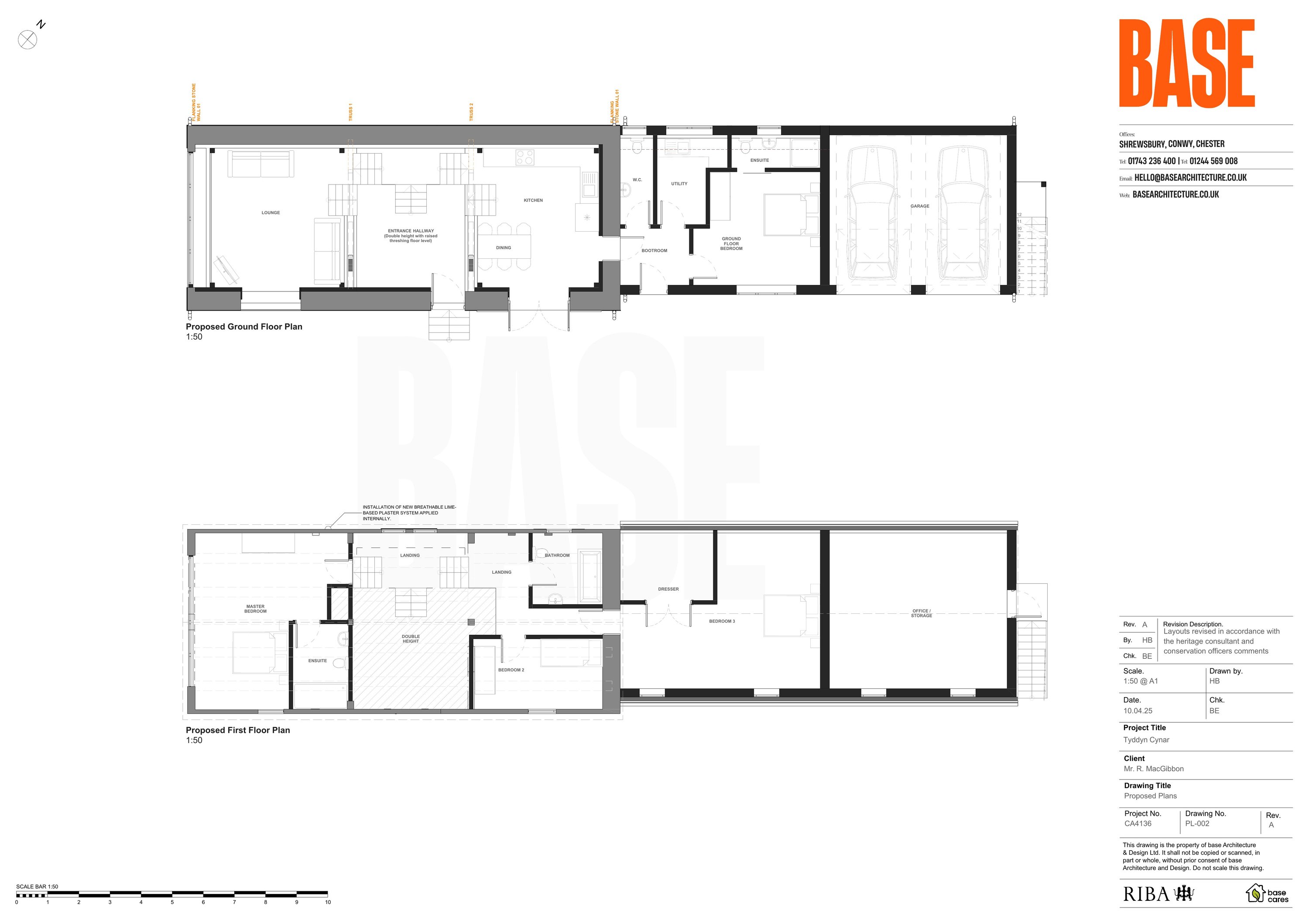
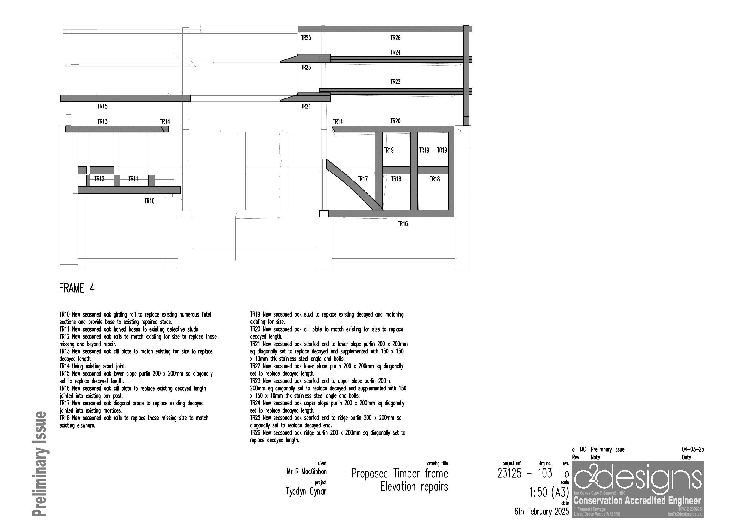
Conversion of barn to residential dwelling with integral garage and driveway together with installation of package treatment plant and drainage field

Documents

Supporting Documents
Archived · Original link
Additional information
Archived · Original link
Additional information
Archived · Original link
Additional information
Archived · Original link
Additional information
Archived · Original link
Supporting Documents
Archived · Original link
Application Form
Archived · Original link
Consultee Comment
Archived · Original link
Consultation response
Archived · Original link
EIA Screening form
Archived · Original link
Consultation response
Archived · Original link
Consultee Comment
Archived · Original link
Consultee Comment
Archived · Original link
Consultation response
Archived · Original link
Supporting Documents
Archived · Original link
NRW
Consultee Comment
Archived · Original link
PCC ECOLOGIST
Consultee Comment
Not yet archived · Original link
Consultee Comment
Archived · Original link
Supporting Documents
Archived · Original link
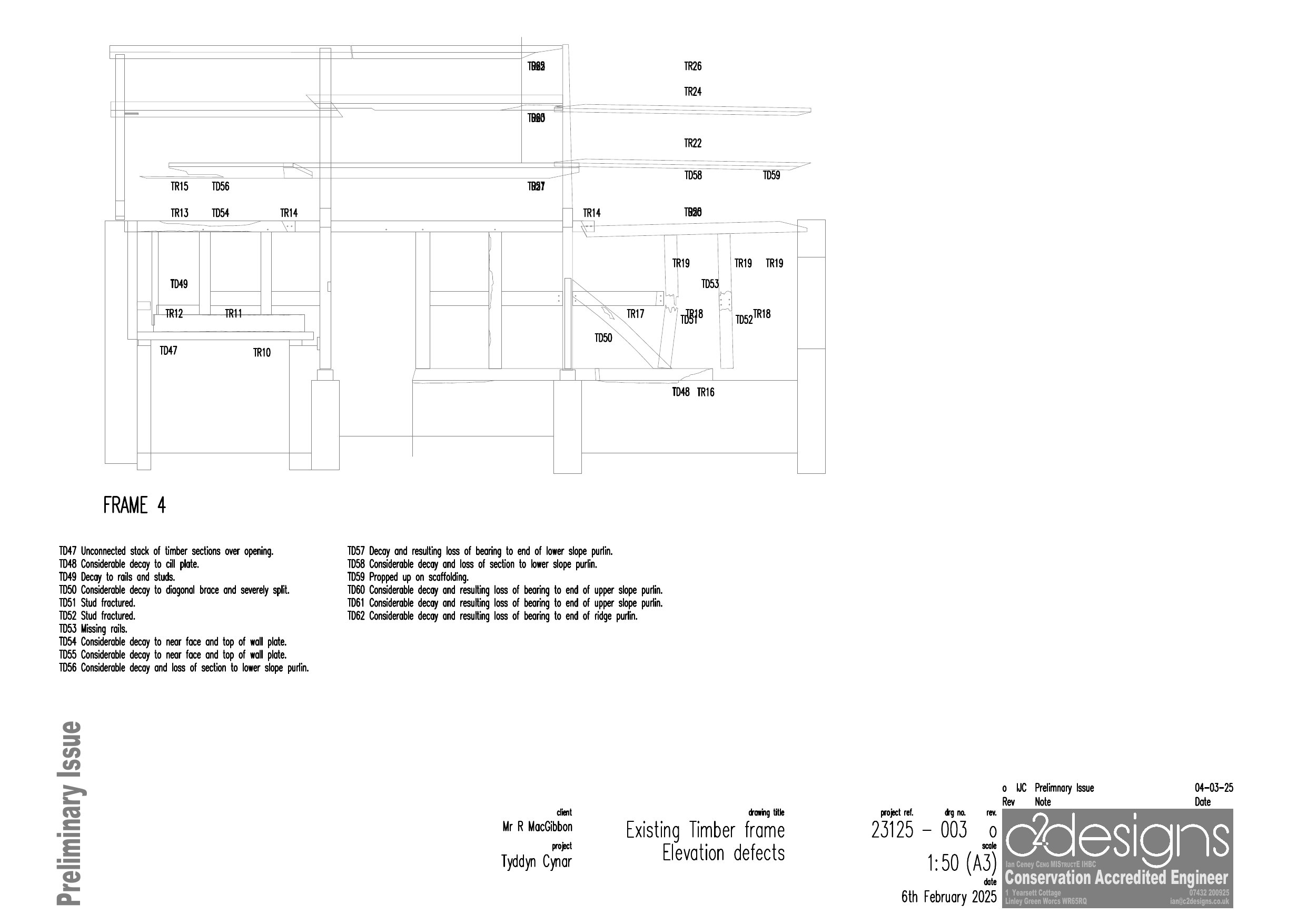
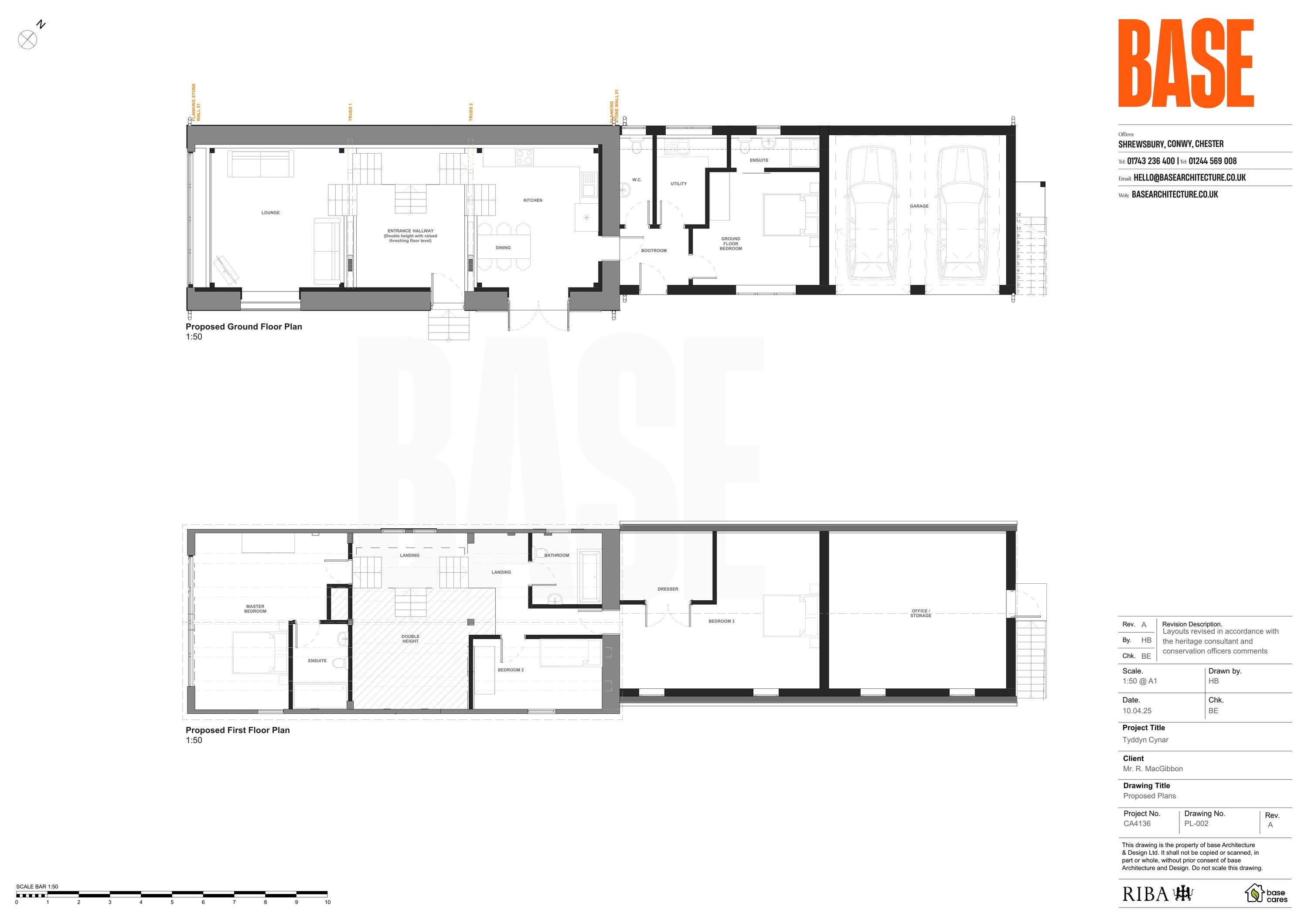
Revised Drawing
Archived · Original link
Revised Drawing
Archived · Original link
Revised Drawing
Archived · Original link
Revised Drawing
Archived · Original link
Revised Drawing
Archived · Original link
Revised Drawing
Archived · Original link
Revised Drawing
Archived · Original link
Revised Drawing
Archived · Original link
Revised Drawing
Archived · Original link
Additional information
Archived · Original link

Have your say

Your comment matters. Councils must consider every representation that raises material planning considerations.

Write a comment