← Powys County Council

Status

Pending Decision Listed building
Received
30 Apr 2025
New homes
1

Full proposal

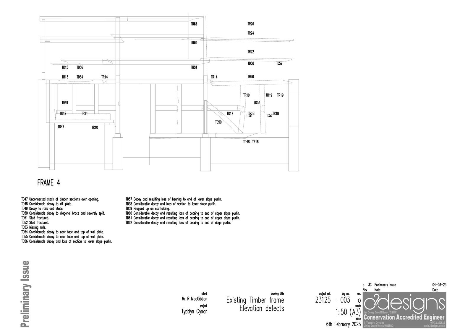
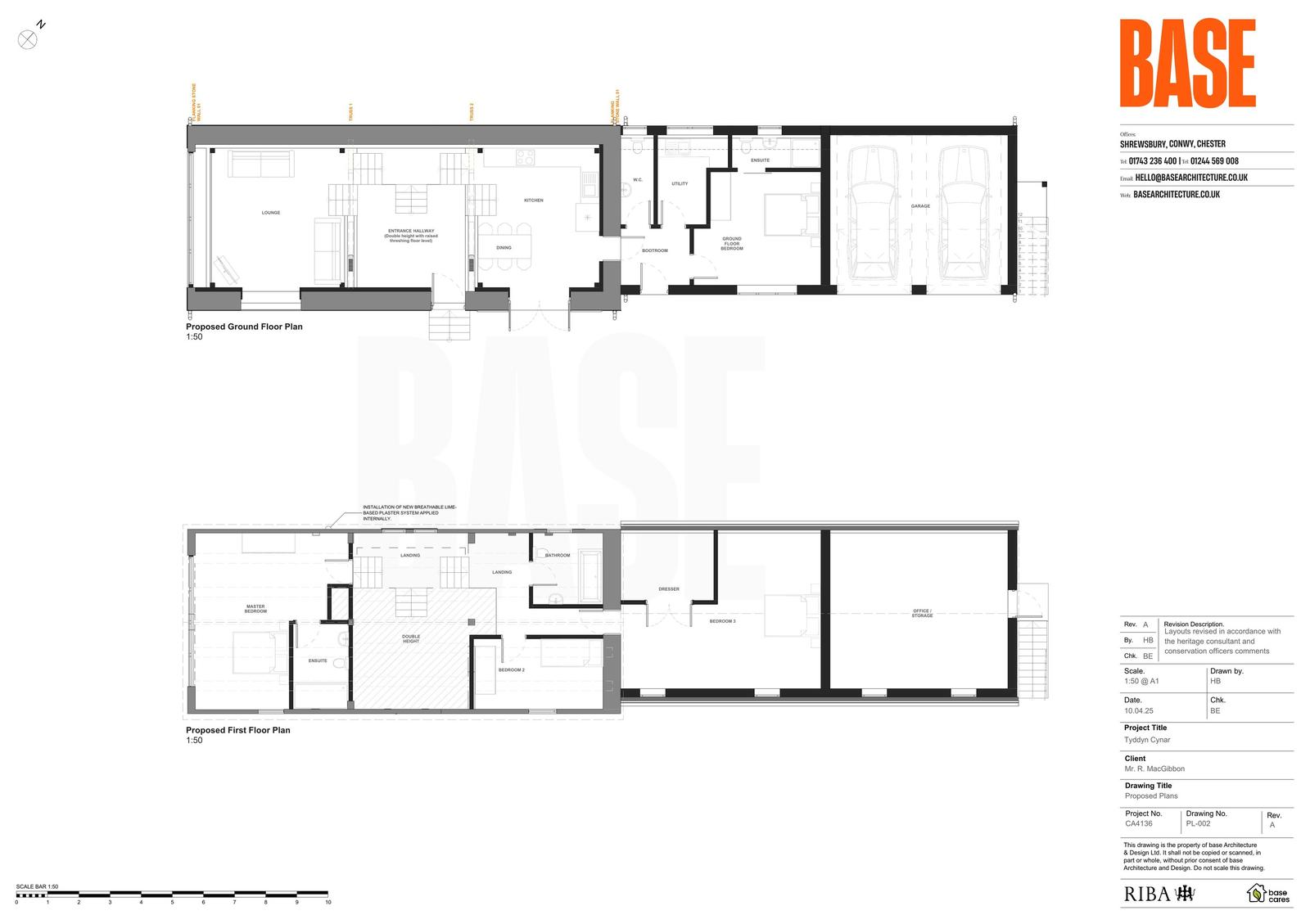
Conversion of barn to residential dwelling and associated works

Documents

Supporting Documents
Archived · Original link
Supporting Documents
Archived · Original link
Application Form
Archived · Original link
Consultation response
Archived · Original link
Consultee Comment
Archived · Original link
Consultee Comment
Archived · Original link
Consultee Comment
Archived · Original link
Supporting Documents
Archived · Original link
Supporting Documents
Archived · Original link
Revised Drawing
Archived · Original link
Revised Drawing
Archived · Original link
Revised Drawing
Archived · Original link
Revised Drawing
Archived · Original link
Revised Drawing
Archived · Original link
Revised Drawing
Archived · Original link
Revised Drawing
Archived · Original link
Revised Drawing
Archived · Original link
Revised Drawing
Archived · Original link
Consultee Comment
Archived · Original link
Consultee Comment
Archived · Original link

Have your say

Your comment matters. Councils must consider every representation that raises material planning considerations.

Write a comment