← Powys County Council

Status

Pending Consideration New housing
Received
12 May 2025
New homes
1

Full proposal

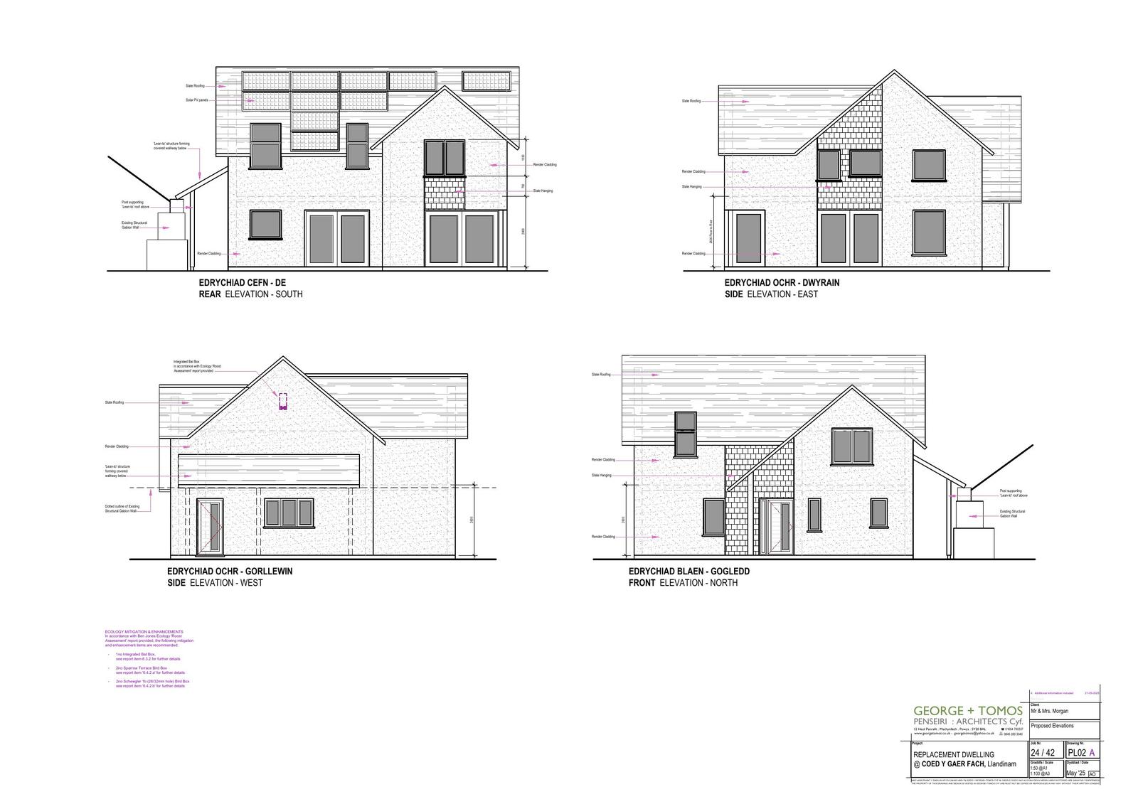
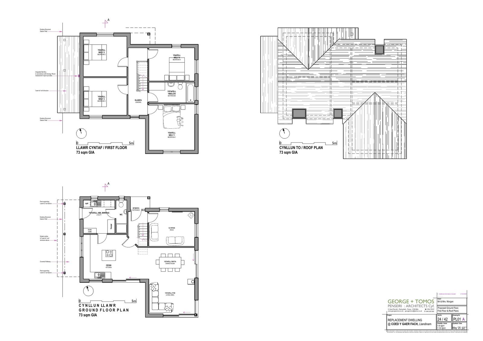
Erection of replacement dwelling and associated works

Documents

Application Form
Archived · Original link
Supporting Documents
Archived · Original link
Consultee Comment
Archived · Original link
Consultation response
Archived · Original link
Consultee Comment
Archived · Original link
Consultee Comment
Archived · Original link
Consultee Comment
Archived · Original link
NRW
Consultee Comment
Archived · Original link
Consultee Comment
Archived · Original link
Additional information
Archived · Original link

Have your say

Your comment matters. Councils must consider every representation that raises material planning considerations.

Write a comment