← Powys County Council

Status

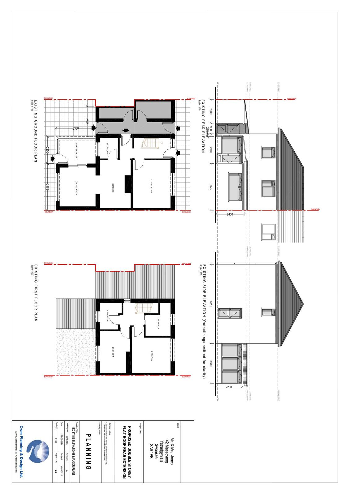
Approve House extension
Received
15 May 2025
New homes
0

Full proposal

Erection of extensions

Documents

Supporting Documents
Archived · Original link
Application Form
Archived · Original link
Consultee Comment
Archived · Original link
Decision
Decision
Not yet archived · Original link
Delegated Report
Delegated Report
Not yet archived · Original link
EIA Screening form
EIA Screening form
Not yet archived · Original link
Supporting Documents
Archived · Original link
Consultee Comment
Archived · Original link
Consultee Comment
Archived · Original link
Plans
Archived · Original link
Consultee Comment
Archived · Original link
Consultee Comment
Archived · Original link
Consultee Comment
Archived · Original link

Have your say

Your comment matters. Councils must consider every representation that raises material planning considerations.

Write a comment