← Powys County Council

Status

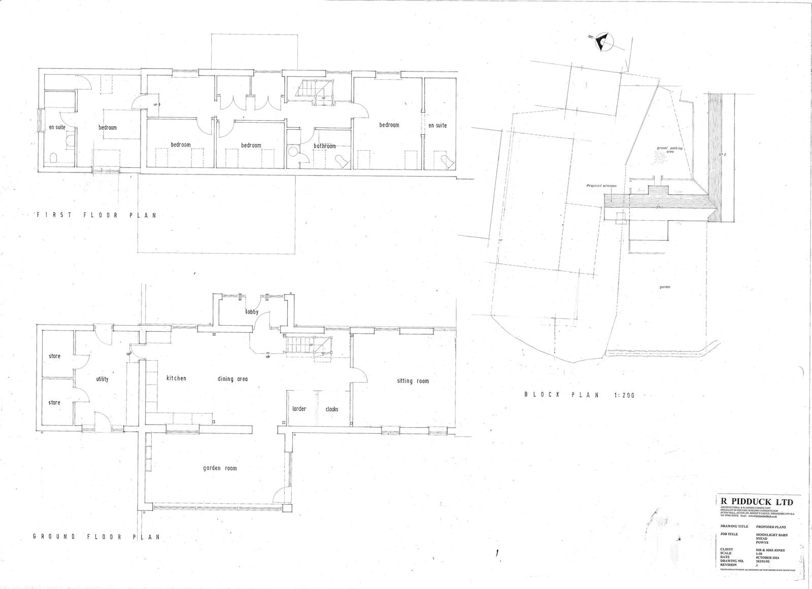
Approve House extension
Received
20 May 2025
New homes
0

Full proposal

Erection of two storey extension together with extension to domestic curtilage (including demolition of agricultural building and removal of hardstanding)

Documents

Application Form
Archived · Original link
Supporting Documents
Archived · Original link
Delegated Report
Delegated Report
Not yet archived · Original link
Supporting Documents
Archived · Original link
EIA Screening form
Archived · Original link
GREEN INFASTRUCTURE STATEMENT
Supporting Documents
Not yet archived · Original link
Decision
Archived · Original link
Consultee Comment
Archived · Original link
Consultation response
Archived · Original link
Consultee Comment
Archived · Original link
Consultation response
Archived · Original link
PCC ECOLOGIST
Consultee Comment
Not yet archived · Original link
Consultee Comment
Archived · Original link
Plans
Archived · Original link
Decision
Archived · Original link

Have your say

Your comment matters. Councils must consider every representation that raises material planning considerations.

Write a comment