25/0792/FUL
Powys County Council
Status
Approve
Agricultural
Received
30 May 2025
New homes
1
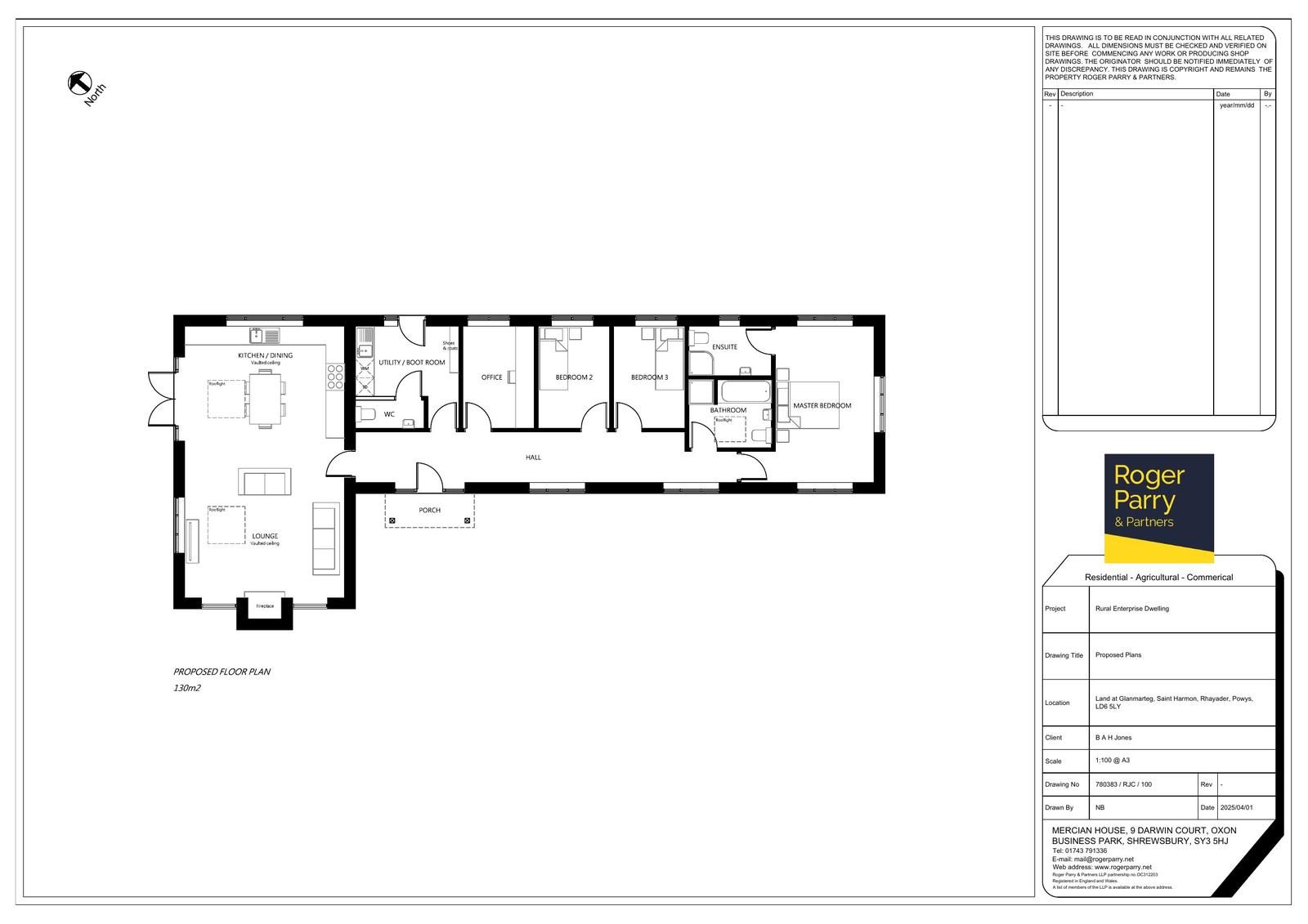
Full proposal
Erection of rural enterprise bungalow, detached garage, installation of sewage treatment plant, upgrade of field access and all associated works
Documents
Have your say
Your comment matters. Councils must consider every representation that raises material planning considerations.