← Powys County Council

Status

Approve House extension
Received
18 Dec 2025
New homes
0

Full proposal

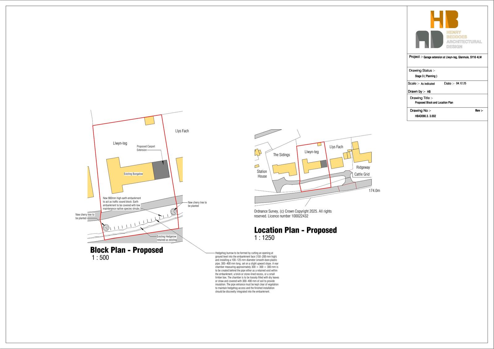
Demolition of the carport and the erection of replacement garage extension

Have your say

Your comment matters. Councils must consider every representation that raises material planning considerations.

Write a comment