← Powys County Council

Status

Pending Consideration New housing
Received
16 Dec 2025
New homes
3

Full proposal

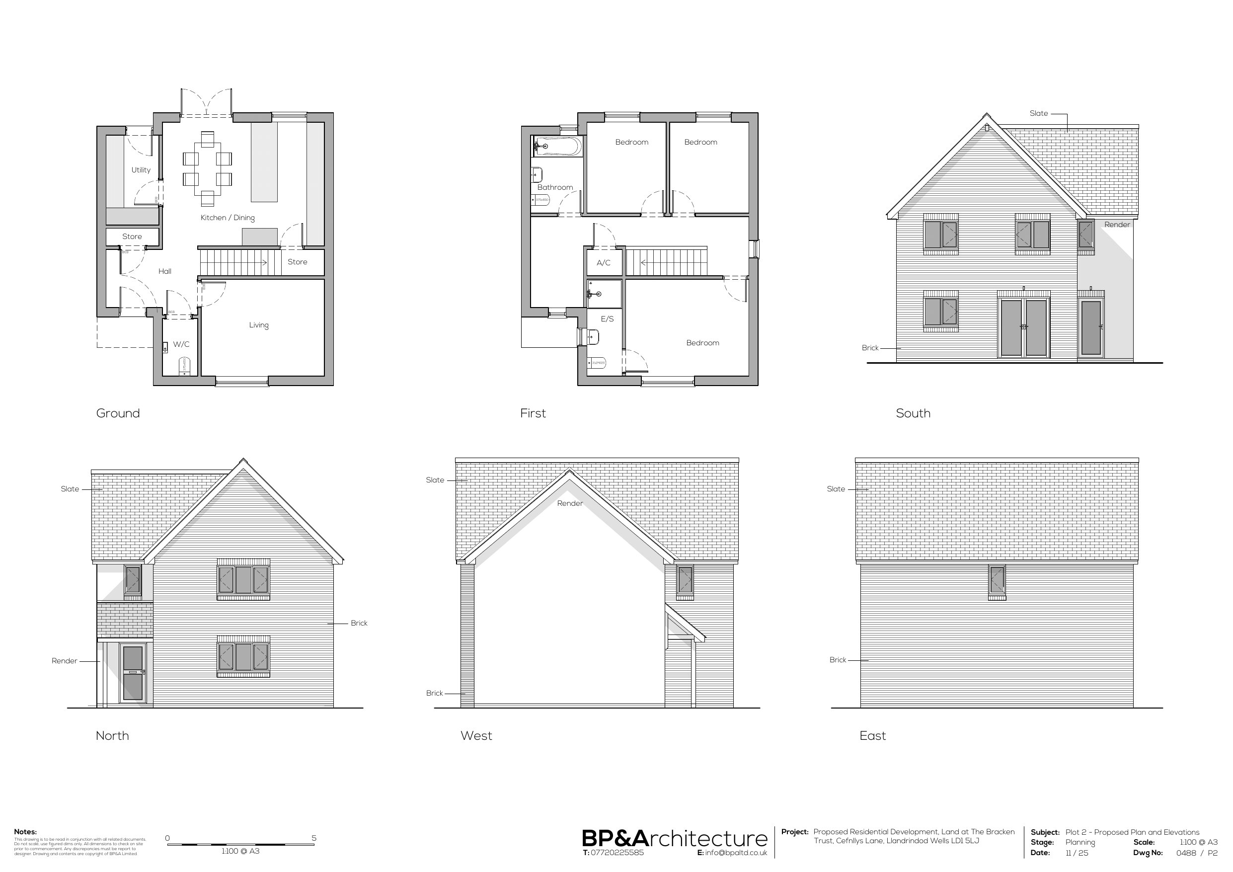
Erection of 3 dwellings and all associated works

Have your say

Your comment matters. Councils must consider every representation that raises material planning considerations.

Write a comment