← Powys County Council

Status

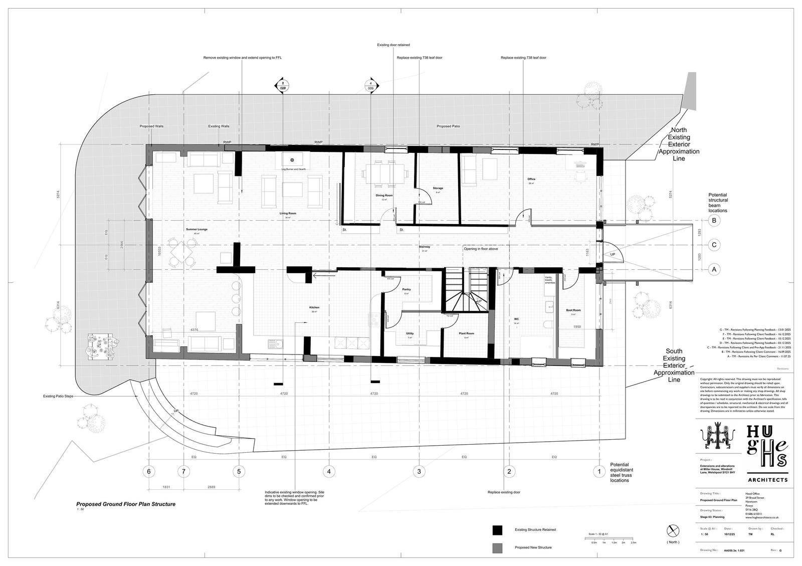
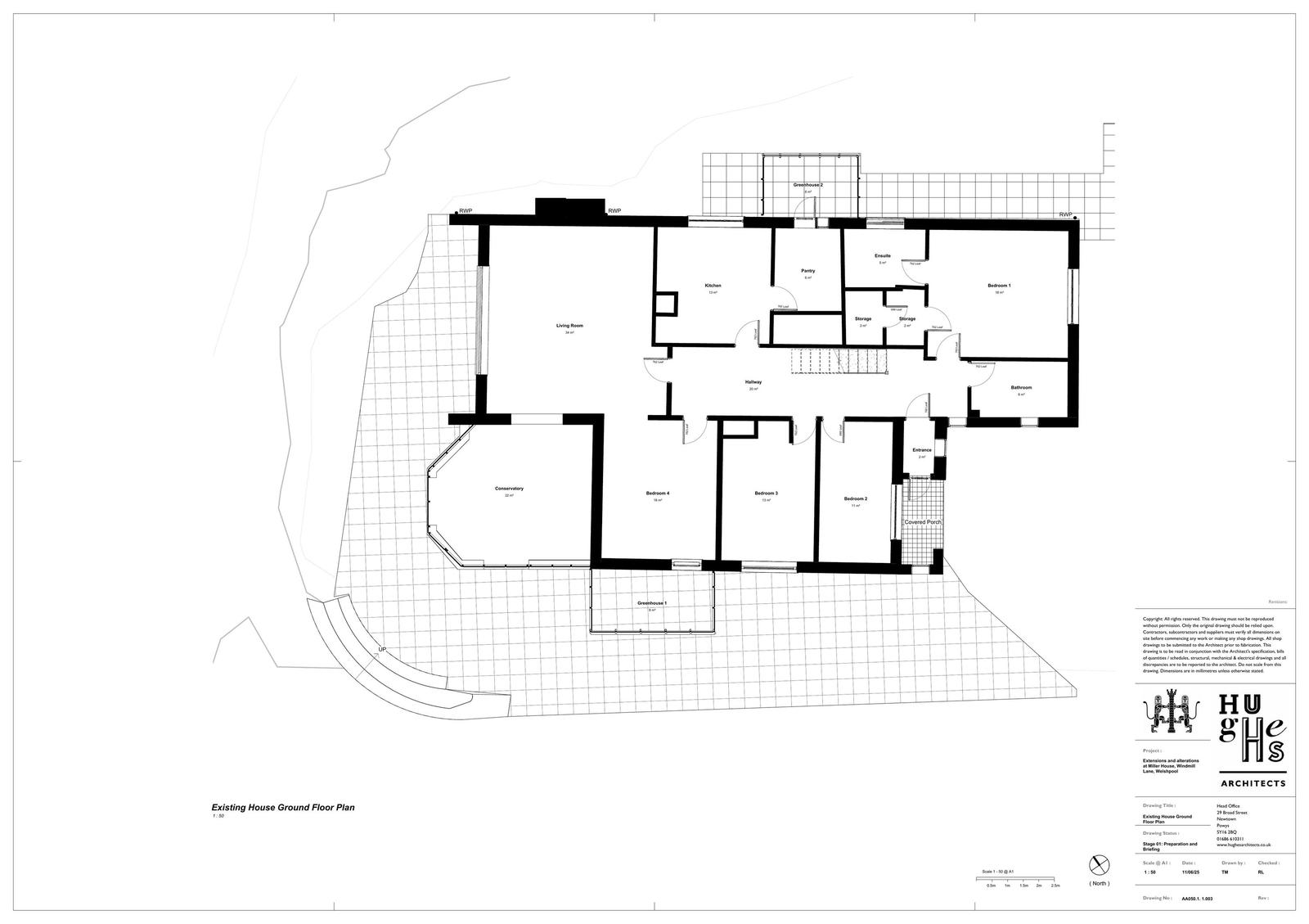
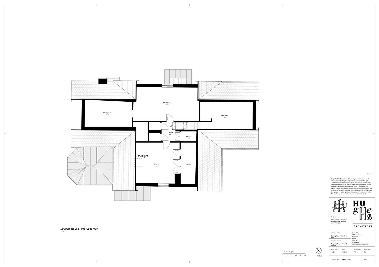
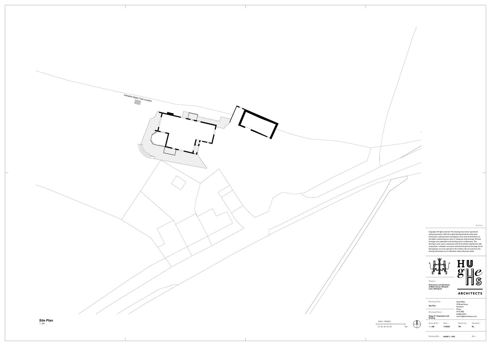
Approve House extension
Received
05 Jan 2026
New homes
0

Full proposal

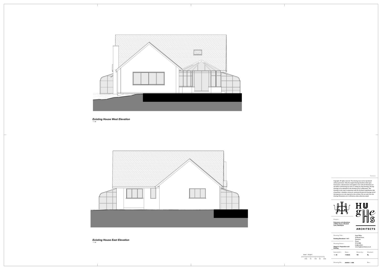
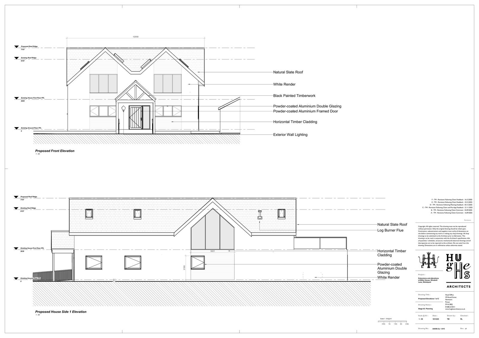
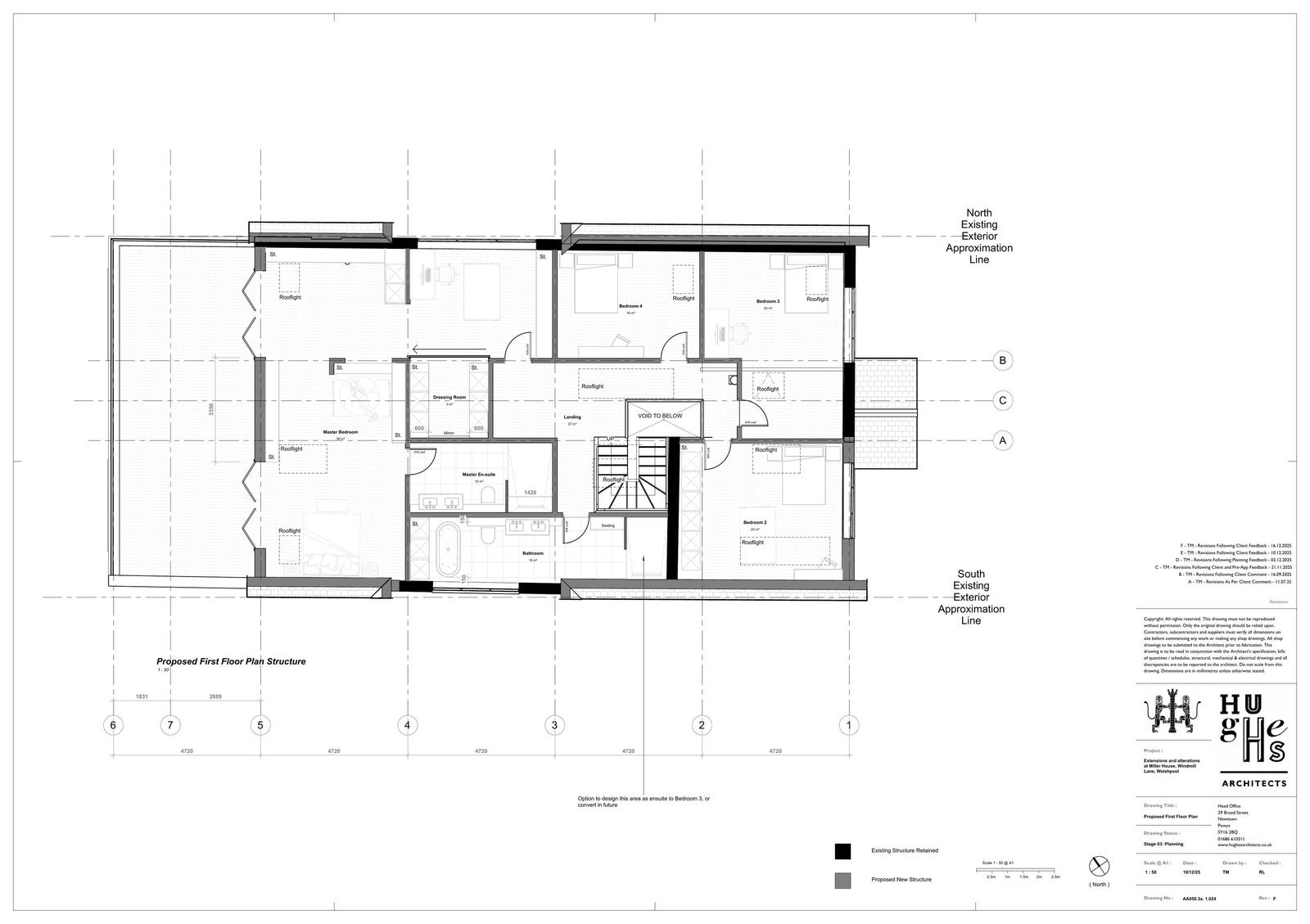
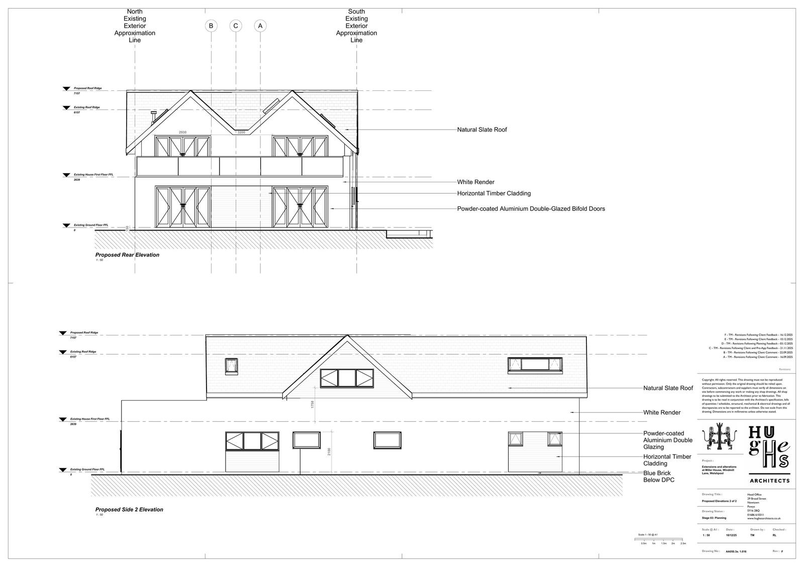
Erection of Extensions

Have your say

Your comment matters. Councils must consider every representation that raises material planning considerations.

Write a comment