26/0080/FUL
Powys County Council
Status
Pending Consideration
Change of use
Received
26 Jan 2026
New homes
1
Full proposal
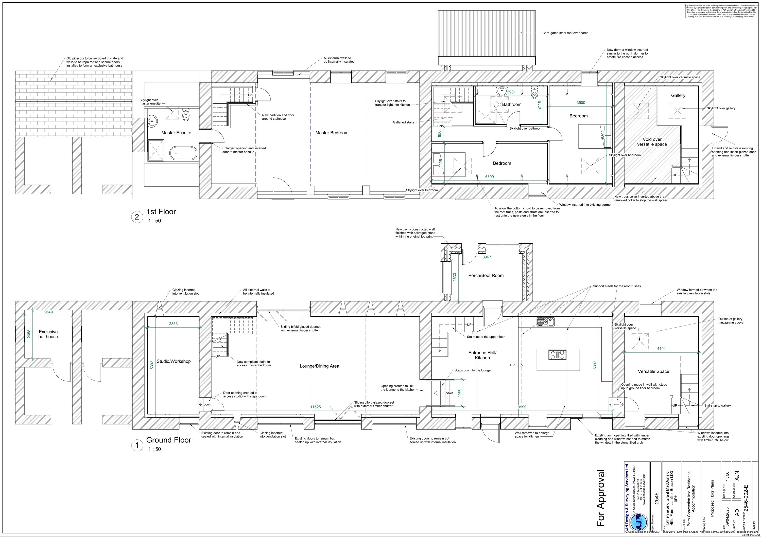
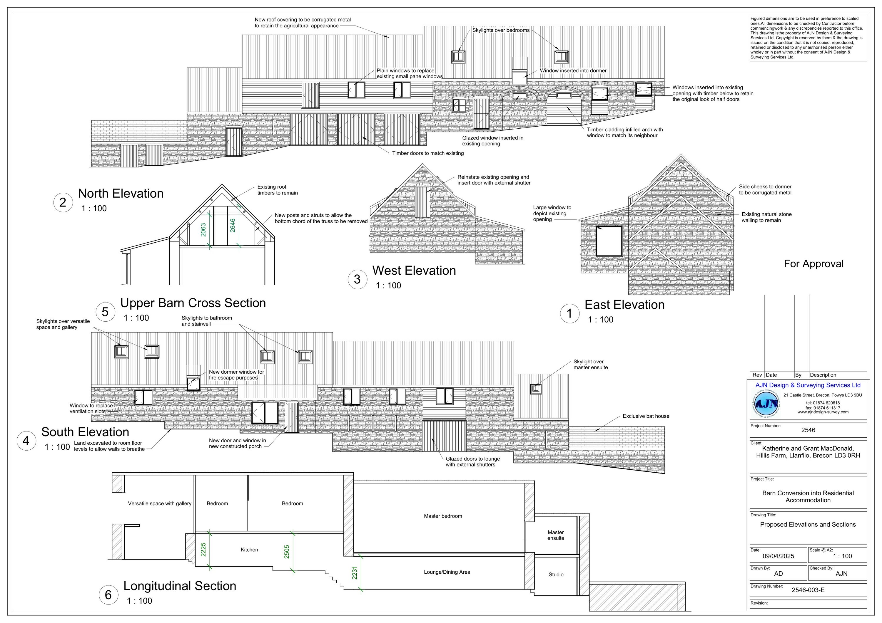
Conversion of barn to dwelling, installation of sewage treatment plant and all associated works
Documents
Have your say
Your comment matters. Councils must consider every representation that raises material planning considerations.