← Powys County Council

Status

Pending Consideration House extension
Received
Last month
New homes
0

Full proposal

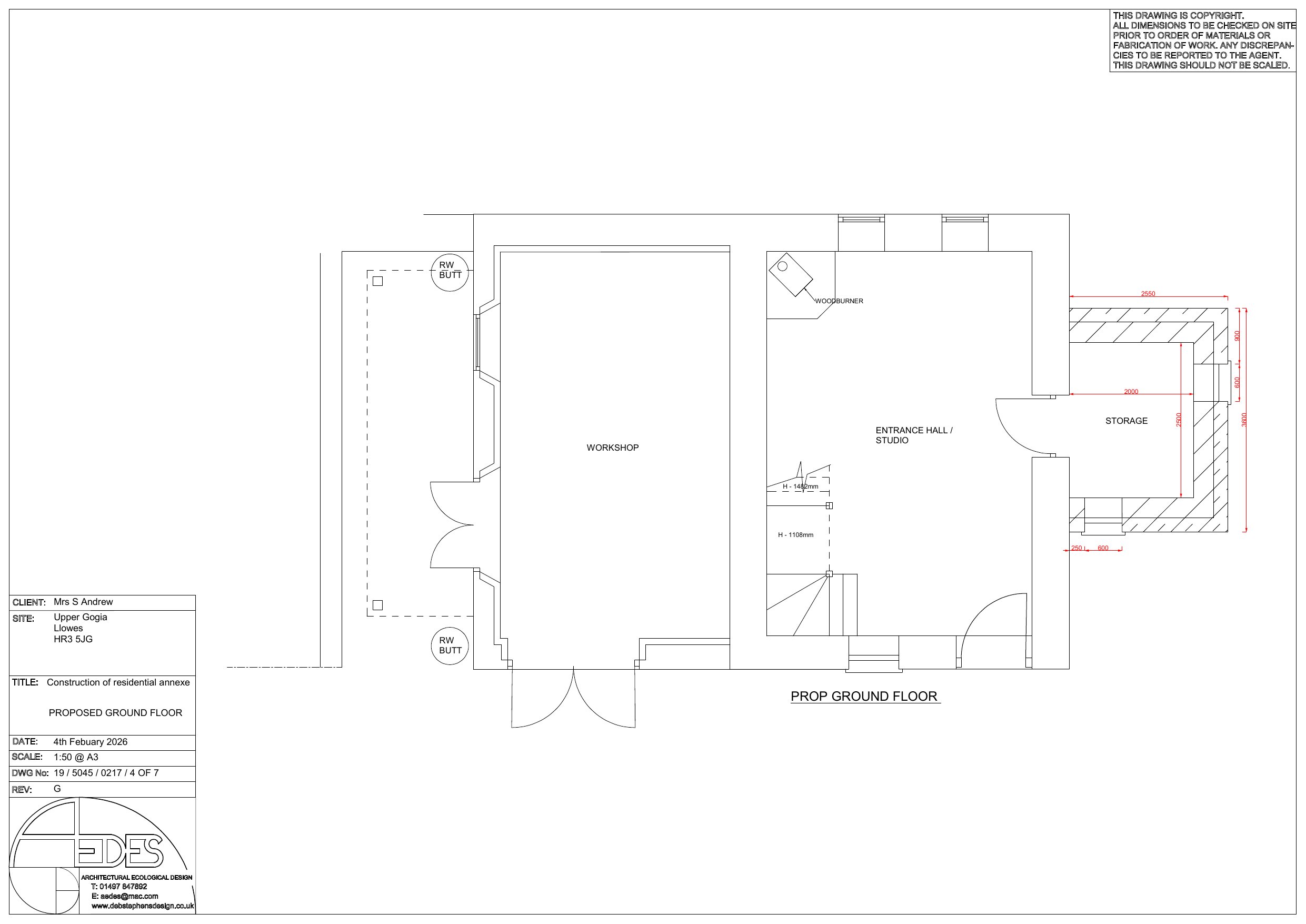
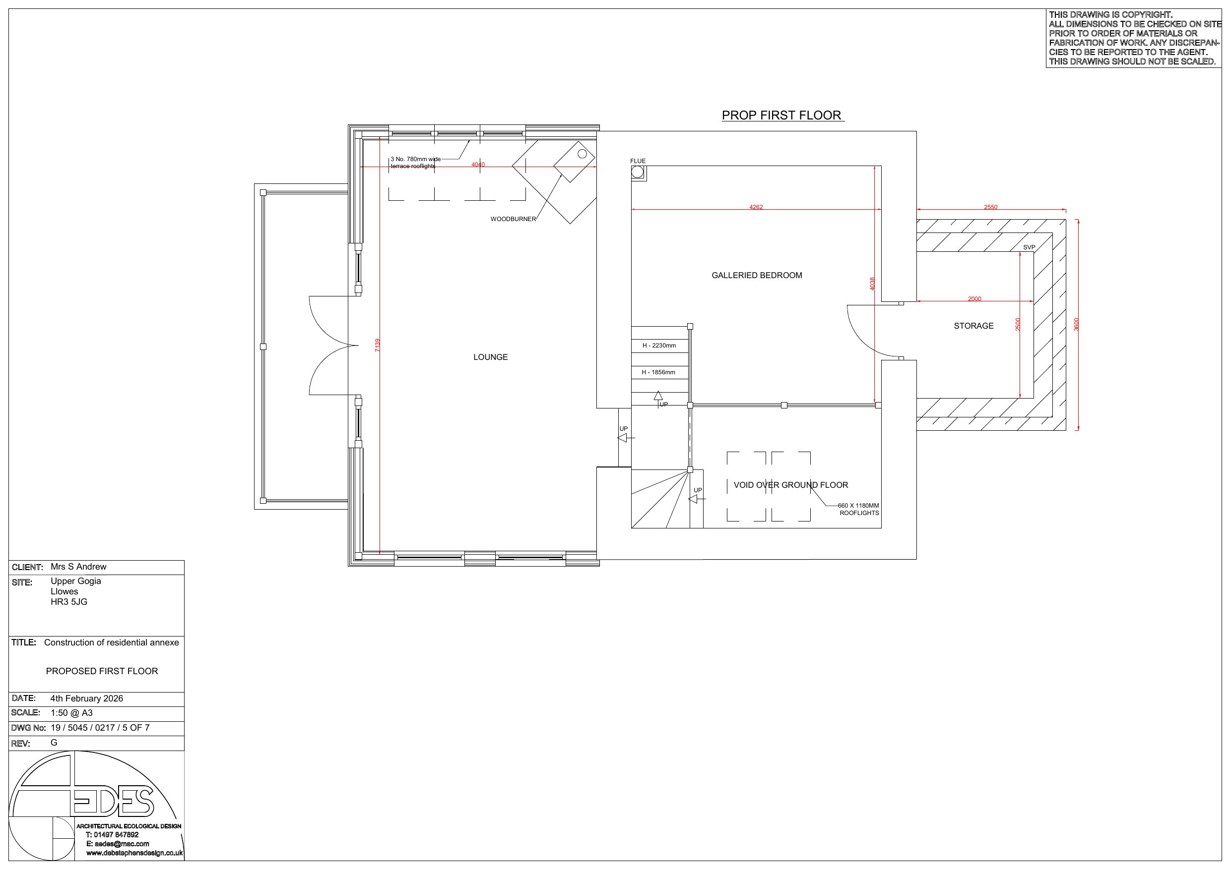
Construction of annexe

Documents

Application Form
Archived · Original link
Plans
Archived · Original link
GIS
Supporting Documents
Archived · Original link
Consultee Comment
Archived · Original link
HIGHWAYS
Consultation response
Not yet archived · Original link
Plans
Archived · Original link
Plans
Archived · Original link
Consultee Comment
Archived · Original link
Plans
Archived · Original link
Consultee Comment
Archived · Original link

Have your say

Your comment matters. Councils must consider every representation that raises material planning considerations.

Write a comment