← Powys County Council

Status

Pending Consideration Change of use
Received
Last month
New homes
0

Full proposal

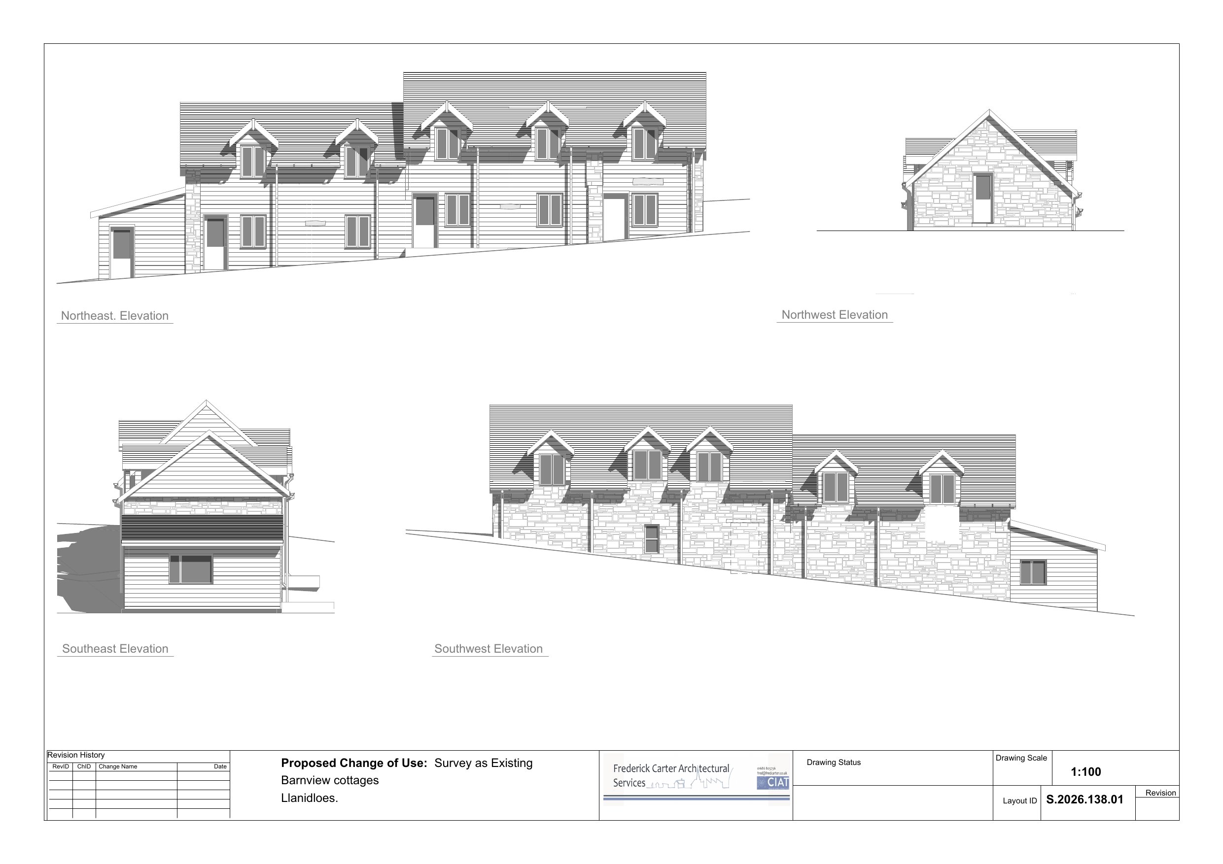
Proposed change of use from holiday let to residential and erection of extension.

Documents

Application Form
Archived · Original link
Supporting Documents
Archived · Original link
Plans
Archived · Original link
Plans
Archived · Original link

Have your say

Your comment matters. Councils must consider every representation that raises material planning considerations.

Write a comment