← Powys County Council

Status

Pending Consideration Demolition
Received
Last month
New homes
0

Full proposal

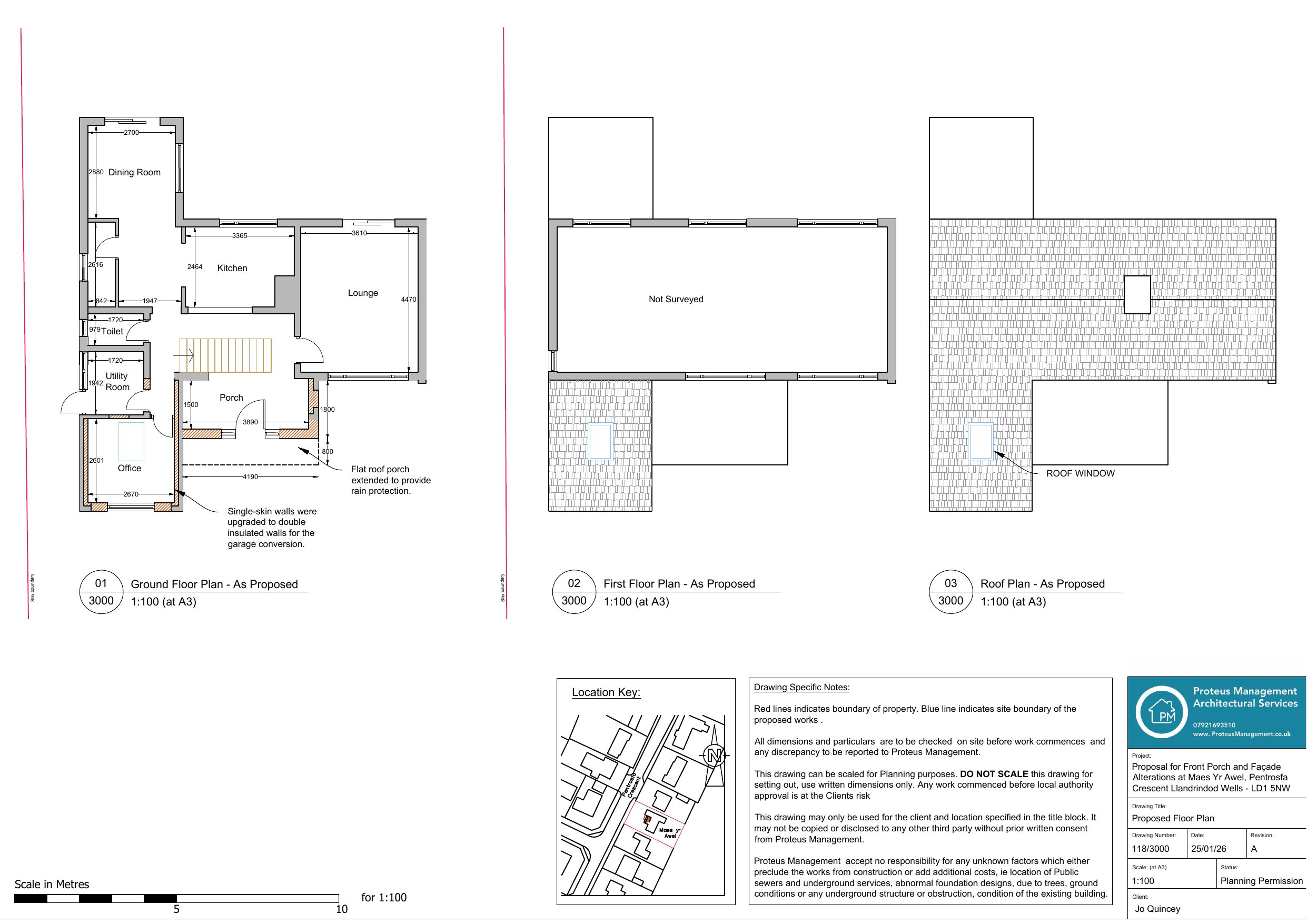
Demolition of carport and porch, erection of replacement porch and all associated works

Documents

Supporting Documents
Archived · Original link
Supporting Documents
Archived · Original link
Supporting Documents
Archived · Original link
Supporting Documents
Archived · Original link
Application Form
Archived · Original link
Consultee Comment
Archived · Original link
Consultee Comment
Archived · Original link

Have your say

Your comment matters. Councils must consider every representation that raises material planning considerations.

Write a comment