← Powys County Council

Status

Pending Consideration Change of use
Received
Last month
New homes
0

Full proposal

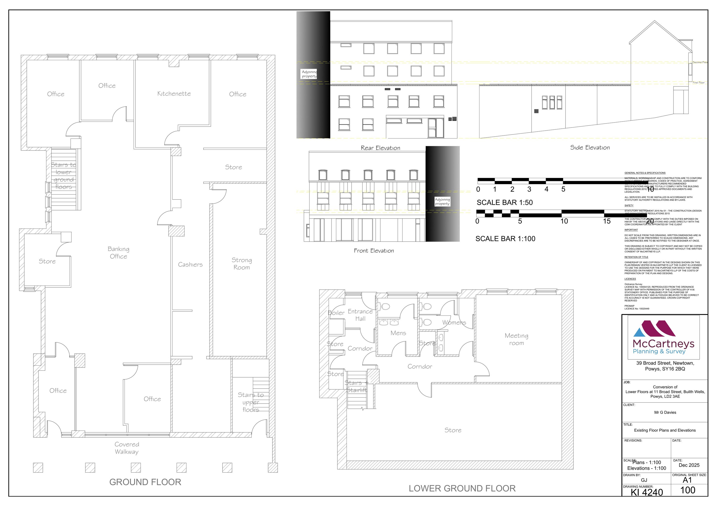
Change of use of ground floor and lower ground floor from a Bank (Class A2) to an Events Venue (Sui Generis) including use class D2 and A3 together with alterations involving rear balcony, new front door and enclosed railings, replacement of 4 rear windows with doors and roof mounted PV panels to flat roof at rear

Documents

Application Form
Archived · Original link
EIA Screening form
Archived · Original link
Consultation response
Archived · Original link
NRW
Consultation response
Archived · Original link
Supporting Documents
Archived · Original link
Consultation response
Archived · Original link
Consultation response
Archived · Original link

Have your say

Your comment matters. Councils must consider every representation that raises material planning considerations.

Write a comment