← Powys County Council

Status

Pending Consideration Change of use
Received
Last month
New homes
1

Full proposal

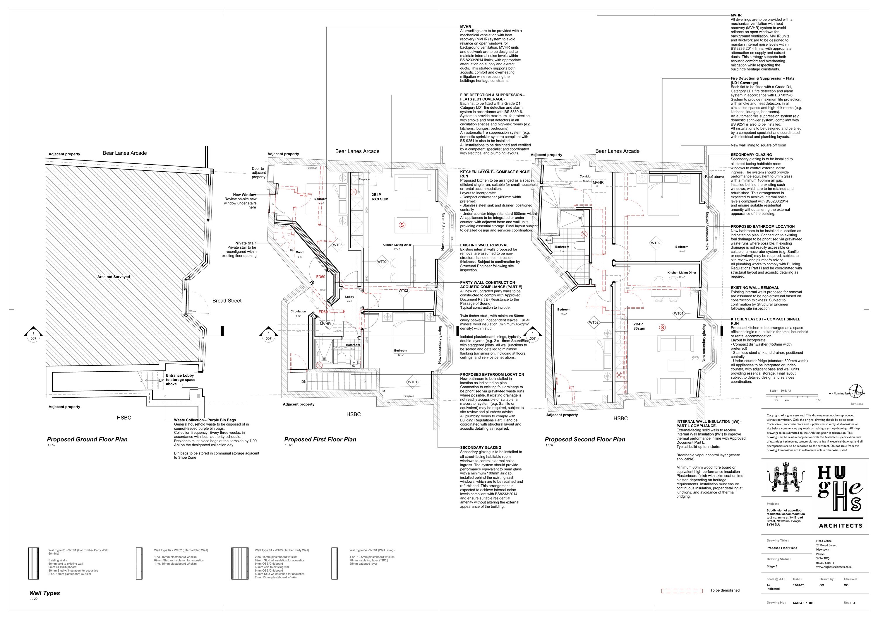
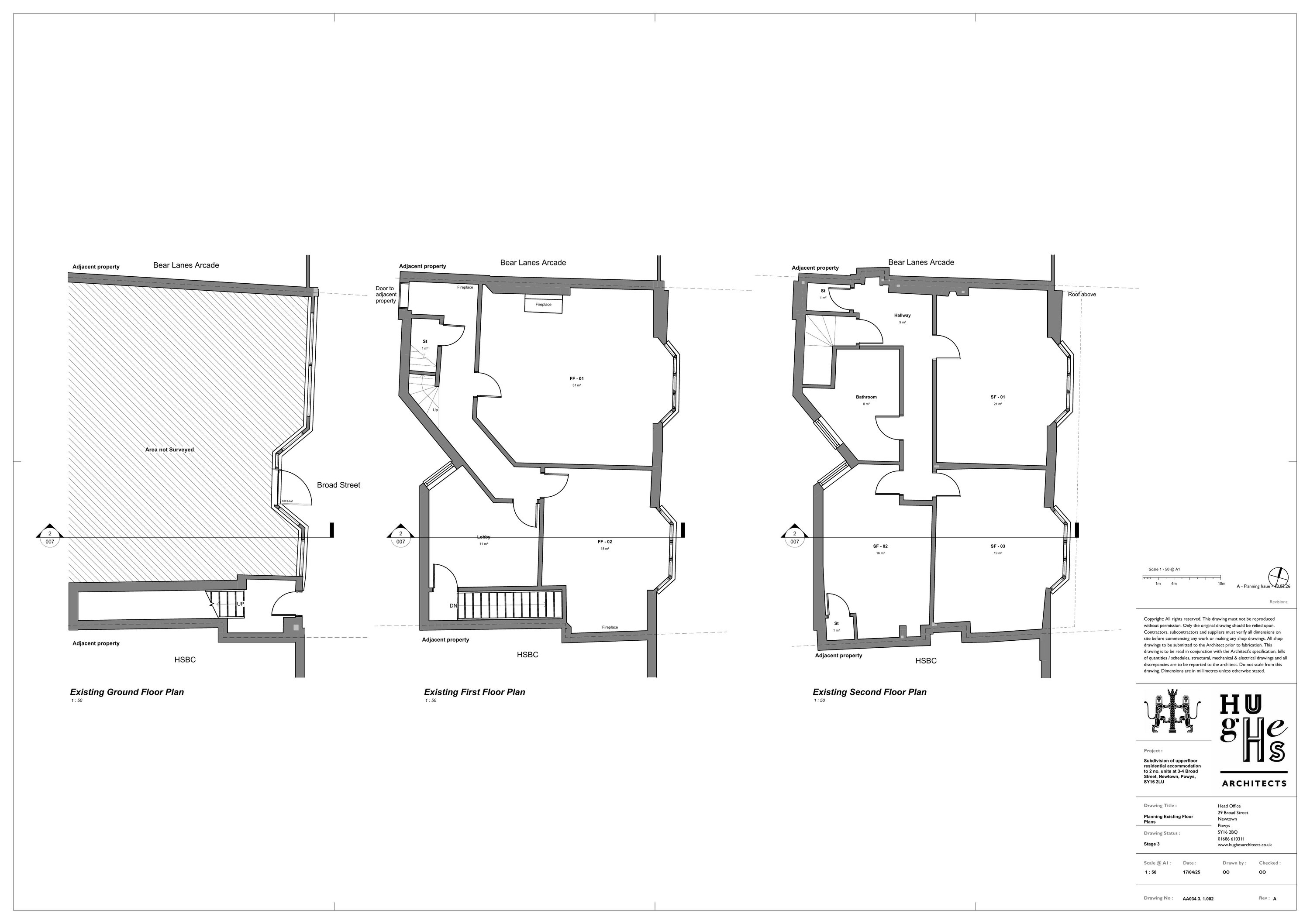
Conversion of single flat into two self contained residential units

Have your say

Your comment matters. Councils must consider every representation that raises material planning considerations.

Write a comment