← Powys County Council

Status

Pending Consideration New housing
Received
Last month
New homes
11

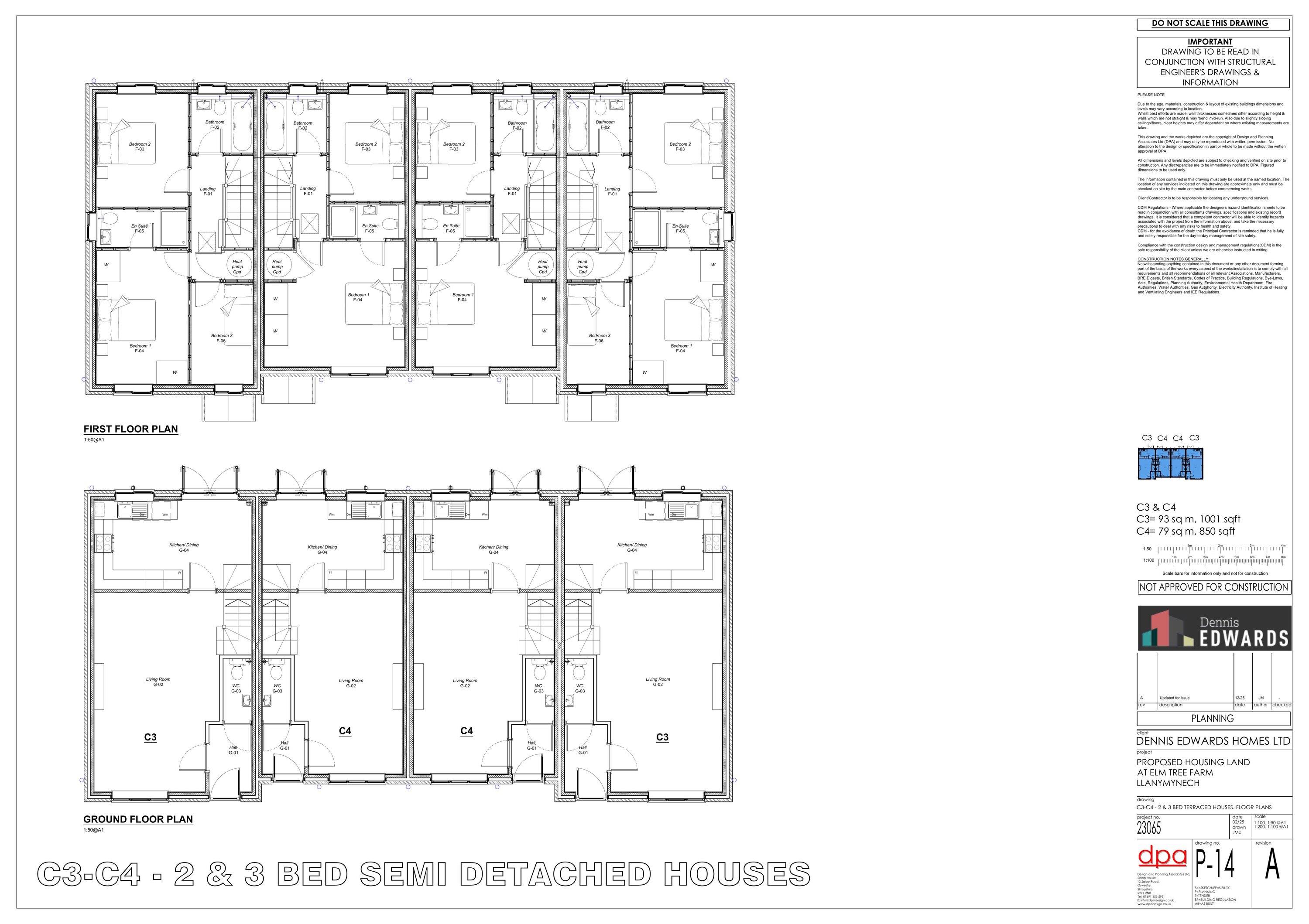
Full proposal

Erection of 11 dwellings (includes 1 affordable dwelling), garages, formation of roadway and all associated works

Documents

Supporting Documents
Archived · Original link
Supporting Documents
Archived · Original link
Supporting Documents
Archived · Original link
Supporting Documents
Archived · Original link
Supporting Documents
Archived · Original link
Supporting Documents
Archived · Original link
Application Form
Archived · Original link
Supporting Documents
Archived · Original link
EIA Screening form
Archived · Original link
Plans
Archived · Original link
Supporting Documents
Archived · Original link
Supporting Documents
Archived · Original link
Consultation response
Archived · Original link
Consultation response
Archived · Original link

Have your say

Your comment matters. Councils must consider every representation that raises material planning considerations.

Write a comment