← Powys County Council

Status

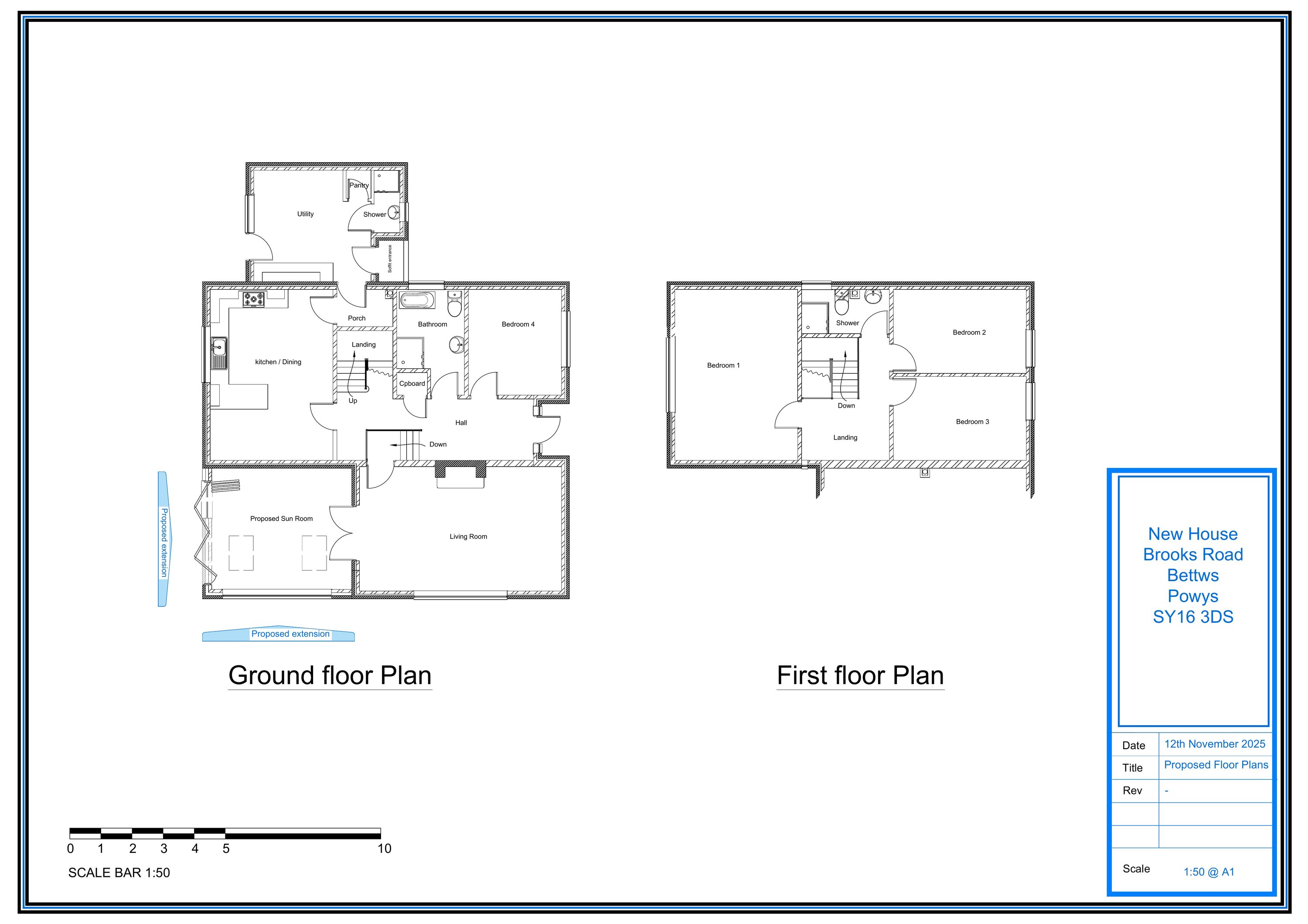
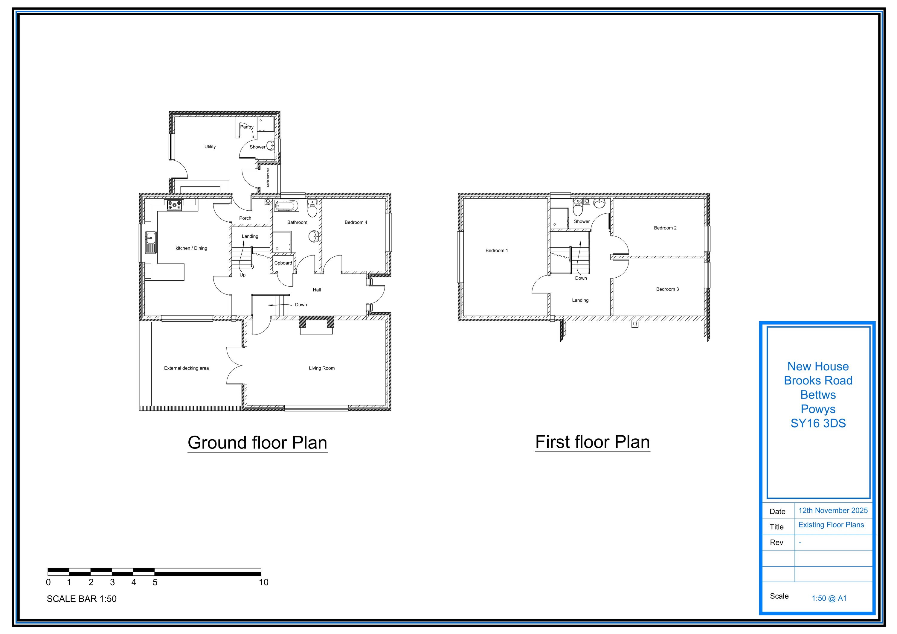
Pending Consideration House extension
Received
Last month
New homes
0

Full proposal

Erection of a single storey sun room extension on existing decked area

Documents

Application Form
Archived · Original link
Supporting Documents
Archived · Original link
Supporting Documents
Archived · Original link
Supporting Documents
Archived · Original link
Consultee Comment
Archived · Original link
Supporting Documents
Archived · Original link
Consultee Comment
Archived · Original link
Supporting Documents
Archived · Original link
Supporting Documents
Archived · Original link
Supporting Documents
Archived · Original link
RIGHTS OF WAY
Consultation response
Not yet archived · Original link

Have your say

Your comment matters. Councils must consider every representation that raises material planning considerations.

Write a comment