← Powys County Council

Status

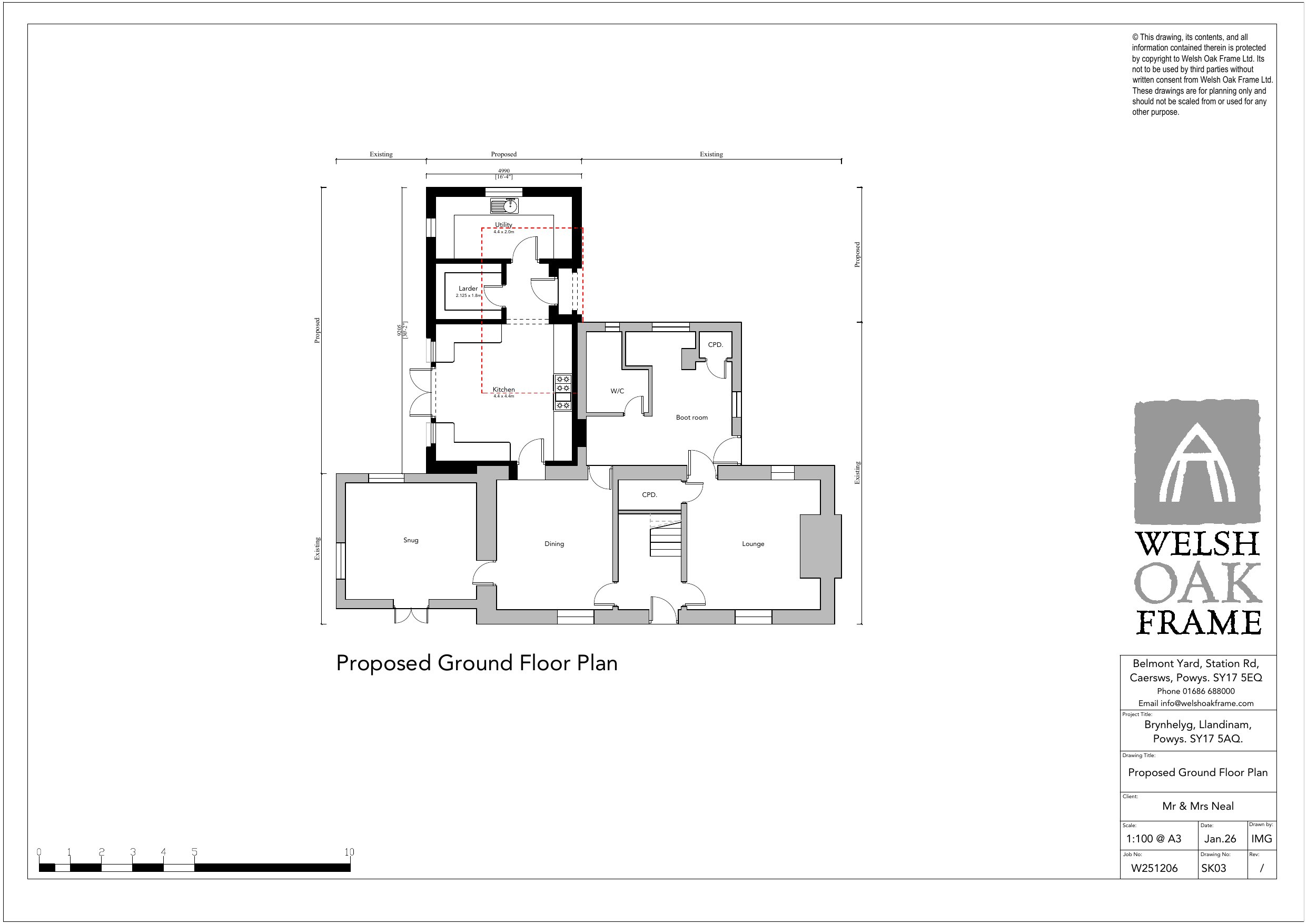
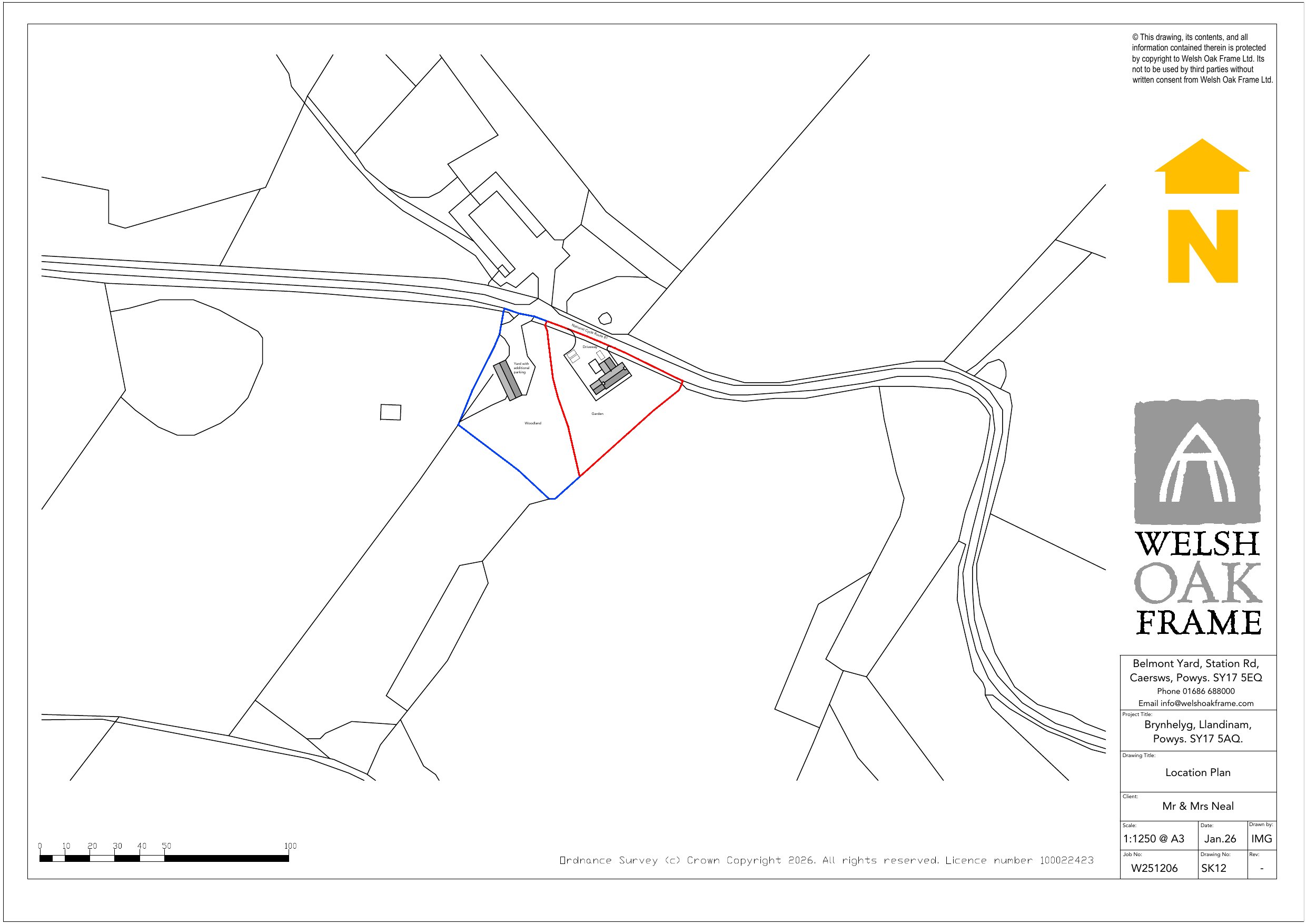
Pending Consideration House extension
Received
Last month
New homes
0

Full proposal

Demolition of garage and replacing with extension

Have your say

Your comment matters. Councils must consider every representation that raises material planning considerations.

Write a comment